Hannell Road, Fulham, London, SW6
By Lawson Rutter
£ 575,000
Reviews
4 out of 5 stars
Lawson Rutter says ..
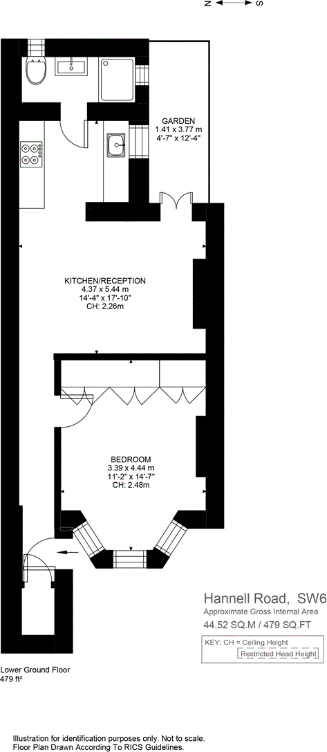
An outstanding and beautifully presented one double bedroom apartment, with its own private entrance and a lovely patio garden in the heart of the Munster Village with its excellent shops, bars and restaurants. Our clients have just tastefully decorated the property which also boasts double glazi...
Property Oracle says ..
This property is a one bedroom, one bathroom flat located in Fulham, London. The property is presented in excellent condition and benefits from a private rear garden. The location is excellent, with easy access to Parsons Green and Fulham Broadway. There are also several highly rated primary schools nearby. However, the list price of £575,000 is significantly below the average price for the area (£1,023,342), and the price per square foot (£1,338) is also below average (£990). This suggests that the property may represent good value for money, although further investigation into comparable properties is warranted to confirm this.
Therefore, we give this property 8 / 10. *Disclaimer: This is our option and does constitute a recommendation or financial advice. Do your own research. *
- Price
- 8
- Condition
- 9
- Location
- 9
- Land
- 7
- Bedrooms
- 1
- Bathrooms
- 1
- Sqft (est)
- 429.00
- Lot (est)
- 479.00
The heatmap indicates the level of crime in the area. The color of the heatmap indicates the crime severity and recency.
Metrics Year-on-Year
- Average area value
- 600,000.00 £Decreased by 38.98 %
- Est sale value
- 371,085.00 £Decreased by 19.31 %
- Average area rental value
- 2,463.00 £/moDecreased by 9.52 %
- Est letting value
- 1,287.00 £/moIncreased by 50.00 %
- Est rental Yield
- 4.93 %Increased by 48.49 %
- Crime Rate
- 5.00 %Unchanged by 0.00 %
Agent Activity
Lawson Rutter created the listing.
Nearby Schools
| Name | Type | Ofsted | Distance |
|---|---|---|---|
| Sir John Lillie Primary School | Community School | Good | 0.30 KM |
| Fulham Cross Girls' School And Language College | Academy Converter | 0.30 KM | |
| Sinclair House School | Other Independent School | 0.38 KM | |
| St Augustine'S Rc Primary School | Voluntary Aided School | Outstanding | 0.41 KM |
| St Thomas Of Canterbury Catholic Primary School | Voluntary Aided School | Good | 0.46 KM |
Images
Nearby Streets
| Name | Average Price | Average Sqft | Distance |
|---|---|---|---|
| Williams Close | £ 525,000 | 0 | 0.00 KM |
| Disbrowe Road | £ 0 | 0 | 0.00 KM |
| Musard Road | £ 1,007,500 | 0 | 0.00 KM |
| The Courtyard | £ 0 | 0 | 0.00 KM |
| John Smith Avenue | £ 0 | 0 | 0.00 KM |
Nearby Transport
| Name | NLC | TLC | Distance |
|---|---|---|---|
| West Brompton | 8875 | WBP | 1.88 KM |
| Kensington (Olympia) | 3092 | KPA | 1.88 KM |
| Putney | 5603 | PUT | 2.27 KM |
| Shepherd'S Bush | 9587 | SPB | 2.78 KM |
| Imperial Wharf | 9586 | IMW | 3.24 KM |
Nearby Listings
| Address | Price | Type | Score | Distance |
|---|---|---|---|---|
| Hannell Road, Fulham, London, SW6 | £ 575,000 | BUY | 8 / 10 | 0.00 KM |
| Hannell Road, Fulham, SW6 | £ 469,500 | BUY | 5 / 10 | 0.00 KM |
| Hannell Road, Fulham | £ 435,000 | BUY | 5 / 10 | 0.02 KM |
| Hannell Road, Fulham, SW6 | £ 1,550,000 | BUY | 8 / 10 | 0.02 KM |
| Dawes Road, Fulham, SW6 | £ 1,400,000 | BUY | 7 / 10 | 0.04 KM |
Nearby Properties
| Address | Price | Distance |
|---|---|---|
| 37 Hannell Road | £ 692,000 | 0.01 KM |
| 51 Hannell Road | £ 680,000 | 0.01 KM |
| 41 Hannell Road | £ 1,088,000 | 0.01 KM |
| 27 Hannell Road | £ 1,062,000 | 0.01 KM |
| 21a Hannell Road | £ 175,000 | 0.01 KM |