Barnard Marcus says ..
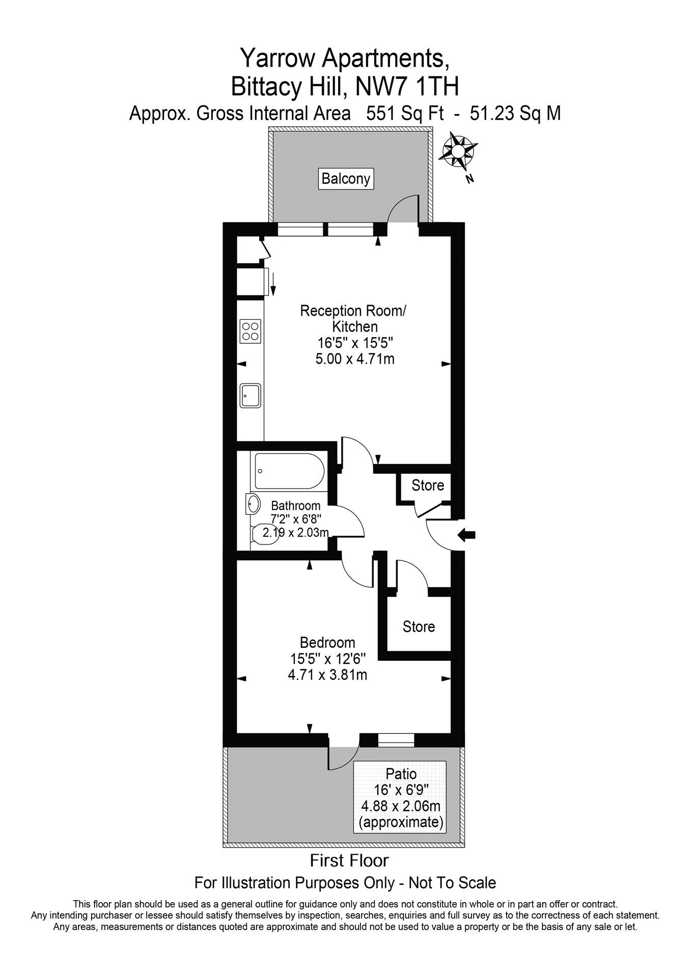
A bright and modern one-bedroom apartment set within a contemporary development on Bittacy Hill, Mill Hill.
Property Oracle says ..
Therefore, we give this property 6 / 10. *Disclaimer: This is our option and does constitute a recommendation or financial advice. Do your own research. *
- Price
- 6
- Condition
- 8
- Location
- 7
- Land
- 4
- Bedrooms
- 1
- Bathrooms
- 1
- Sqft (est)
- 606.07
The heatmap indicates the level of crime in the area. The color of the heatmap indicates the crime severity and recency.
Metrics Year-on-Year
- Average area value
- 696,062.00 £Decreased by 2.02 %
- Est sale value
- 314,550.33 £Decreased by 10.05 %
- Average area rental value
- 2,443.00 £/moDecreased by 15.35 %
- Est letting value
- 606.07 £/moDecreased by 50.00 %
- Est rental Yield
- 4.21 %Decreased by 13.55 %
- Crime Rate
- 51.00 %Unchanged by 0.00 %
from 710,410.00 £
from 349,702.39 £
from 2,886.00 £/mo
from 1,212.14 £/mo
from 4.87 %
from 51.00 %
Agent Activity
Barnard Marcus created the listing.
Nearby Schools
| Name | Type | Ofsted | Distance |
|---|---|---|---|
| Millbrook Park Primary School | Academy Sponsor Led | Good | 0.52 KM |
| Frith Manor Primary School | Community School | Good | 1.15 KM |
| St Mary'S Cofe Primary School | Voluntary Aided School | Outstanding | 1.35 KM |
| Hasmonean High School For Boys | Academy Converter | Outstanding | 1.50 KM |
| Dollis Primary School | Community School | Good | 1.50 KM |
Images
Nearby Streets
| Name | Average Price | Average Sqft | Distance |
|---|---|---|---|
| Vinca Mews | £ 0 | 0 | 0.00 KM |
| Harewood Avenue | £ 0 | 0 | 0.00 KM |
| Inglis Way | £ 0 | 0 | 0.00 KM |
| Brittacy Hill | £ 477,667 | 0 | 0.00 KM |
| School House Lane | £ 419,500 | 0 | 0.00 KM |
Nearby Transport
| Name | NLC | TLC | Distance |
|---|---|---|---|
| Mill Hill Broadway | 1527 | MIL | 4.27 KM |
| Hendon | 1522 | HEN | 4.50 KM |
| Cricklewood | 1519 | CRI | 5.69 KM |
| Oakleigh Park | 6020 | OKL | 5.85 KM |
| New Barnet | 6018 | NBA | 6.03 KM |
Nearby Listings
| Address | Price | Type | Score | Distance |
|---|---|---|---|---|
| Bittacy Hill, London | £ 365,000 | BUY | 6 / 10 | 0.00 KM |
| Bittacy Hill, London | £ 400,000 | BUY | 6 / 10 | 0.00 KM |
| Bittacy Hill, London, NW7 | £ 565,000 | BUY | 5 / 10 | 0.00 KM |
| Bittacy Hill, London | £ 500,000 | BUY | 6 / 10 | 0.00 KM |
| Bittacy Hill, Mill Hill, London | £ 565,000 | BUY | 6 / 10 | 0.01 KM |
Nearby Properties
| Address | Price | Distance |
|---|---|---|
| 27 Bittacy Road | £ 305,000 | 0.13 KM |
| 2 Bittacy Road | £ 315,000 | 0.13 KM |
| 11 Bittacy Road | £ 312,000 | 0.13 KM |
| 1a Bittacy Road | £ 470,000 | 0.13 KM |
| 30 Bittacy Road | £ 499,000 | 0.13 KM |