Yopa says ..
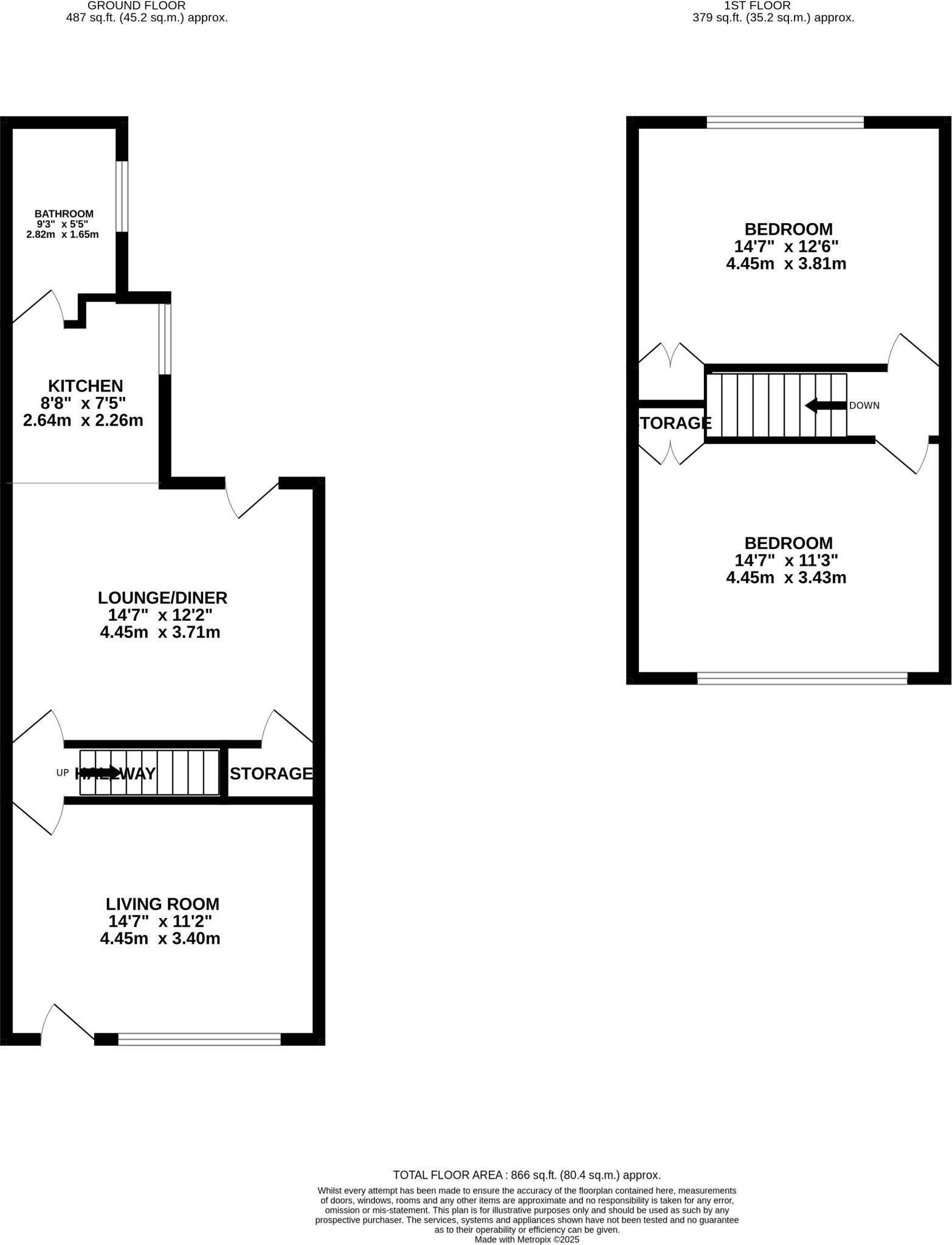
*** Offered for sale with no chain is this spacious 2 bedroom terraced home now in need of cosmetic upgrades and boasting 2 extensions ***
Property Oracle says ..
Therefore, we give this property 6 / 10. *Disclaimer: This is our option and does constitute a recommendation or financial advice. Do your own research. *
- Price
- 8
- Condition
- 6
- Location
- 7
- Land
- 4
- Bedrooms
- 2
- Bathrooms
- 1
- Sqft (est)
- 866.00
The heatmap indicates the level of crime in the area. The color of the heatmap indicates the crime severity and recency.
Metrics Year-on-Year
- Average area value
- 420,000.00 £Decreased by 24.04 %
- Est sale value
- 758,616.00 £Increased by 140.00 %
- Average area rental value
- 1,475.00 £/moDecreased by 37.68 %
- Est letting value
- 2,598.00 £/moIncreased by 200.00 %
- Est rental Yield
- 4.21 %Decreased by 18.09 %
- Crime Rate
- 18.00 %Unchanged by 0.00 %
from 552,933.00 £
from 316,090.00 £
from 2,367.00 £/mo
from 866.00 £/mo
from 5.14 %
from 18.00 %
Agent Activity
Yopa created the listing.
Nearby Schools
| Name | Type | Ofsted | Distance |
|---|---|---|---|
| St Joseph'S Catholic Primary School Castleford | Academy Converter | Good | 0.64 KM |
| Smawthorne Henry Moore Primary School, Castleford | Community School | Good | 0.64 KM |
| Castleford Wheldon Infant School And Nursery | Community School | Good | 0.73 KM |
| Half Acres Primary Academy | Academy Converter | Good | 0.81 KM |
| Castleford Park Junior Academy | Academy Converter | Good | 0.97 KM |
Images
Nearby Streets
| Name | Average Price | Average Sqft | Distance |
|---|---|---|---|
| St Michael's Close | £ 0 | 0 | 0.00 KM |
| Willow Court | £ 100,000 | 0 | 0.00 KM |
| Smawthorne Avenue Backs | £ 0 | 0 | 0.00 KM |
| Bank Street | £ 0 | 0 | 0.00 KM |
| Kensington Gardens | £ 0 | 0 | 0.00 KM |
Nearby Transport
| Name | NLC | TLC | Distance |
|---|---|---|---|
| Castleford | 8359 | CFD | 0.29 KM |
| Glasshoughton | 8360 | GLH | 1.91 KM |
| Pontefract Tanshelf | 8541 | POT | 4.88 KM |
| Featherstone | 8544 | FEA | 4.92 KM |
| Pontefract Monkhill | 8548 | PFM | 6.00 KM |
Nearby Listings
| Address | Price | Type | Score | Distance |
|---|---|---|---|---|
| Glebe Street, Castleford, WF10 | £ 120,000 | BUY | 6 / 10 | 0.00 KM |
| Glebe Street, Castleford | £ 120,000 | BUY | 7 / 10 | 0.01 KM |
| Hugh Street, Castleford | £ 140,000 | BUY | 7 / 10 | 0.03 KM |
| Lower Oxford Street, Castleford | £ 170,000 | BUY | 6 / 10 | 0.07 KM |
| Glebe Street, Castleford, West Yorkshire | £ 130,000 | BUY | Unknown | 0.11 KM |
Nearby Properties
| Address | Price | Distance |
|---|---|---|
| 94 Glebe Street | £ 33,950 | 0.01 KM |
| 60 Glebe Street | £ 110,000 | 0.01 KM |
| 88 Glebe Street | £ 61,300 | 0.01 KM |
| 80 Glebe Street | £ 60,000 | 0.01 KM |
| 98 Glebe Street | £ 85,000 | 0.01 KM |