Delamere Drive, Macclesfield
By Gascoigne Halman
£ 225,000
Reviews
3 out of 5 stars
Gascoigne Halman says ..
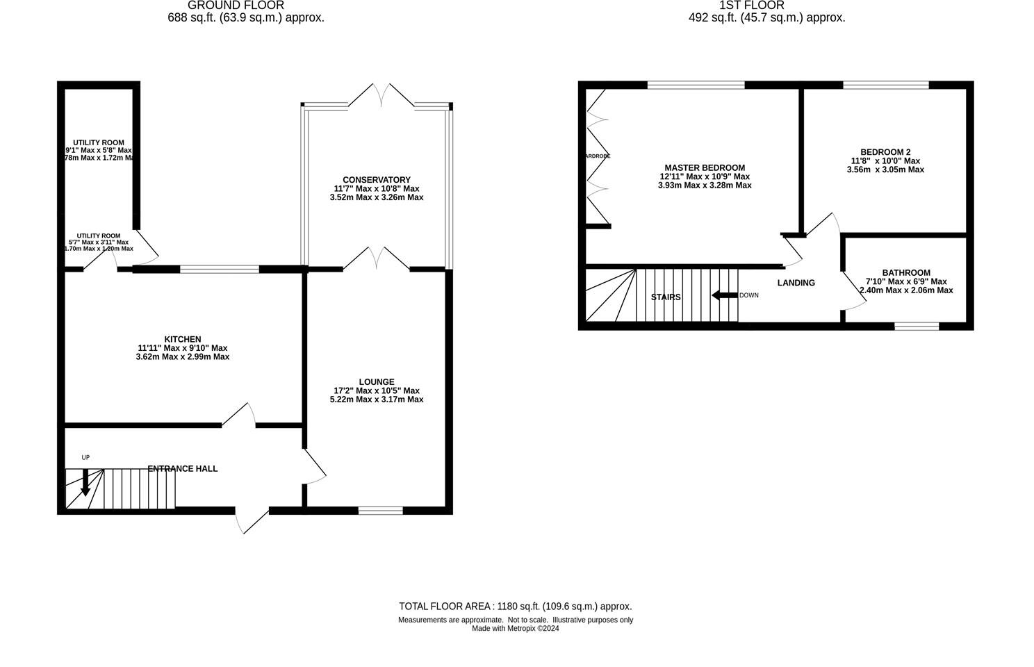
A two double bedroom terraced house offering well presented accommodation with a good sized conservatory, a lovely sized private garden and off road parking for two cars.
Property Oracle says ..
This two-bedroom semi-detached house in Macclesfield is located on Delamere Drive, within the Hurdsfield area. The property benefits from a conservatory extension, and a garden. Transport links are reasonable with Macclesfield train station approximately 1.9km away. There are several primary and secondary schools within a 2km radius, including Hurdsfield Community Primary School (Requires Improvement Ofsted rating) and Marlborough Primary School (Good Ofsted rating). The property itself appears to be in good condition, with a recently updated bathroom and kitchen. The list price of £225,000 is slightly below the average price for the area (£233,383), and the size of 793.10 sqft is also below average (812 sqft). However, considering the good condition and the inclusion of a conservatory and garden, the price may represent fair value. More comparable properties in the area would be needed to make a definitive judgement on this.
Therefore, we give this property 7 / 10. *Disclaimer: This is our option and does constitute a recommendation or financial advice. Do your own research. *
- Price
- 7
- Condition
- 8
- Location
- 7
- Land
- 7
- Bedrooms
- 2
- Bathrooms
- 1
- Sqft (est)
- 793.10
- Lot (est)
- 1,180.00
The heatmap indicates the level of crime in the area. The color of the heatmap indicates the crime severity and recency.
Metrics Year-on-Year
- Average area value
- 246,667.00 £Increased by 6.08 %
- Est sale value
- 228,412.80 £Increased by 10.77 %
- Average area rental value
- 1,000.00 £/moDecreased by 7.41 %
- Est letting value
- 793.10 £/moUnchanged by 0.00 %
- Est rental Yield
- 4.86 %Decreased by 12.75 %
- Crime Rate
- 6.00 %Unchanged by 0.00 %
Agent Activity
Gascoigne Halman created the listing.
Nearby Schools
| Name | Type | Ofsted | Distance |
|---|---|---|---|
| Hurdsfield Children'S Centre | Children's Centre | 0.26 KM | |
| Hurdsfield Community Primary School | Community School | Requires improvement | 0.27 KM |
| Puss Bank School And Nursery | Academy Converter | 1.25 KM | |
| Marlborough Primary School | Academy Converter | Good | 1.77 KM |
| Tytherington School | Academy Converter | Good | 2.02 KM |
Images
Nearby Streets
| Name | Average Price | Average Sqft | Distance |
|---|---|---|---|
| Arundel Close | £ 0 | 0 | 0.00 KM |
| Pine Close | £ 340,000 | 0 | 0.00 KM |
| Banbury Close | £ 0 | 0 | 0.00 KM |
| Spring Hill | £ 0 | 0 | 0.00 KM |
| Elm Drive | £ 290,000 | 0 | 0.00 KM |
Nearby Transport
| Name | NLC | TLC | Distance |
|---|---|---|---|
| Macclesfield | 2871 | MAC | 1.90 KM |
| Prestbury | 2875 | PRB | 4.80 KM |
| Adlington (Cheshire) | 2939 | ADC | 6.13 KM |
| Poynton | 2874 | PYT | 9.35 KM |
Nearby Listings
| Address | Price | Type | Score | Distance |
|---|---|---|---|---|
| Delamere Drive, Macclesfield | £ 225,000 | BUY | 7 / 10 | 0.00 KM |
| Delamere Drive, Macclesfield, SK10 2PU | £ 210,000 | BUY | 6 / 10 | 0.01 KM |
| Delamere Drive, Macclesfield, Cheshire, SK10 | £ 270,000 | BUY | 6 / 10 | 0.07 KM |
| Delamere Drive, Macclesfield | £ 220,000 | BUY | 7 / 10 | 0.10 KM |
| Sandgate Road, Macclesfield, Cheshire, SK10 | £ 240,000 | BUY | 6 / 10 | 0.11 KM |
Nearby Properties
| Address | Price | Distance |
|---|---|---|
| 59 Delamere Drive | £ 120,000 | 0.07 KM |
| 101 Delamere Drive | £ 117,500 | 0.07 KM |
| 95 Delamere Drive | £ 115,000 | 0.07 KM |
| 105 Delamere Drive | £ 155,000 | 0.07 KM |
| 69 Delamere Drive | £ 163,000 | 0.07 KM |