John O'Gaunt Road, Kenilworth
By Julie Philpot
£ 600,000
Reviews
3 out of 5 stars
Julie Philpot says ..
**OPEN DAY 22ND MARCH - CALL TO VIEW BY APPT ONLY** A detached family home with a large rear garden backing onto farmland with a sunny south west facing aspect. Properties in this location are very sought after due to the views and location and we expect high demand for viewings. This much loved ...
Property Oracle says ..
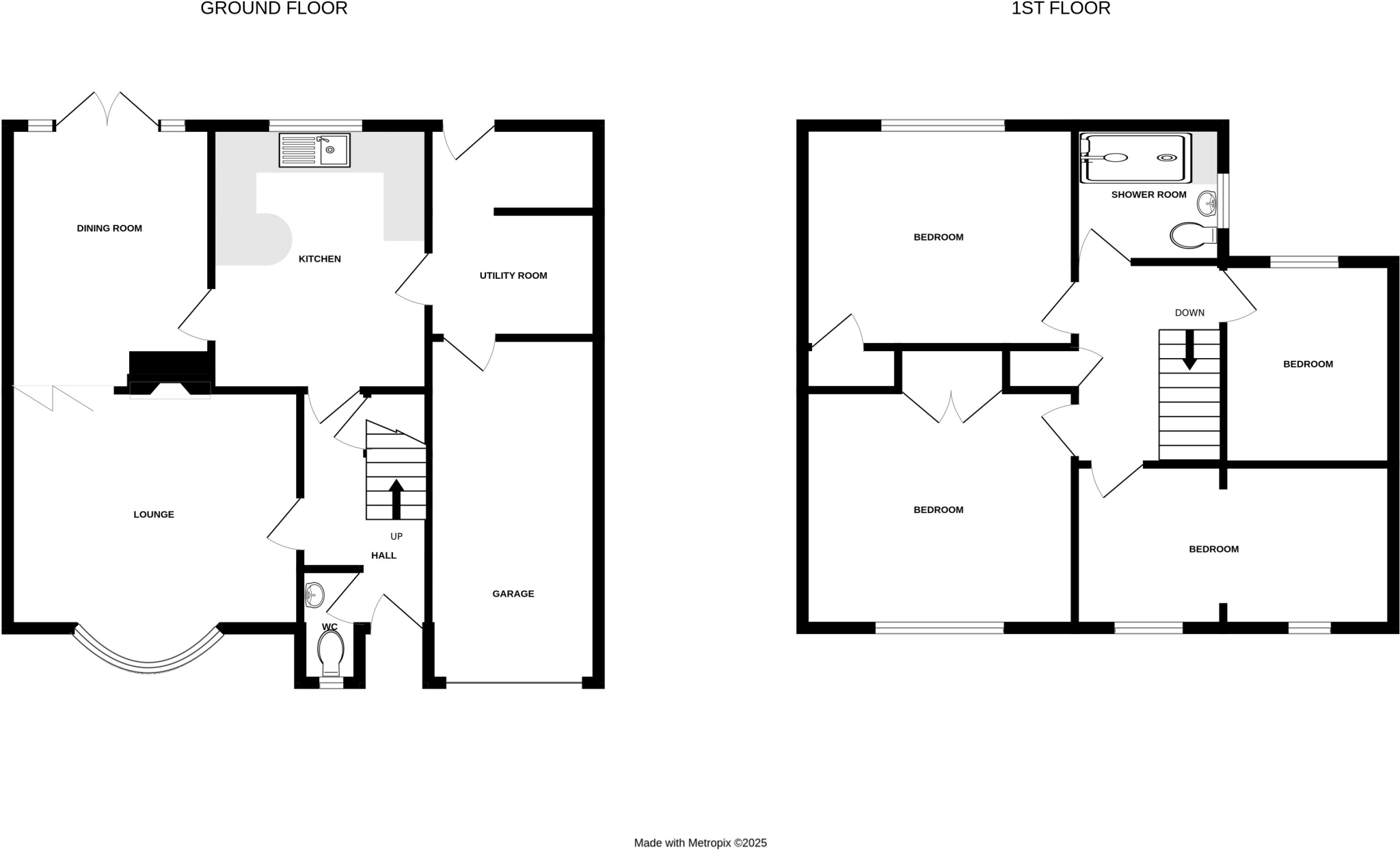
This property is a four-bedroom detached house located on John O’Gaunt Road in Kenilworth, Warwickshire. The property benefits from a large garden, offering views of open countryside. The house itself appears to be in need of some modernisation and updating, although it is structurally sound. The location is excellent, with good access to local schools and transport links. The property is priced at £600,000, which is slightly above the average price for the area but may be justified given the size of the property and the large garden. There are several comparable properties in the area that have recently sold for similar prices, suggesting the asking price is not unreasonable.
Therefore, we give this property 7 / 10. *Disclaimer: This is our option and does constitute a recommendation or financial advice. Do your own research. *
- Price
- 7
- Condition
- 6
- Location
- 9
- Land
- 8
- Bedrooms
- 4
- Bathrooms
- 1
- Sqft (est)
- 1,720.00
The heatmap indicates the level of crime in the area. The color of the heatmap indicates the crime severity and recency.
Metrics Year-on-Year
- Average area value
- 720,833.00 £Increased by 62.68 %
- Est sale value
- 894,400.00 £Increased by 6.34 %
- Average area rental value
- 1,314.00 £/moIncreased by 12.31 %
- Est letting value
- 0.00 £/moDecreased by 100.00 %
- Est rental Yield
- 2.19 %Decreased by 30.91 %
- Crime Rate
- 8.00 %Unchanged by 0.00 %
Agent Activity
Julie Philpot created the listing.
Nearby Schools
| Name | Type | Ofsted | Distance |
|---|---|---|---|
| Clinton Primary School | Community School | Outstanding | 0.25 KM |
| St John'S Primary School | Community School | Good | 0.99 KM |
| Kenilworth Nursery School & Early Years Training Centre | Local Authority Nursery School | Outstanding | 1.61 KM |
| St Nicholas Cofe Primary School | Voluntary Controlled School | Good | 1.85 KM |
| Priors Field Primary School | Community School | Good | 2.09 KM |
Images
Nearby Streets
| Name | Average Price | Average Sqft | Distance |
|---|---|---|---|
| Farm Road | £ 0 | 0 | 0.00 KM |
| Essex Close | £ 0 | 0 | 0.00 KM |
| Elizabeth Way | £ 0 | 0 | 0.00 KM |
| St John's Avenue | £ 0 | 0 | 0.00 KM |
| Avenue Road | £ 0 | 0 | 0.00 KM |
Nearby Transport
| Name | NLC | TLC | Distance |
|---|---|---|---|
| Kenilworth | 7985 | KNW | 1.90 KM |
| Warwick | 4600 | WRW | 5.69 KM |
| Warwick Parkway | 8530 | WRP | 6.23 KM |
| Tile Hill | 1035 | THL | 6.50 KM |
| Leamington Spa | 4597 | LMS | 8.27 KM |
Nearby Listings
| Address | Price | Type | Score | Distance |
|---|---|---|---|---|
| John O'Gaunt Road, Kenilworth | £ 600,000 | BUY | 7 / 10 | 0.00 KM |
| John O'gaunt Road, Kenilworth, CV8 | £ 650,000 | BUY | Unknown | 0.07 KM |
| John O'gaunt Road, Kenilworth | £ 660,000 | BUY | 6 / 10 | 0.10 KM |
| John O'Gaunt Road, Kenilworth, Warwickshire, CV8 | £ 360,000 | BUY | 5 / 10 | 0.15 KM |
| Lunn Avenue, Kenilworth | £ 435,000 | BUY | 7 / 10 | 0.15 KM |
Nearby Properties
| Address | Price | Distance |
|---|---|---|
| 67 John O'gaunt Road | £ 475,000 | 0.00 KM |
| 91 John O'gaunt Road | £ 815,000 | 0.00 KM |
| 57 John Ogaunt Road | £ 355,000 | 0.00 KM |
| 69 John O'gaunt Road | £ 528,000 | 0.00 KM |
| 100 John O'gaunt Road | £ 285,000 | 0.07 KM |