Taylors Estate Agents says ..
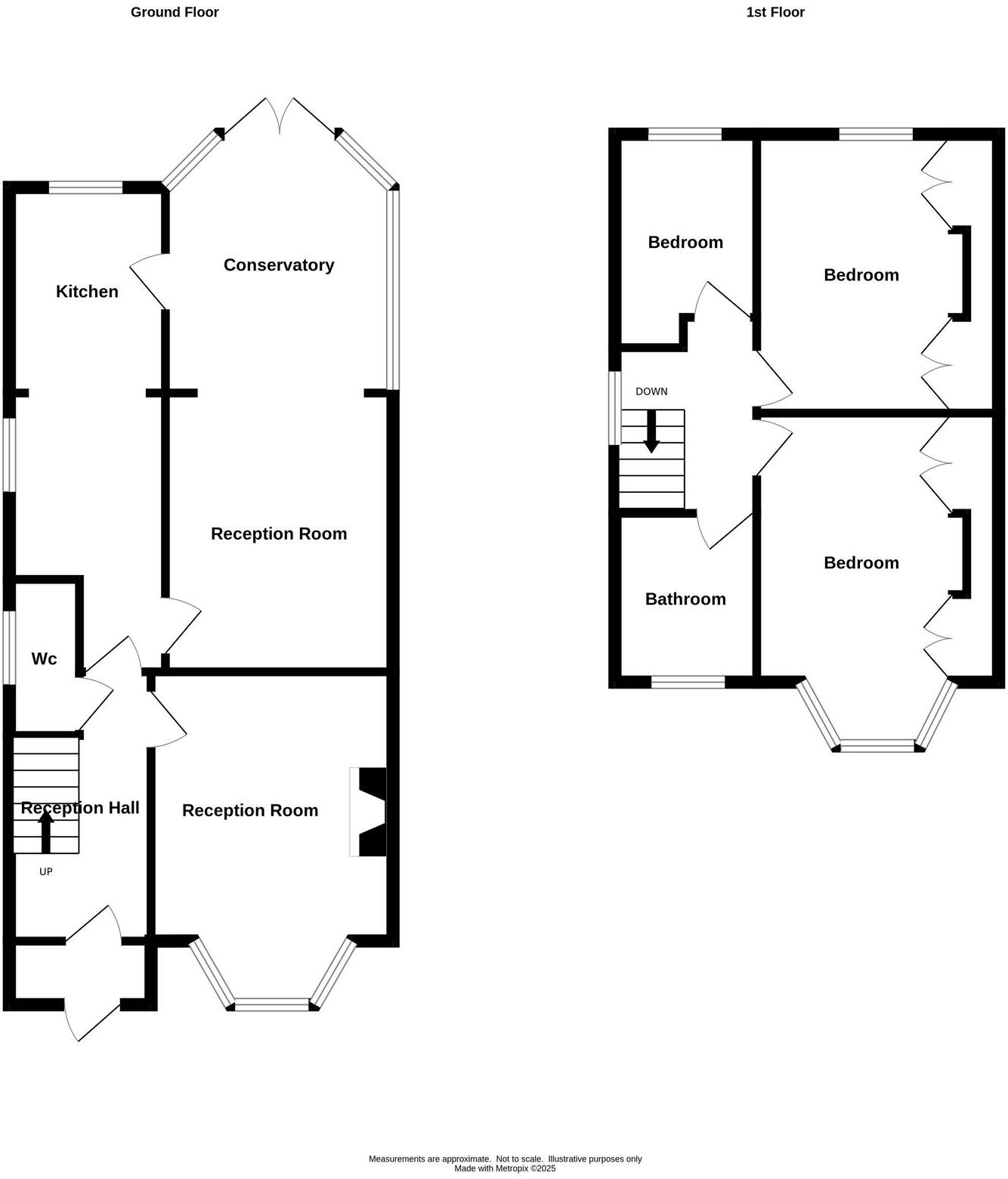
A well presented and highly maintained SEMI-DETACHED house located in the sought-after PENN NEIGHBOURHOOD which is conveniently located near the A449 which lead towards Wolverhampton City Centre! This charming family home is gas centrally heated & double glazed, which briefly compromises o...
Property Oracle says ..
The property is located in Penn, Wolverhampton, which benefits from good local schools such as Penn Hall School which has an outstanding Ofsted rating. The area also has good transport links with Wolverhampton train station approximately 5.31 KM away.
Based on the images provided the property appears to be in good condition and well maintained. The interior is presented well and there is evidence of recent modernisation in the kitchen and bathroom.
The property has a garden which appears to be of a reasonable size. There is also a garden shed.
Considering the average price in the area is £275,932 and the average price per sqft is £223.00, the list price of £299,950 seems slightly higher than the average. However, given the property’s apparent good condition, the inclusion of a conservatory and garden, and its location in a desirable area with good schools and transport links, the price may be justified. Nearby comparable properties support this assessment, with prices ranging from £210,000 to £349,995. Further information on the property’s square footage would allow for a more precise price per sqft comparison.
Therefore, we give this property 7 / 10. *Disclaimer: This is our option and does constitute a recommendation or financial advice. Do your own research. *
- Price
- 7
- Condition
- 8
- Location
- 9
- Land
- 7
- Bedrooms
- 3
- Bathrooms
- 1
The heatmap indicates the level of crime in the area. The color of the heatmap indicates the crime severity and recency.
Metrics Year-on-Year
- Average area value
- 310,714.00 £Increased by 1.45 %
- Average area rental value
- 1,000.00 £/moIncreased by 3.73 %
- Est rental Yield
- 3.86 %Increased by 2.12 %
- Crime Rate
- 1.00 %Unchanged by 0.00 %
Agent Activity
Taylors Estate Agents created the listing.
Nearby Schools
| Name | Type | Ofsted | Distance |
|---|---|---|---|
| Warstones Primary School | Community School | Good | 0.51 KM |
| The Star Children'S Centre (Formerly Warstones Children'S Centre) | Children's Centre | 0.52 KM | |
| Springdale Primary School | Community School | Good | 0.85 KM |
| Penn Hall School | Community Special School | Outstanding | 0.86 KM |
| St Michael'S Catholic Primary Academy And Nursery | Academy Converter | Good | 1.19 KM |
Images
Nearby Streets
| Name | Average Price | Average Sqft | Distance |
|---|---|---|---|
| Oakley Grove | £ 0 | 0 | 0.00 KM |
| The Avenue | £ 0 | 0 | 0.00 KM |
| The Fold | £ 380,000 | 0 | 0.00 KM |
| Wells Road | £ 145,000 | 0 | 0.00 KM |
| South Green | £ 0 | 0 | 0.00 KM |
Nearby Transport
| Name | NLC | TLC | Distance |
|---|---|---|---|
| Wolverhampton | 1218 | WVH | 5.31 KM |
| Bilbrook | 4618 | BBK | 7.14 KM |
| Codsall | 4616 | CSL | 8.30 KM |
| Coseley | 1143 | CSY | 8.63 KM |
Nearby Listings
| Address | Price | Type | Score | Distance |
|---|---|---|---|---|
| Pinfold Lane, Penn | £ 299,950 | BUY | 7 / 10 | 0.00 KM |
| Pinfold Lane, Wolverhampton, West Midlands, WV4 | £ 280,000 | BUY | 7 / 10 | 0.01 KM |
| Pinfold Lane, Penn, Wolverhampton, WV4 | £ 265,000 | BUY | 6 / 10 | 0.04 KM |
| 109 Pinfold Lane, Wolverhampton | £ 310,000 | BUY | 7 / 10 | 0.07 KM |
| Pinfold Lane, Wolverhampton | £ 270,000 | BUY | Unknown | 0.08 KM |
Nearby Properties
| Address | Price | Distance |
|---|---|---|
| 94 Pinfold Lane | £ 210,000 | 0.01 KM |
| 90 Pinfold Lane | £ 212,500 | 0.01 KM |
| 114 Pinfold Lane | £ 167,000 | 0.01 KM |
| 80 Pinfold Lane | £ 220,000 | 0.01 KM |
| 112 Pinfold Lane | £ 235,000 | 0.01 KM |