Nuneaton Road, Bedworth, CV12
By Bayzos Estate Agents
£ 85,000
Reviews
2 out of 5 stars
Bayzos Estate Agents says ..
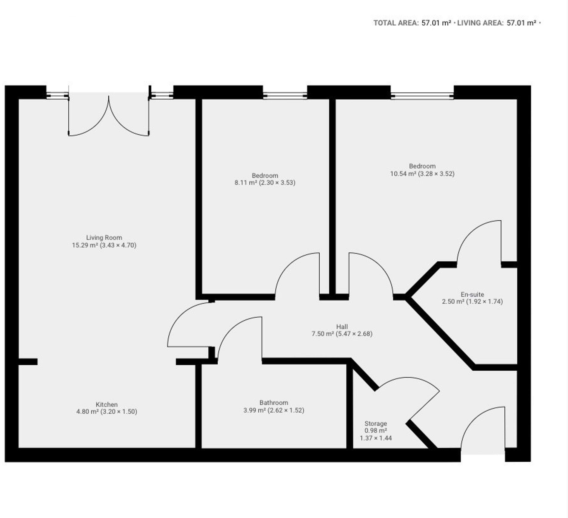
Sought After Location Of Bedworth | No Upward Chain | Allocated Parking Space | 2nd Floor - 2 Bedroom Flat | Master Bedroom With En-Suite | Open Plan Lounge/Diner | EPC Current: C Potential: C | Approx Total Floor Area: 57.01 SQM
Property Oracle says ..
This is a two-bedroom flat located on Nuneaton Road in Bedworth. The property is listed by Bayzos Estate Agents with an asking price of £85,000. The flat benefits from two bathrooms and is situated in a location with good access to local schools and transport links, including Bedworth train station. However, the property appears to be in need of renovation, particularly in the bathrooms and kitchen. The competitive price reflects the condition, offering an opportunity for buyers to add value through improvements. There is no private garden, but communal parking is available.
Therefore, we give this property 5 / 10. *Disclaimer: This is our option and does constitute a recommendation or financial advice. Do your own research. *
- Price
- 9
- Condition
- 4
- Location
- 6
- Land
- 1
- Bedrooms
- 2
- Bathrooms
- 2
The heatmap indicates the level of crime in the area. The color of the heatmap indicates the crime severity and recency.
Metrics Year-on-Year
- Average area value
- 411,094.00 £Increased by 15.33 %
- Average area rental value
- 1,035.00 £/moDecreased by 6.76 %
- Est rental Yield
- 3.02 %Decreased by 19.25 %
- Crime Rate
- 20.00 %Unchanged by 0.00 %
Agent Activity
Bayzos Estate Agents created the listing.
Nearby Schools
| Name | Type | Ofsted | Distance |
|---|---|---|---|
| Race Leys Junior School | Academy Sponsor Led | Good | 0.49 KM |
| Race Leys Infant School | Community School | Good | 0.58 KM |
| St Francis Catholic Academy | Academy Converter | Good | 0.79 KM |
| The Canons C Of E Primary School | Voluntary Aided School | Outstanding | 1.31 KM |
| St Michaels Children'S Centre (Formerly Known As Bedworth Early Years Centre) | Children's Centre | 1.41 KM |
Images
Nearby Streets
| Name | Average Price | Average Sqft | Distance |
|---|---|---|---|
| Jubilee Terrace | £ 0 | 0 | 0.00 KM |
| Blockley Road | £ 220,000 | 0 | 0.00 KM |
| Leicester Road | £ 0 | 0 | 0.00 KM |
| Kimberley Road | £ 214,975 | 0 | 0.00 KM |
| Hurst Road | £ 0 | 0 | 0.00 KM |
Nearby Transport
| Name | NLC | TLC | Distance |
|---|---|---|---|
| Bedworth | 1165 | BEH | 1.28 KM |
| Bermuda Park | 6543 | BEP | 1.45 KM |
| Nuneaton | 1077 | NUN | 4.36 KM |
| Coventry Arena | 7416 | CAA | 5.05 KM |
Nearby Listings
| Address | Price | Type | Score | Distance |
|---|---|---|---|---|
| Nuneaton Road, Bedworth, CV12 | £ 85,000 | BUY | 5 / 10 | 0.00 KM |
| Nuneaton Road, Bedworth, Warwickshire, CV12 | £ 155,000 | BUY | 6 / 10 | 0.06 KM |
| Nuneaton Road, Bedworth | £ 147,500 | BUY | 6 / 10 | 0.06 KM |
| Nuneaton Road, Bedworth, Warwickshire, CV12 | £ 110,000 | BUY | Unknown | 0.07 KM |
| John Knight Road, Bedworth, Warwickshire, CV12 | £ 210,000 | BUY | 6 / 10 | 0.07 KM |
Nearby Properties
| Address | Price | Distance |
|---|---|---|
| 72 Nuneaton Road | £ 111,000 | 0.06 KM |
| 100 Nuneaton Road | £ 125,000 | 0.06 KM |
| 108 Nuneaton Road | £ 118,000 | 0.06 KM |
| 106 Nuneaton Road | £ 155,000 | 0.06 KM |
| 90 Nuneaton Road | £ 174,995 | 0.06 KM |