Pearsons says ..
Overlooking the leafy expanse of the local park, this substantial five-bedroom semi-detached period home on Shirley Road offers a rare opportunity to secure a character property in one of Southsea's most desirable locations. Blending elegant period features with contemporary updates, the house ha...
Property Oracle says ..
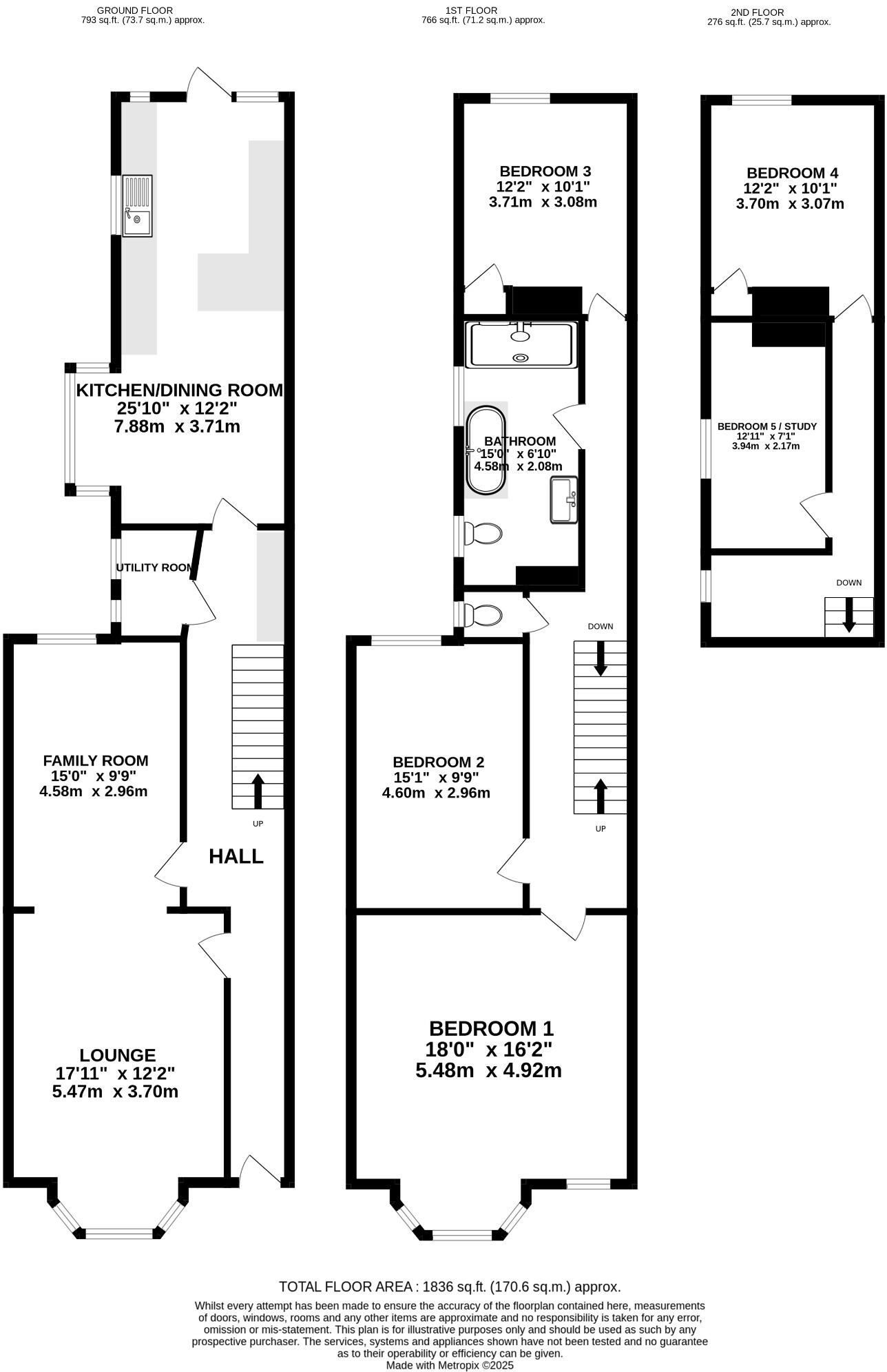
This is a five-bedroom semi-detached house located on Shirley Road, Southsea. The property offers ample living space at 1,593.60 sqft. While the kitchen and bathrooms have been modernised, several rooms require renovation. The property includes a garden. The house is situated in a convenient location, with schools and transport links nearby. The listing price is £575,000.
Therefore, we give this property 5 / 10. *Disclaimer: This is our option and does constitute a recommendation or financial advice. Do your own research. *
- Price
- 6
- Condition
- 4
- Location
- 7
- Land
- 6
- Bedrooms
- 5
- Bathrooms
- 1
- Sqft (est)
- 1,593.60
The heatmap indicates the level of crime in the area. The color of the heatmap indicates the crime severity and recency.
Metrics Year-on-Year
- Average area value
- 190,742.00 £Decreased by 45.70 %
- Est sale value
- 575,289.60 £Decreased by 1.10 %
- Average area rental value
- 1,259.00 £/moDecreased by 5.12 %
- Est letting value
- 3,187.20 £/moIncreased by 100.00 %
- Est rental Yield
- 7.92 %Increased by 74.83 %
- Crime Rate
- 13.00 %Unchanged by 0.00 %
Agent Activity
Pearsons created the listing.
Nearby Schools
| Name | Type | Ofsted | Distance |
|---|---|---|---|
| St Swithun'S Catholic Primary School | Voluntary Aided School | Good | 0.19 KM |
| Southsea Infant School | Community School | Good | 0.21 KM |
| Mayville High School | Other Independent School | 0.24 KM | |
| Southsea And Brambles Children'S Centre | Children's Centre | 0.54 KM | |
| Craneswater Junior School | Community School | Good | 0.77 KM |
Images
Nearby Streets
| Name | Average Price | Average Sqft | Distance |
|---|---|---|---|
| Beatrice Road | £ 270,000 | 0 | 0.00 KM |
| Boulton Road | £ 0 | 0 | 0.00 KM |
| Onslow Road | £ 0 | 0 | 0.00 KM |
| Campbell Road | £ 0 | 0 | 0.00 KM |
| The Dell | £ 0 | 0 | 0.00 KM |
Nearby Transport
| Name | NLC | TLC | Distance |
|---|---|---|---|
| Fratton | 5509 | FTN | 1.40 KM |
| Portsmouth And Southsea | 5537 | PMS | 2.06 KM |
| Portsmouth Harbour | 5540 | PMH | 3.52 KM |
| Hilsea | 5539 | HLS | 5.33 KM |
| Cosham | 5896 | CSA | 6.50 KM |
Nearby Listings
| Address | Price | Type | Score | Distance |
|---|---|---|---|---|
| Shirley Road, Southsea | £ 720,000 | BUY | Unknown | 0.00 KM |
| Shirley Road, Southsea | £ 575,000 | BUY | 5 / 10 | 0.00 KM |
| Lowcay Road, Southsea | £ 535,000 | BUY | 6 / 10 | 0.06 KM |
| Wisborough Road, Southsea | £ 325,000 | BUY | Unknown | 0.09 KM |
| Lowcay Road, Southsea, Hampshire | £ 270,000 | BUY | Unknown | 0.11 KM |
Nearby Properties
| Address | Price | Distance |
|---|---|---|
| 9 Shirley Road | £ 326,000 | 0.01 KM |
| 7 Shirley Road | £ 670,000 | 0.01 KM |
| 8 Shirley Road | £ 610,000 | 0.01 KM |
| 48 Lowcay Road | £ 240,000 | 0.05 KM |
| 40 Lowcay Road | £ 320,000 | 0.06 KM |