Red Row, Hazel Grove
TH

Red Row, Hazel Grove

By Thomas Property Group

£ 430,000

Reviews

3 out of 5 stars

Thomas Property Group says ..

^^^ 5% DEPOSIT CONTRIBUTION ON THIS BRAND NEW 4 BED HOME ***

Property Oracle says ..

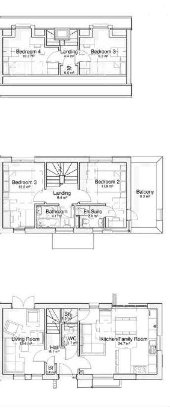
This property is a modern terraced house located in Red Row, Hazel Grove, Stockport. It benefits from four bedrooms and two bathrooms, and has a list price of £430,000. The property is in excellent condition, with modern fixtures and fittings throughout. The images show a modern, well-maintained interior with a neutral color palette. There is a small garden visible from the property images. The location is good, with nearby schools and transportation links. The average price per sqft in the area is £338, and this property is slightly below average at £398 per sqft. Considering the condition, location, and size of the property, the list price seems reasonable.

Therefore, we give this property 7 / 10. *Disclaimer: This is our option and does constitute a recommendation or financial advice. Do your own research. *

Price
8
Condition
10
Location
8
Land
3
Bedrooms
4
Bathrooms
2
Sqft (est)
1,078.54

The heatmap indicates the level of crime in the area. The color of the heatmap indicates the crime severity and recency.

Metrics Year-on-Year

Average area value
600,417.00 £
Increased by 40.45 %
from 427,490.00 £
Est sale value
414,159.36 £
Increased by 2.67 %
from 403,373.96 £
Average area rental value
1,815.00 £/mo
Increased by 55.39 %
from 1,168.00 £/mo
Est letting value
1,078.54 £/mo
Unchanged by 0.00 %
from 1,078.54 £/mo
Est rental Yield
3.63 %
Increased by 10.67 %
from 3.28 %
Crime Rate
26.00 %
Unchanged by 0.00 %
from 26.00 %

Agent Activity

  • Thomas Property Group created the listing.

Nearby Schools

NameTypeOfstedDistance
Torkington Primary SchoolCommunity SchoolGood1.42 KM
Norbury Court SchoolOther Independent SchoolGood2.31 KM
Norbury Hall Primary SchoolCommunity SchoolGood2.79 KM
High Lane Primary SchoolCommunity SchoolGood2.81 KM
St Simon'S Catholic Primary SchoolVoluntary Aided SchoolGood2.87 KM

Images

social media-18 social media-16 social media-15 social media-36 social media-42 social media-21 social media-25 social media-57 social media-45 social media-11 social media-60 social media-24 social media-17 social media-1 social media-49 social media-66 social media-27 social media-28 social media-33 social media-26 social media-55 social media-71 social media-70 social media-61 social media-72 social media-65 social media-31 Gardern social media-63

Nearby Streets

NameAverage PriceAverage SqftDistance
Footpath 108HGB £ 1,500,00000.00 KM
Bath Close £ 325,00000.00 KM
Brook Lane £ 000.00 KM
Ashton Place £ 170,00000.00 KM
Ayr Close £ 450,00000.00 KM

Nearby Transport

NameNLCTLCDistance
Middlewood2971MDL1.53 KM
Hazel Grove2768HAZ3.21 KM
Rose Hill Marple2873RSH3.76 KM
Poynton2874PYT4.79 KM
Romiley2833RML5.19 KM

Nearby Listings

AddressPriceTypeScoreDistance
Red Row, Hazel Grove £ 430,000BUY7 / 100.00 KM
Red Row, Hazel Grove £ 410,000BUY7 / 100.00 KM
The Paddocks, Red Row, Hazel Grove £ 425,000BUY7 / 100.00 KM
Red Row, Hazel Grove £ 410,000BUYUnknown0.00 KM
Red Row, Hazel Grove, Stockport £ 450,000BUY5 / 100.00 KM

Nearby Properties

AddressPriceDistance
8 Park View £ 125,0000.13 KM
2 Park View £ 180,0000.13 KM
4 Werneth View £ 119,9950.37 KM
Denholme £ 7,5000.43 KM
184 Buxton Road £ 445,0000.52 KM