Yopa says ..
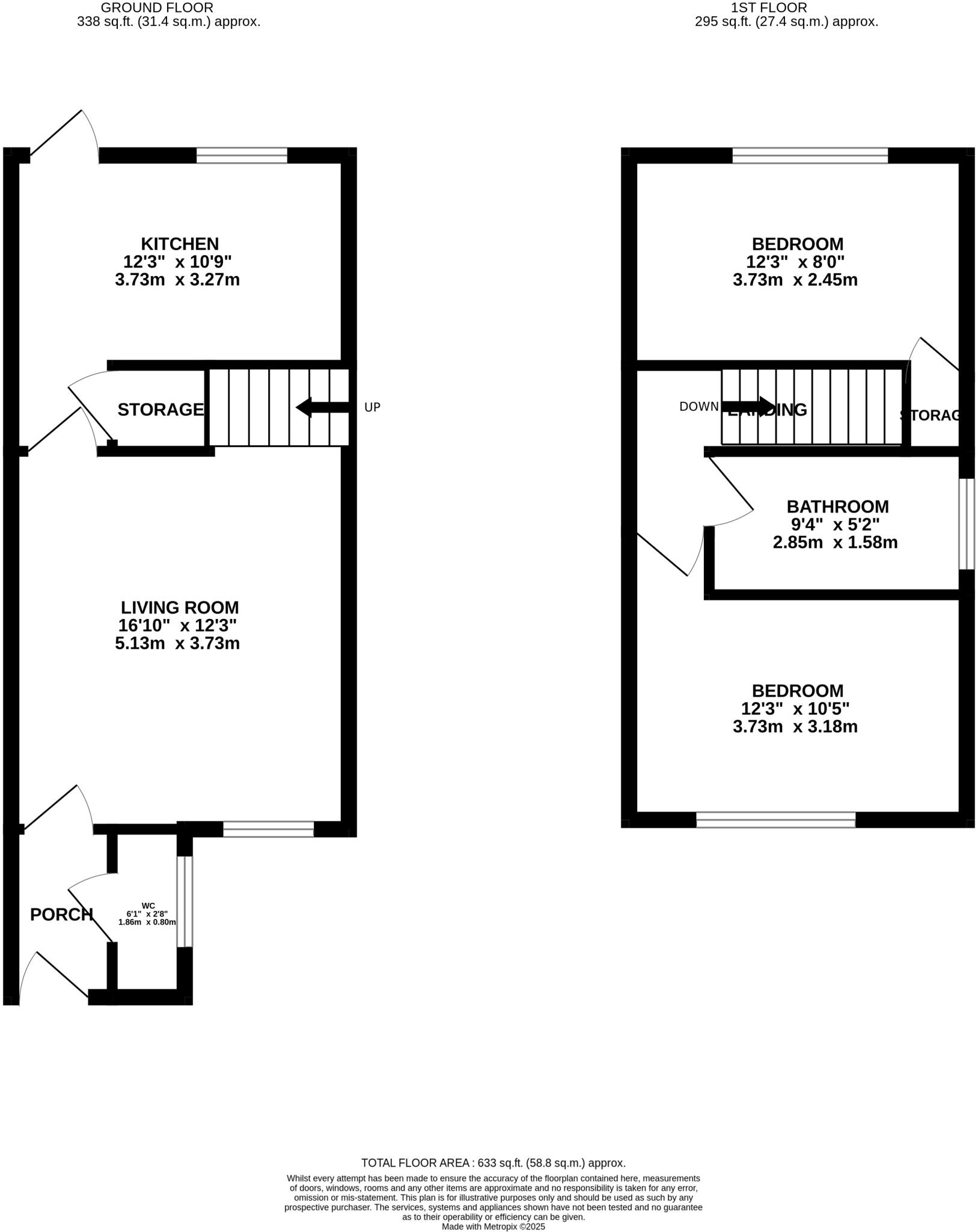
*** Offered for sale with no chain is this stunning 2 bedroom semi detached home with driveway, garage, large back garden and separate downstairs W/C situated in a popular residential location ***
Property Oracle says ..
Therefore, we give this property 7 / 10. *Disclaimer: This is our option and does constitute a recommendation or financial advice. Do your own research. *
- Price
- 8
- Condition
- 8
- Location
- 7
- Land
- 7
- Bedrooms
- 2
- Bathrooms
- 2
- Sqft (est)
- 628.35
The heatmap indicates the level of crime in the area. The color of the heatmap indicates the crime severity and recency.
Metrics Year-on-Year
- Average area value
- 420,000.00 £Decreased by 24.04 %
- Est sale value
- 550,434.60 £Increased by 140.00 %
- Average area rental value
- 1,475.00 £/moDecreased by 37.68 %
- Est letting value
- 1,885.05 £/moIncreased by 200.00 %
- Est rental Yield
- 4.21 %Decreased by 18.09 %
- Crime Rate
- 7.00 %Unchanged by 0.00 %
from 552,933.00 £
from 229,347.75 £
from 2,367.00 £/mo
from 628.35 £/mo
from 5.14 %
from 7.00 %
Agent Activity
Yopa created the listing.
Nearby Schools
| Name | Type | Ofsted | Distance |
|---|---|---|---|
| Simpson'S Lane Academy | Academy Converter | Good | 0.53 KM |
| The Vale Primary Academy | Academy Converter | Outstanding | 1.09 KM |
| Willow Green Academy | Academy Sponsor Led | Good | 1.68 KM |
| Brotherton And Byram Community Primary Academy | Academy Sponsor Led | Good | 2.38 KM |
| England Lane Academy | Academy Sponsor Led | Good | 2.48 KM |
Images
Nearby Streets
| Name | Average Price | Average Sqft | Distance |
|---|---|---|---|
| Mulberry Close | £ 0 | 0 | 0.00 KM |
| Blossom Court | £ 230,000 | 0 | 0.00 KM |
| Great North Road | £ 600,000 | 0 | 0.00 KM |
| Oak Tree Crescent | £ 0 | 0 | 0.00 KM |
| Pear Tree Mews | £ 0 | 0 | 0.00 KM |
Nearby Transport
| Name | NLC | TLC | Distance |
|---|---|---|---|
| Knottingley | 8546 | KNO | 0.99 KM |
| Pontefract Monkhill | 8548 | PFM | 4.11 KM |
| Pontefract Baghill | 8540 | PFR | 4.20 KM |
| Pontefract Tanshelf | 8541 | POT | 5.84 KM |
| Glasshoughton | 8360 | GLH | 8.38 KM |
Nearby Listings
| Address | Price | Type | Score | Distance |
|---|---|---|---|---|
| Seaton Court, Knottingley, WF11 | £ 180,000 | BUY | 7 / 10 | 0.00 KM |
| Seaton Court, Knottingley, WF11 | £ 170,000 | BUY | 6 / 10 | 0.00 KM |
| Seaton Court, Knottingley, West Yorkshire | £ 200,000 | BUY | 6 / 10 | 0.03 KM |
| Plowes Way, Knottingley | £ 220,000 | BUY | 7 / 10 | 0.03 KM |
| Plowes Way, Knottingley | £ 200,000 | BUY | Unknown | 0.05 KM |
Nearby Properties
| Address | Price | Distance |
|---|---|---|
| 22 Plowes Way | £ 120,000 | 0.03 KM |
| 26 Plowes Way | £ 183,000 | 0.03 KM |
| 16 Plowes Way | £ 133,000 | 0.03 KM |
| 38 Plowes Way | £ 175,000 | 0.03 KM |
| 24 Plowes Way | £ 120,000 | 0.06 KM |