Acorn says ..
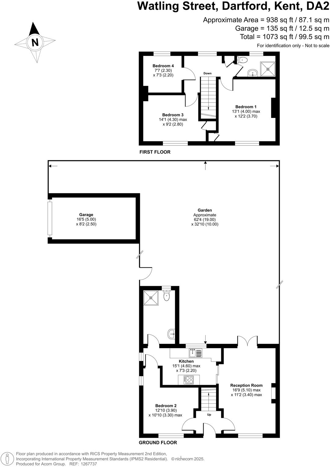
**Guide Price £450,000 - £475,000** Welcome to this charming three-bedroom semi-detached house, with off-street parking and a garage. Conveniently located in a sought-after neighbourhood, ideal for families or professionals. Viewings highly recommended. This prop...
Property Oracle says ..
This semi-detached property is located on Watling Street in Dartford, Kent. The area benefits from being close to several primary schools, including The Brent Primary School (rated Outstanding by Ofsted) and several other schools within a 1.5km radius. Transportation links are also good, with several Southeastern train stations within a reasonable distance, as well as the c2c line at Purfleet. The property itself appears to be in need of some modernisation and updating, as evidenced by the interior photographs. The current condition of the property is reflected in the need for renovation. The garden is relatively small but provides some outdoor space. The list price of £450,000 seems high given the property’s condition and the average price per square foot in the area (£634) when compared to the average house price of £869,722 and average sqft of 1370. The surrounding area has a mix of property types and prices, but many nearby properties are terraced houses, suggesting that this semi-detached property might be on the higher end of the price range for the area, given its condition.
Therefore, we give this property 4 / 10. *Disclaimer: This is our option and does constitute a recommendation or financial advice. Do your own research. *
- Price
- 3
- Condition
- 4
- Location
- 7
- Land
- 5
- Bedrooms
- 3
- Bathrooms
- 1
- Sqft (est)
- 896.60
- Lot (est)
- 938.00
The heatmap indicates the level of crime in the area. The color of the heatmap indicates the crime severity and recency.
Metrics Year-on-Year
- Average area value
- 680,617.00 £Decreased by 16.07 %
- Est sale value
- 401,676.80 £Decreased by 14.18 %
- Average area rental value
- 1,914.00 £/moIncreased by 14.68 %
- Est letting value
- 896.60 £/moUnchanged by 0.00 %
- Est rental Yield
- 3.37 %Increased by 36.44 %
- Crime Rate
- 9.00 %Unchanged by 0.00 %
Agent Activity
Acorn created the listing.
Nearby Schools
| Name | Type | Ofsted | Distance |
|---|---|---|---|
| The Brent Primary School | Academy Converter | Outstanding | 0.54 KM |
| Fleetdown Primary Academy | Academy Converter | 0.58 KM | |
| Stone Lodge School | Free Schools | 0.84 KM | |
| The Gateway Primary Academy | Academy Converter | Good | 1.02 KM |
| Stone St Mary'S Cofe Primary School | Academy Converter | Good | 1.38 KM |
Images
Nearby Streets
| Name | Average Price | Average Sqft | Distance |
|---|---|---|---|
| Wiltshire Close | £ 0 | 0 | 0.00 KM |
| Princes Road | £ 415,000 | 0 | 0.00 KM |
| Radfield Drive | £ 325,000 | 0 | 0.00 KM |
| Gore Road | £ 375,000 | 0 | 0.00 KM |
| Watling Street | £ 0 | 0 | 0.00 KM |
Nearby Transport
| Name | NLC | TLC | Distance |
|---|---|---|---|
| Stone Crossing | 5248 | SCG | 2.10 KM |
| Dartford | 5101 | DFD | 3.44 KM |
| Greenhithe For Bluewater | 5138 | GNH | 3.65 KM |
| Farningham Road | 5105 | FNR | 4.45 KM |
| Purfleet | 7453 | PFL | 4.85 KM |
Nearby Listings
| Address | Price | Type | Score | Distance |
|---|---|---|---|---|
| Watling Street, Dartford, Kent | £ 450,000 | BUY | 4 / 10 | 0.00 KM |
| Salisbury Road, Dartford, DA2 | £ 240,000 | BUY | Unknown | 0.10 KM |
| Watling Street, Dartford | £ 475,000 | BUY | 6 / 10 | 0.10 KM |
| Watling Street, Dartford | £ 525,000 | BUY | 6 / 10 | 0.14 KM |
| Salisbury Road, Stone, Dartford, Kent, DA2 | £ 250,000 | BUY | 6 / 10 | 0.15 KM |
Nearby Properties
| Address | Price | Distance |
|---|---|---|
| 123 Hill House Road | £ 270,000 | 0.05 KM |
| 127 Hill House Road | £ 350,500 | 0.05 KM |
| 148 Hill House Road | £ 290,000 | 0.08 KM |
| 140 Hill House Road | £ 176,000 | 0.08 KM |
| 129 Hill House Road | £ 182,000 | 0.08 KM |