Birch Terrace, Burntwood
By Lovett&Co. Estate Agents
£ 425,000
Reviews
3 out of 5 stars
Lovett&Co. Estate Agents says ..
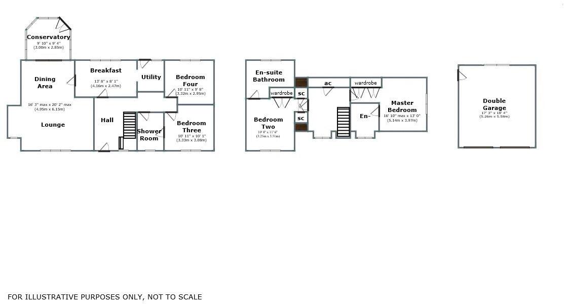
Lovett&Co. Estate Agents are delighted to offer for sale this spacious four-bedroom dormer-style property, set on a generous plot with a large in-and-out driveway and a detached double garage. The property offers well-proportioned accommodation throughout and briefly comprises: a welcoming rec...
Property Oracle says ..
The property is located in a family-friendly area with good schools and relatively convenient transport links. It appears to be in good structural condition, though the interior decor is dated. The property includes a moderate-sized garden and a detached garage. The list price is higher than the average for the area, but this may be justified by the property size and additional features. A more detailed price comparison with similar properties is needed for a complete assessment.
Therefore, we give this property 6 / 10. *Disclaimer: This is our option and does constitute a recommendation or financial advice. Do your own research. *
- Price
- 6
- Condition
- 8
- Location
- 7
- Land
- 6
- Bedrooms
- 4
- Bathrooms
- 3
- Sqft (est)
- 1,365.76
The heatmap indicates the level of crime in the area. The color of the heatmap indicates the crime severity and recency.
Metrics Year-on-Year
- Average area value
- 65,000.00 £Decreased by 67.00 %
- Est sale value
- 167,988.48 £Decreased by 39.11 %
- Average area rental value
- 725.00 £/moIncreased by 21.44 %
- Est letting value
- 1,365.76 £/mo
- Est rental Yield
- 13.38 %Increased by 267.58 %
- Crime Rate
- 8.00 %Unchanged by 0.00 %
Agent Activity
Lovett&Co. Estate Agents marked this listing as sold.
Lovett&Co. Estate Agents created the listing.
Nearby Schools
| Name | Type | Ofsted | Distance |
|---|---|---|---|
| Boney Hay Primary Academy | Academy Converter | Good | 0.58 KM |
| Chase Terrace Academy | Academy Converter | Good | 1.22 KM |
| Chase Terrace Primary School | Foundation School | Good | 1.35 KM |
| Springhill Primary Academy | Academy Sponsor Led | Good | 1.36 KM |
| Highfields Primary Academy | Academy Converter | 1.66 KM |
Images
Nearby Streets
| Name | Average Price | Average Sqft | Distance |
|---|---|---|---|
| Kipling Avenue | £ 0 | 0 | 0.00 KM |
| Croft Gardens | £ 0 | 0 | 0.00 KM |
| Masefield Close | £ 290,000 | 0 | 0.00 KM |
| Highfield Close | £ 200,000 | 0 | 0.00 KM |
| Common Side | £ 0 | 0 | 0.00 KM |
Nearby Transport
| Name | NLC | TLC | Distance |
|---|---|---|---|
| Rugeley Town | 1135 | RGT | 7.43 KM |
| Rugeley Trent Valley | 1084 | RGL | 9.01 KM |
| Hednesford | 1148 | HNF | 9.02 KM |
Nearby Listings
| Address | Price | Type | Score | Distance |
|---|---|---|---|---|
| Birch Terrace, Burntwood | £ 425,000 | BUY | 6 / 10 | 0.00 KM |
| Birch Terrace, Burntwood, WS7 2HJ | £ 400,000 | BUY | 6 / 10 | 0.15 KM |
| Birch Terrace, BURNTWOOD | £ 425,000 | BUY | Unknown | 0.16 KM |
| Tennyson Avenue | £ 325,000 | BUY | Unknown | 0.21 KM |
| Ryecroft Drive, Burntwood, WS7 | £ 325,000 | BUY | 6 / 10 | 0.27 KM |
Nearby Properties
| Address | Price | Distance |
|---|---|---|
| 32 Birch Terrace | £ 190,000 | 0.01 KM |
| 11 Birch Terrace | £ 193,000 | 0.01 KM |
| 22 Birch Terrace | £ 348,000 | 0.01 KM |
| 7 Birch Terrace | £ 181,000 | 0.02 KM |
| 9 Birch Terrace | £ 227,000 | 0.02 KM |