MC
Lord Street, Southport, PR9
By McGowan Housing
£ 135,000
Reviews
3 out of 5 stars
McGowan Housing says ..
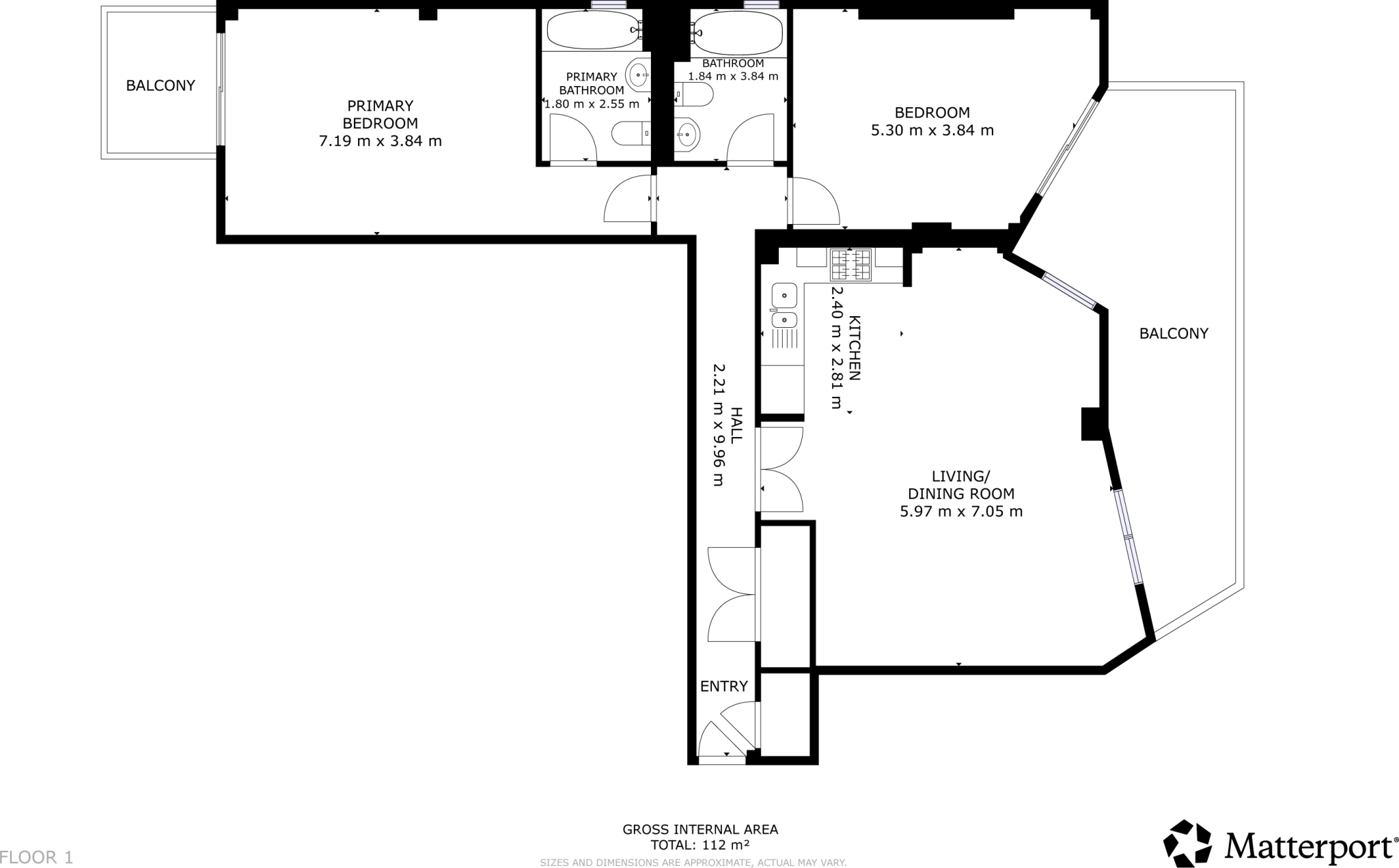
Ideal for First-Time Buyers | 2 Bedroom Flat | 2 Bathrooms | Well-kept Flat | Balcony | Spacious Lounge | Parking is Available | Southport Town Location
Property Oracle says ..
Therefore, we give this property 6 / 10. *Disclaimer: This is our option and does constitute a recommendation or financial advice. Do your own research. *
- Price
- 9
- Condition
- 7
- Location
- 8
- Land
- 1
- Bedrooms
- 2
- Bathrooms
- 2
- Sqft (est)
- 1,403.94
The heatmap indicates the level of crime in the area. The color of the heatmap indicates the crime severity and recency.
Metrics Year-on-Year
- Average area value
- 337,276.00 £Decreased by 6.99 %
- Est sale value
- 439,433.22 £Increased by 9.06 %
- Average area rental value
- 7,147.00 £/moIncreased by 653.90 %
- Est letting value
- 8,423.64 £/mo
- Est rental Yield
- 25.43 %Increased by 709.87 %
- Crime Rate
- 11.00 %Unchanged by 0.00 %
from 362,631.00 £
from 402,930.78 £
from 948.00 £/mo
from 0.00 £/mo
from 3.14 %
from 11.00 %
Agent Activity
McGowan Housing created the listing.
Nearby Schools
| Name | Type | Ofsted | Distance |
|---|---|---|---|
| Holy Trinity Church Of England Primary School, Southport | Academy Converter | 0.30 KM | |
| Southport College | Further Education | Good | 0.36 KM |
| Parenting 2000 Children'S Centre | Children's Centre Linked Site | 0.45 KM | |
| Arden College | Special Post 16 Institution | Good | 0.54 KM |
| St Philip'S Church Of England Primary School | Voluntary Aided School | Good | 1.25 KM |
Images
Nearby Streets
| Name | Average Price | Average Sqft | Distance |
|---|---|---|---|
| Leicester Street | £ 330,000 | 0 | 0.00 KM |
| Avondale Road | £ 237,500 | 0 | 0.00 KM |
| Chapel Street | £ 0 | 0 | 0.00 KM |
| Back Bath Street | £ 0 | 0 | 0.00 KM |
| Albert Place | £ 0 | 0 | 0.00 KM |
Nearby Transport
| Name | NLC | TLC | Distance |
|---|---|---|---|
| Southport | 2262 | SOP | 0.64 KM |
| Birkdale | 2352 | BDL | 2.55 KM |
| Meols Cop | 2357 | MEC | 2.63 KM |
| Hillside | 2231 | HIL | 4.30 KM |
| Ainsdale | 2350 | ANS | 7.28 KM |
Nearby Listings
| Address | Price | Type | Score | Distance |
|---|---|---|---|---|
| Lord Street, Southport, PR9 | £ 135,000 | BUY | 6 / 10 | 0.00 KM |
| Lord Street, Southport, Merseyside, PR9 | £ 95,000 | BUY | 6 / 10 | 0.00 KM |
| Lord Street, Southport, PR9 | £ 125,000 | BUY | 6 / 10 | 0.00 KM |
| Lord Street, Southport, PR9 | £ 135,000 | BUY | 6 / 10 | 0.00 KM |
| Lord Street, Southport, PR9 | £ 135,000 | BUY | 5 / 10 | 0.00 KM |
Nearby Properties
| Address | Price | Distance |
|---|---|---|
| 34 Union Street | £ 175,000 | 0.09 KM |
| 21 Sandringham Court | £ 105,000 | 0.10 KM |
| 14 Sandringham Court | £ 42,000 | 0.10 KM |
| 25 Sandringham Court | £ 70,000 | 0.10 KM |
| 4 Sandringham Court | £ 52,000 | 0.10 KM |