Drive Spur, Kingswood, Tadworth, KT20 6LR
By eXp UK
£ 1,150,000
Reviews
3 out of 5 stars
eXp UK says ..
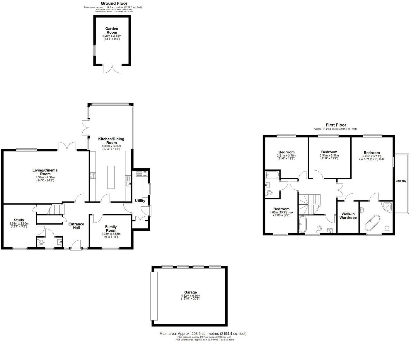
REF JK0700.'Ashley' offers a rare opportunity to live in the desirable village of Kingswood . Built originally in the 1970s the property has benefitted considerable refurbishment and extending , providing what is now a highly contemporary 4 bedroom detached home that backs an...
Property Oracle says ..
This is a detached property located on Drive Spur, Kingswood, in Surrey. The house features four bedrooms and three bathrooms, with a total living space of 484.59 sqft. The property is listed for £1,150,000 by eXp UK. The house is in excellent condition, with modern interiors and a well-maintained garden. The property also benefits from good transport links and is located near several schools. The property includes a modern kitchen, multiple reception rooms, and a large garden with a patio area. There is also a garage and ample parking space. One of the rooms has been converted into a golf simulator room.
Therefore, we give this property 7 / 10. *Disclaimer: This is our option and does constitute a recommendation or financial advice. Do your own research. *
- Price
- 6
- Condition
- 9
- Location
- 7
- Land
- 8
- Bedrooms
- 4
- Bathrooms
- 3
- Sqft (est)
- 484.59
The heatmap indicates the level of crime in the area. The color of the heatmap indicates the crime severity and recency.
Metrics Year-on-Year
- Average area value
- 1,040,409.00 £Decreased by 2.03 %
- Est sale value
- 312,560.55 £Increased by 46.92 %
- Average area rental value
- 1,550.00 £/moDecreased by 70.97 %
- Est letting value
- 0.00 £/moDecreased by 100.00 %
- Est rental Yield
- 1.79 %Decreased by 70.32 %
- Crime Rate
- 11.00 %Unchanged by 0.00 %
Agent Activity
eXp UK created the listing.
Nearby Schools
| Name | Type | Ofsted | Distance |
|---|---|---|---|
| Aberdour Preparatory School | Other Independent School | 2.31 KM | |
| St Anne'S Catholic Primary School | Voluntary Aided School | Good | 2.52 KM |
| The Beacon School | Academy Converter | Good | 2.71 KM |
| Banstead Community Junior School | Community School | Good | 2.90 KM |
| Ymca Sure Start Children'S Centre In Banstead | Children's Centre | 2.92 KM |
Images
Nearby Streets
| Name | Average Price | Average Sqft | Distance |
|---|---|---|---|
| Manor Place | £ 511,333 | 0 | 0.00 KM |
Nearby Transport
| Name | NLC | TLC | Distance |
|---|---|---|---|
| Kingswood | 5366 | KND | 1.50 KM |
| Chipstead | 5353 | CHP | 3.40 KM |
| Banstead | 5348 | BAD | 3.88 KM |
| Tadworth | 5386 | TAD | 4.25 KM |
| Tattenham Corner | 5387 | TAT | 5.09 KM |
Nearby Listings
| Address | Price | Type | Score | Distance |
|---|---|---|---|---|
| Drive Spur, Kingswood, Tadworth, KT20 6LR | £ 1,150,000 | BUY | 7 / 10 | 0.00 KM |
| Drive Spur, Kingswood, Tadworth | £ 825,000 | BUY | 6 / 10 | 0.02 KM |
| Forest Drive, Kingswood | £ 1,350,000 | BUY | 7 / 10 | 0.06 KM |
| Forest Drive, Kingswood, Surrey | £ 1,395,000 | BUY | 8 / 10 | 0.24 KM |
| Forest Drive, Kingswood, Tadworth, Surrey | £ 1,250,000 | BUY | 7 / 10 | 0.25 KM |
Nearby Properties
| Address | Price | Distance |
|---|---|---|
| Gerrans | £ 705,000 | 0.25 KM |
| Kingscroft | £ 1,075,000 | 0.25 KM |
| Little Thatches | £ 1,330,000 | 0.25 KM |
| Fairfield | £ 799,950 | 0.25 KM |
| Mayfield | £ 1,125,000 | 0.25 KM |