Commercial Road, Barrhead, Glasgow, G78 1AQ
By Barrhead Property Centre
£ 130,000
Reviews
3 out of 5 stars
Barrhead Property Centre says ..
Immaculately presented upper cottage flat presented to the market in true walk-in condition. This is a superb family home offers flexible living accommodation and is situated in a popular locale.
Property Oracle says ..
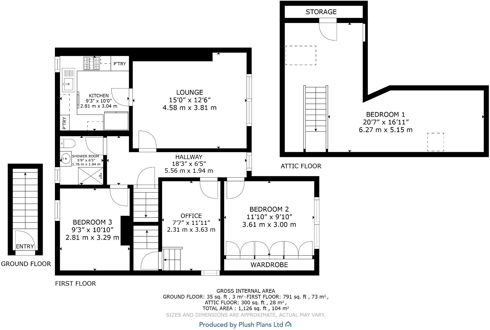
This property is a 3-bedroom, 1-bathroom house located in Barrhead, Glasgow. Based on the provided images, the property appears to be in good condition, recently renovated or well-maintained. The kitchen and bathrooms look modern and updated. The property benefits from a small rear garden, suitable for a small family. The location is close to Barrhead train station, providing convenient access to Glasgow and other areas. The list price of £130,000 seems reasonable compared to nearby properties, although more data on average price per square foot would be needed for a definitive conclusion. The average price for nearby streets ranges from £75,000 to £205,000, with a wide variation in property types and sizes.
Therefore, we give this property 6 / 10. *Disclaimer: This is our option and does constitute a recommendation or financial advice. Do your own research. *
- Price
- 7
- Condition
- 8
- Location
- 7
- Land
- 4
- Bedrooms
- 3
- Bathrooms
- 1
- Sqft (est)
- 1,270.14
The heatmap indicates the level of crime in the area. The color of the heatmap indicates the crime severity and recency.
Metrics Year-on-Year
- Average area value
- 285,000.00 £Decreased by 14.20 %
- Est sale value
- 308,644.02 £Increased by 4.74 %
- Average area rental value
- 1,400.00 £/moIncreased by 40.00 %
- Est letting value
- 1,270.14 £/mo
- Est rental Yield
- 5.89 %Increased by 63.16 %
- Crime Rate
- 0.00 %
Agent Activity
Barrhead Property Centre marked this listing as sold.
Barrhead Property Centre created the listing.
Images
Nearby Streets
| Name | Average Price | Average Sqft | Distance |
|---|---|---|---|
| Commercial Road | £ 75,000 | 0 | 0.00 KM |
| Victoria Place | £ 0 | 0 | 0.00 KM |
| Tait Avenue | £ 90,000 | 0 | 0.00 KM |
| Princes Square | £ 80,000 | 0 | 0.00 KM |
| Victoria Avenue | £ 0 | 0 | 0.00 KM |
Nearby Transport
| Name | NLC | TLC | Distance |
|---|---|---|---|
| Barrhead | 9674 | BRR | 0.85 KM |
| Nitshill | 9609 | NIT | 3.38 KM |
| Hawkhead | 9634 | HKH | 4.10 KM |
| Neilston | 9773 | NEI | 4.83 KM |
| Crookston | 9628 | CKT | 4.88 KM |
Nearby Listings
| Address | Price | Type | Score | Distance |
|---|---|---|---|---|
| Commercial Road, Barrhead, G78 | £ 110,000 | BUY | 7 / 10 | 0.10 KM |
| Carlibar Road, Barrhead Glasgow, G78 1AD | £ 72,000 | BUY | 5 / 10 | 0.42 KM |
| John Smith Gate, Barrhead, Glasgow | £ 199,950 | BUY | 7 / 10 | 0.43 KM |
| Tait Avenue, Barrhead, Glasgow | £ 110,000 | BUY | 6 / 10 | 0.47 KM |
| Tait Avenue, Barrhead, Glasgow | £ 130,000 | BUY | 7 / 10 | 0.53 KM |