MADE says ..
A well presented ONE BEDROOM MAISONETTE situated in a desired St. Leonards location, just MOMENTS FROM THE SEA. It's POSITIONED IN AN IDYLLIC SPOT close by to a range of artisan stores, galleries and restaurants along with a mainline railway station with connections to London. The accommodation h...
Property Oracle says ..
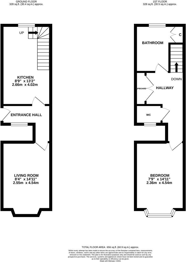
This is a one-bedroom flat located on Pevensey Road, St. Leonards-On-Sea. The property appears to be in good condition, with a modern kitchen and bathroom. It is situated in a convenient location, close to local schools and transportation links, including St Leonards Warrior Square station. The flat has a square footage of 655.52 sqft and is listed for £170,000. Considering the average price per square foot in the area and recent sales of similar properties, the asking price seems reasonable. The property would suit a first-time buyer or investor looking for a well-maintained flat in a convenient location. The lack of a garden may be a drawback for some buyers.
Therefore, we give this property 5 / 10. *Disclaimer: This is our option and does constitute a recommendation or financial advice. Do your own research. *
- Price
- 7
- Condition
- 8
- Location
- 7
- Land
- 1
- Bedrooms
- 1
- Bathrooms
- 1
- Sqft (est)
- 655.52
The heatmap indicates the level of crime in the area. The color of the heatmap indicates the crime severity and recency.
Metrics Year-on-Year
- Average area value
- 412,143.00 £Decreased by 3.72 %
- Est sale value
- 234,020.64 £Decreased by 10.53 %
- Average area rental value
- 998.00 £/moDecreased by 11.21 %
- Est letting value
- 0.00 £/moDecreased by 100.00 %
- Est rental Yield
- 2.91 %Decreased by 7.62 %
- Crime Rate
- 16.00 %Unchanged by 0.00 %
Agent Activity
MADE created the listing.
Nearby Schools
| Name | Type | Ofsted | Distance |
|---|---|---|---|
| St Leonards Children'S Centre | Children's Centre | 0.13 KM | |
| Lansdowne Children'S Centre | Secure Units | 0.13 KM | |
| Christ Church Cofe Primary And Nursery Academy | Academy Converter | Good | 0.80 KM |
| St Mary Star Of The Sea Catholic Primary School | Voluntary Aided School | Good | 0.81 KM |
| St Paul'S Church Of England Academy | Academy Converter | Good | 1.10 KM |
Images
Nearby Streets
| Name | Average Price | Average Sqft | Distance |
|---|---|---|---|
| Station Approach | £ 430,000 | 0 | 0.00 KM |
| The Uplands | £ 400,000 | 0 | 0.00 KM |
| Archery Villas | £ 0 | 0 | 0.00 KM |
| Saint John's Road | £ 0 | 0 | 0.00 KM |
| The Cloisters | £ 0 | 0 | 0.00 KM |
Nearby Transport
| Name | NLC | TLC | Distance |
|---|---|---|---|
| St Leonards Warrior Square | 5239 | SLQ | 0.22 KM |
| Hastings | 5219 | HGS | 2.04 KM |
| West St Leonards | 5242 | WLD | 2.06 KM |
| Ore | 5021 | ORE | 3.90 KM |
| Crowhurst | 5233 | CWU | 7.37 KM |
Nearby Listings
| Address | Price | Type | Score | Distance |
|---|---|---|---|---|
| Pevensey Road, St. Leonards-On-Sea | £ 170,000 | BUY | 5 / 10 | 0.00 KM |
| Pevensey Road, St. Leonards-On-Sea | £ 185,000 | BUY | 5 / 10 | 0.00 KM |
| Pevensey Road, St. Leonards-On-Sea | £ 250,000 | BUY | 5 / 10 | 0.01 KM |
| Pevensey Road, St. Leonards-On-Sea | £ 200,000 | BUY | 5 / 10 | 0.01 KM |
| Pevensey Road, St. Leonards-On-Sea | £ 230,000 | BUY | 4 / 10 | 0.01 KM |
Nearby Properties
| Address | Price | Distance |
|---|---|---|
| 25b Pevensey Road | £ 235,000 | 0.04 KM |
| 27a Pevensey Road | £ 172,000 | 0.04 KM |
| 1 Pevensey Road | £ 350,000 | 0.04 KM |
| 9a Pevensey Road | £ 73,000 | 0.04 KM |
| 29 Pevensey Road | £ 997,000 | 0.04 KM |