Wilfred Owen Close, Shrewsbury
MO

Wilfred Owen Close, Shrewsbury

By Monks Estate & Letting Agents

£ 340,000

Reviews

3 out of 5 stars

Monks Estate & Letting Agents says ..

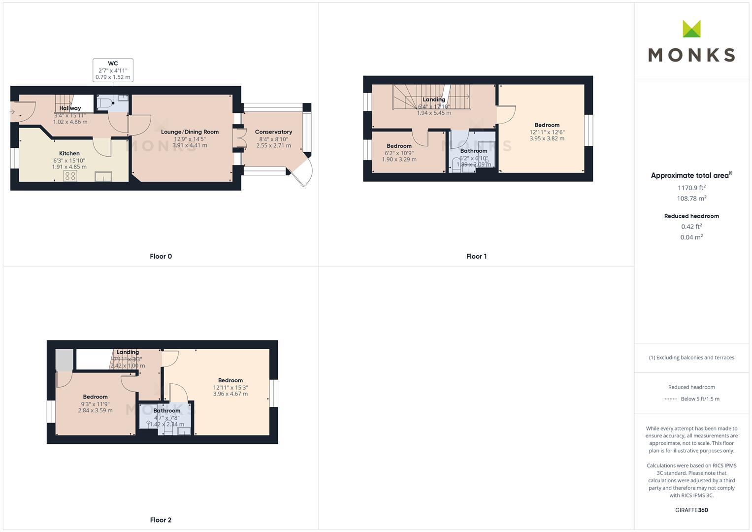
*** 4 BEDROOM TOWN HOUSE WITH GARAGE *** An excellent opportunity to purchase this Town House offering spacious and versatile living over 3 floors. Occupying an enviable position a short stroll from the Town Centre, riverside walks and Railway Station with good local facilities ...

Property Oracle says ..

This property is a four-bedroom terraced house located in the Abbey area of Shrewsbury, Shropshire. The location benefits from being relatively close to several schools, including Shrewsbury Cathedral Catholic Primary School and The Martin Wilson School (both rated as ‘Good’ by Ofsted), and Shrewsbury railway station. The property itself appears to be in good condition, with a modern kitchen and bathrooms. There is a conservatory and a garden, which is a positive feature. While the property is listed at £340,000, the average price for similar properties in the area is £340,786, suggesting the listing price is reasonable. However, the lack of square footage data makes a definitive price per square foot comparison impossible. More information on the property size and plot size would be needed to offer a more detailed price analysis.

Therefore, we give this property 7 / 10. *Disclaimer: This is our option and does constitute a recommendation or financial advice. Do your own research. *

Price
7
Condition
8
Location
8
Land
7
Bedrooms
4
Bathrooms
2
Sqft (est)
1,171.11

The heatmap indicates the level of crime in the area. The color of the heatmap indicates the crime severity and recency.

Metrics Year-on-Year

Average area value
350,323.00 £
Decreased by 1.18 %
from 354,508.00 £
Est sale value
504,748.41 £
Increased by 20.73 %
from 418,086.27 £
Average area rental value
1,334.00 £/mo
Decreased by 2.49 %
from 1,368.00 £/mo
Est letting value
1,171.11 £/mo
Unchanged by 0.00 %
from 1,171.11 £/mo
Est rental Yield
4.57 %
Decreased by 1.30 %
from 4.63 %
Crime Rate
8.00 %
Unchanged by 0.00 %
from 8.00 %

Agent Activity

  • Monks Estate & Letting Agents created the listing.

Nearby Schools

NameTypeOfstedDistance
Shrewsbury Cathedral Catholic Primary School And NurseryVoluntary Aided SchoolGood1.08 KM
The Martin Wilson SchoolFoundation SchoolGood1.14 KM
Coleham Primary SchoolAcademy Converter1.23 KM
Shrewsbury (S) Early Help Family HubChildren's Centre1.26 KM
Crowmoor Primary School And NurseryFoundation SchoolGood1.37 KM

Images

CAM01348G0-PR0591-STILL027.jpg CAM01348G0-PR0591-STILL002.jpg CAM01348G0-PR0591-STILL003.jpg CAM01348G0-PR0591-STILL004.jpg CAM01348G0-PR0591-STILL005.jpg CAM01348G0-PR0591-STILL007.jpg CAM01348G0-PR0591-STILL009.jpg CAM01348G0-PR0591-STILL010.jpg CAM01348G0-PR0591-STILL006.jpg CAM01348G0-PR0591-STILL018.jpg CAM01348G0-PR0591-STILL017.jpg CAM01348G0-PR0591-STILL019.jpg CAM01348G0-PR0591-STILL021.jpg CAM01348G0-PR0591-STILL015.jpg CAM01348G0-PR0591-STILL020.jpg CAM01348G0-PR0591-STILL023.jpg CAM01348G0-PR0591-STILL024.jpg CAM01348G0-PR0591-STILL011.jpg CAM01348G0-PR0591-STILL012.jpg CAM01348G0-PR0591-STILL013.jpg CAM01348G0-PR0591-STILL014.jpg CAM01348G0-PR0591-STILL025.jpg CAM01348G0-PR0591-STILL026.jpg

Nearby Streets

NameAverage PriceAverage SqftDistance
Newhall Gardens £ 000.00 KM
Cold Bath Court £ 000.00 KM
Mill Road £ 000.00 KM
West Street £ 200,00000.00 KM
Dorset Street £ 335,00000.00 KM

Nearby Transport

NameNLCTLCDistance
Shrewsbury4387SHR1.21 KM

Nearby Listings

AddressPriceTypeScoreDistance
Wilfred Owen Close, Shrewsbury £ 340,000BUY7 / 100.00 KM
Wilfred Owen Close, Underdale, Shrewsbury £ 329,950BUY7 / 100.00 KM
Wilfred Owen Close, Shrewsbury £ 150,000BUY5 / 100.03 KM
Wilfred Owen Close, Cherry Orchard, Shrewsbury, Shropshire, SY2 £ 54,000BUY6 / 100.04 KM
Wilfred Owen Close, Abbey Foregate, Shrewsbury, SY2 5BY £ 229,950BUY6 / 100.08 KM

Nearby Properties

AddressPriceDistance
6 Wilfred Owen Close £ 181,0000.04 KM
17 Wilfred Owen Close £ 212,5000.04 KM
15 Wilfred Owen Close £ 117,0000.04 KM
67 Wilfred Owen Close £ 100,8000.04 KM
26 Wilfred Owen Close £ 186,5000.04 KM