JA
Leverson Street, Streatham
By Jacksons Estate Agents
£ 750,000
Reviews
3 out of 5 stars
Jacksons Estate Agents says ..
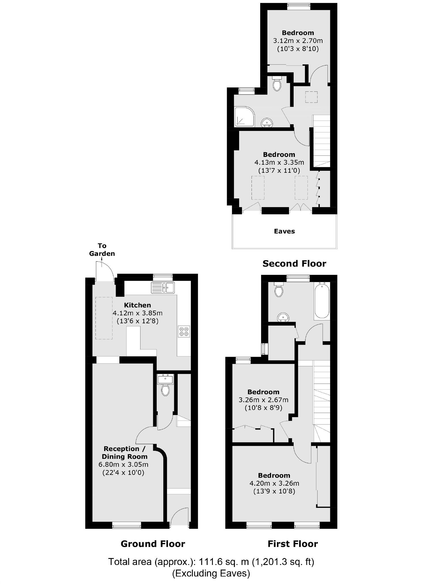
A stunning and immaculately presented four-bedroom terraced house situated in the sought after borough of Wandsworth. This beautiful home has been meticulously looked after by the current owners, and refurbished to the highest of standards. This property further benefits from being highly efficie...
Property Oracle says ..
Therefore, we give this property 7 / 10. *Disclaimer: This is our option and does constitute a recommendation or financial advice. Do your own research. *
- Price
- 7
- Condition
- 9
- Location
- 8
- Land
- 7
- Bedrooms
- 4
- Bathrooms
- 2
- Sqft (est)
- 1,201.25
The heatmap indicates the level of crime in the area. The color of the heatmap indicates the crime severity and recency.
Metrics Year-on-Year
- Average area value
- 579,986.00 £Decreased by 3.59 %
- Est sale value
- 678,706.25 £Decreased by 11.58 %
- Average area rental value
- 2,411.00 £/moDecreased by 0.29 %
- Est letting value
- 2,402.50 £/moUnchanged by 0.00 %
- Est rental Yield
- 4.99 %Increased by 3.53 %
- Crime Rate
- 10.00 %Unchanged by 0.00 %
from 601,584.00 £
from 767,598.75 £
from 2,418.00 £/mo
from 2,402.50 £/mo
from 4.82 %
from 10.00 %
Agent Activity
Jacksons Estate Agents created the listing.
Nearby Schools
| Name | Type | Ofsted | Distance |
|---|---|---|---|
| Goldfinch Primary School | Academy Sponsor Led | 0.10 KM | |
| Fayland Children'S Centre | Children's Centre | 0.59 KM | |
| Granton Primary School | Community School | Outstanding | 0.75 KM |
| Penwortham Primary School | Community School | Good | 0.75 KM |
| St Leonard'S Church Of England Primary School | Academy Converter | 0.84 KM |
Images
Nearby Streets
| Name | Average Price | Average Sqft | Distance |
|---|---|---|---|
| Meadfoot Road | £ 550,000 | 0 | 0.00 KM |
| Tooting Bec Road | £ 371,429 | 0 | 0.00 KM |
| Barrow Road | £ 0 | 0 | 0.00 KM |
| Tooting Bec Road | £ 400,000 | 0 | 0.00 KM |
| Bennetts Close | £ 0 | 0 | 0.00 KM |
Nearby Transport
| Name | NLC | TLC | Distance |
|---|---|---|---|
| Streatham Common | 5384 | SRC | 0.49 KM |
| Streatham | 5383 | STE | 1.08 KM |
| Mitcham Eastfields | 5069 | MTC | 2.19 KM |
| Norbury | 5428 | NRB | 2.25 KM |
| Tooting | 5389 | TOO | 2.37 KM |
Nearby Listings
| Address | Price | Type | Score | Distance |
|---|---|---|---|---|
| Leverson Street, Streatham | £ 750,000 | BUY | 7 / 10 | 0.00 KM |
| Besley Street, Streatham | £ 725,000 | BUY | 8 / 10 | 0.07 KM |
| Leverson Street, London, SW16 | £ 775,000 | BUY | Unknown | 0.07 KM |
| Eardley Road, Streatham, London, SW16 | £ 325,000 | BUY | 5 / 10 | 0.09 KM |
| Eardley Road, London | £ 400,000 | BUY | 7 / 10 | 0.10 KM |
Nearby Properties
| Address | Price | Distance |
|---|---|---|
| 21 Leverson Street | £ 675,000 | 0.03 KM |
| 37 Leverson Street | £ 219,950 | 0.03 KM |
| 1a Leverson Street | £ 316,000 | 0.03 KM |
| 13 Leverson Street | £ 150,000 | 0.03 KM |
| 7 Leverson Street | £ 715,000 | 0.03 KM |