Hambrook, West Sussex, PO18 8FT
By Dandara Southern
£ 450,000
Reviews
3 out of 5 stars
Dandara Southern says ..
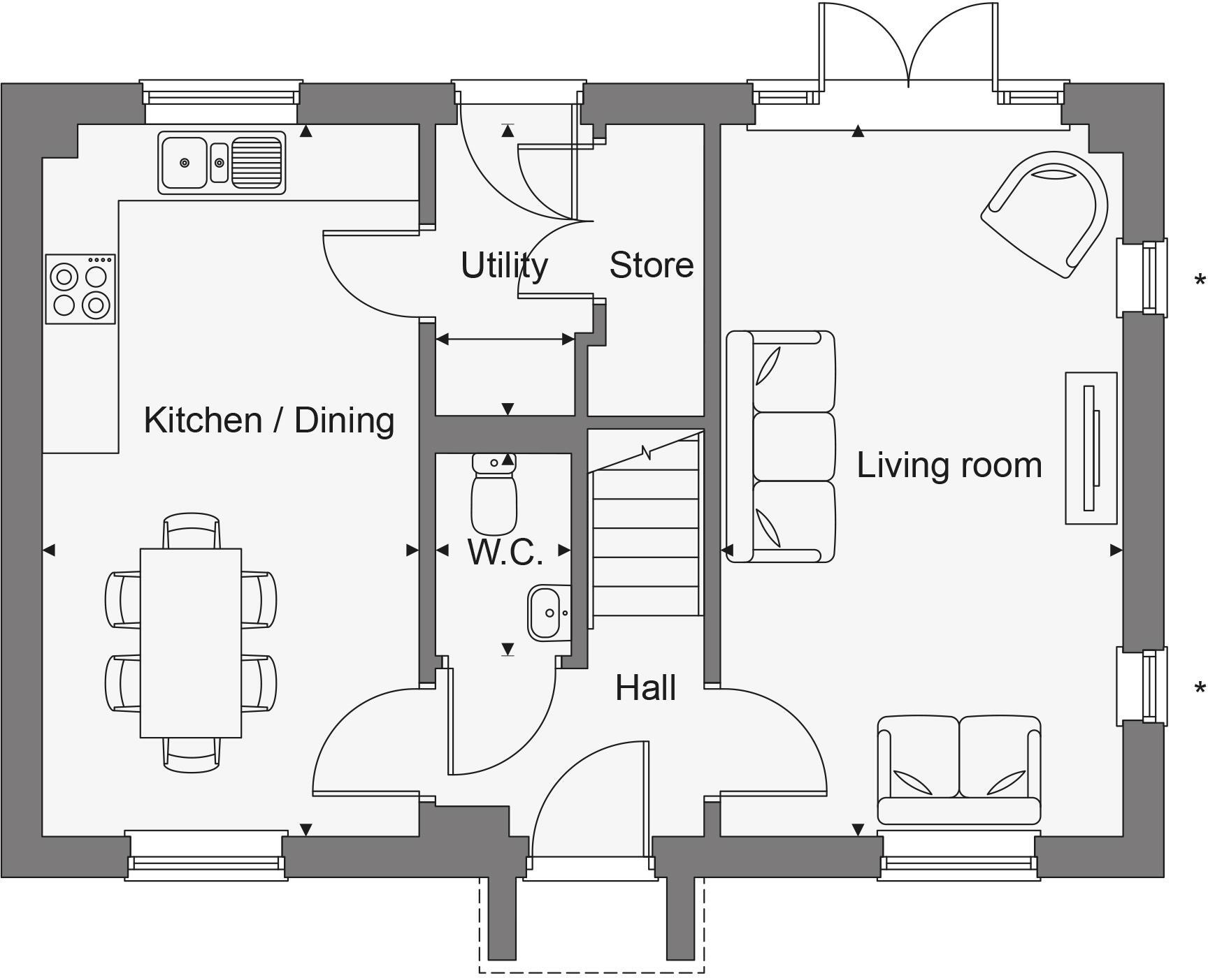
Stunning three-bedroom, two bathroom double fronted home with parking for two cars.
Property Oracle says ..
Therefore, we give this property 6 / 10. *Disclaimer: This is our option and does constitute a recommendation or financial advice. Do your own research. *
- Price
- 4
- Condition
- 9
- Location
- 8
- Land
- 6
- Bedrooms
- 3
- Bathrooms
- 0
- Sqft (est)
- 410.00
The heatmap indicates the level of crime in the area. The color of the heatmap indicates the crime severity and recency.
Metrics Year-on-Year
- Average area value
- 780,625.00 £Increased by 37.31 %
- Est sale value
- 231,650.00 £Increased by 9.92 %
- Average area rental value
- 1,888.00 £/moDecreased by 8.84 %
- Est letting value
- 410.00 £/moUnchanged by 0.00 %
- Est rental Yield
- 2.90 %Decreased by 33.64 %
- Crime Rate
- 35.00 %Unchanged by 0.00 %
from 568,531.00 £
from 210,740.00 £
from 2,071.00 £/mo
from 410.00 £/mo
from 4.37 %
from 35.00 %
Agent Activity
Dandara Southern created the listing.
Nearby Schools
| Name | Type | Ofsted | Distance |
|---|---|---|---|
| Chidham Parochial Primary School | Voluntary Controlled School | Good | 1.28 KM |
| Southbourne Infant School | Community School | Good | 2.61 KM |
| Southbourne Junior School | Community School | Good | 2.61 KM |
| Funtington Primary School | Community School | Good | 3.54 KM |
| Southbourne Children And Family Centre | Children's Centre | 3.61 KM |
Images
Nearby Streets
| Name | Average Price | Average Sqft | Distance |
|---|---|---|---|
| Midway Cottages | £ 765,000 | 0 | 0.00 KM |
| Greenacre Gardens | £ 0 | 0 | 0.00 KM |
| Tawny Owl Way | £ 0 | 0 | 0.00 KM |
| Heron Lane | £ 0 | 0 | 0.00 KM |
| Egret Court End | £ 0 | 0 | 0.00 KM |
Nearby Transport
| Name | NLC | TLC | Distance |
|---|---|---|---|
| Nutbourne | 5262 | NUT | 0.26 KM |
| Southbourne | 5263 | SOB | 2.90 KM |
| Bosham | 5254 | BOH | 3.86 KM |
| Emsworth | 5257 | EMS | 6.26 KM |
| Fishbourne (Sussex) | 5261 | FSB | 7.46 KM |
Nearby Listings
| Address | Price | Type | Score | Distance |
|---|---|---|---|---|
| Hambrook, West Sussex, PO18 8FT | £ 475,000 | BUY | 7 / 10 | 0.00 KM |
| Hambrook, West Sussex, PO18 8FT | £ 450,000 | BUY | 7 / 10 | 0.00 KM |
| Hambrook, West Sussex, PO18 8FT | £ 585,000 | BUY | 6 / 10 | 0.00 KM |
| Hambrook, West Sussex, PO18 8FT | £ 460,000 | BUY | 6 / 10 | 0.00 KM |
| Hambrook, West Sussex, PO18 8FT | £ 510,000 | BUY | 7 / 10 | 0.00 KM |
Nearby Properties
| Address | Price | Distance |
|---|---|---|
| Thorn House | £ 177,500 | 0.10 KM |
| Laureldene | £ 418,750 | 0.10 KM |
| Coxs Farmhouse | £ 700,000 | 0.10 KM |
| Firs Platt | £ 305,000 | 0.10 KM |
| Glenthorne | £ 375,000 | 0.10 KM |