Mcintosh Road, Marshalls Park, Romford
By haart
£ 525,000
Reviews
3 out of 5 stars
haart says ..
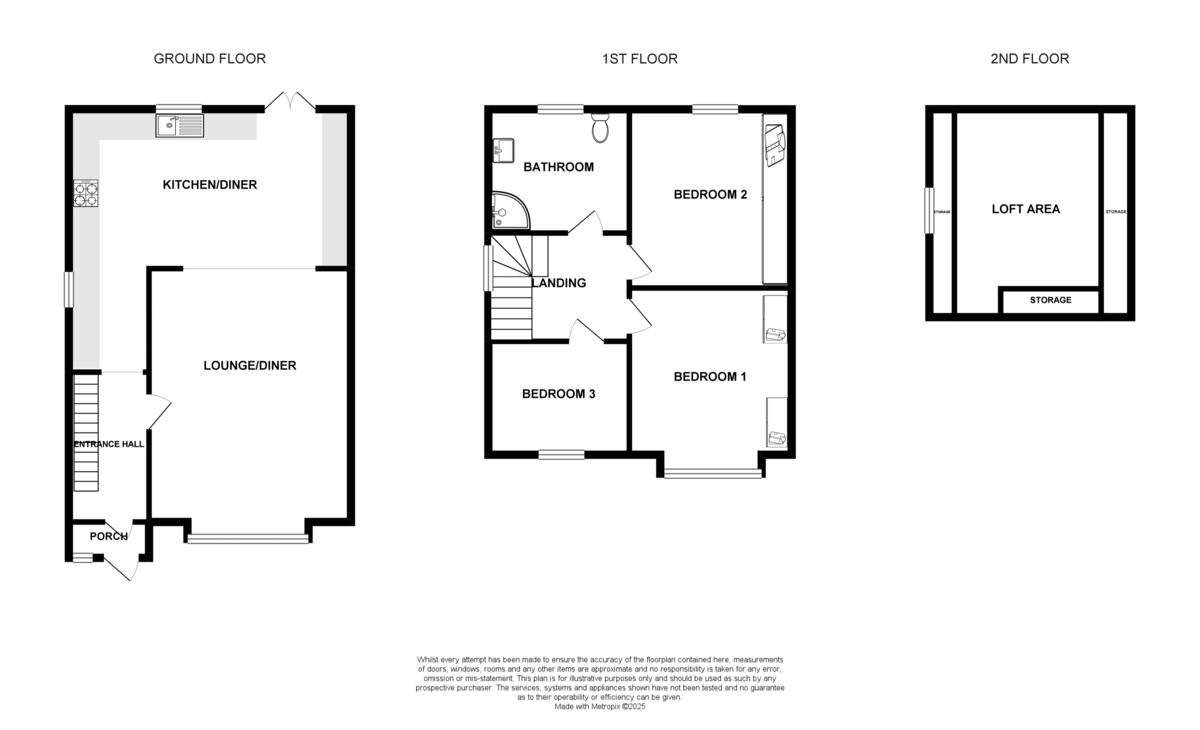
Beautifully presented family semi detached home in the sought after Marshalls Park area. Extended with spacious living and dining areas, modern kitchen, landscaped garden, loft space and off street parking. Close to schools, green spaces, and Romford Station
Property Oracle says ..
This is a three-bedroom semi-detached house in Marshalls Park, Romford. The property is in good condition and has a modern interior. It benefits from a well-maintained garden with a patio area and a shed. The property is located close to local schools and amenities, with good transport links nearby. The listing price is competitive for the area.
Therefore, we give this property 7 / 10. *Disclaimer: This is our option and does constitute a recommendation or financial advice. Do your own research. *
- Price
- 7
- Condition
- 8
- Location
- 7
- Land
- 7
- Bedrooms
- 3
- Bathrooms
- 1
- Sqft (est)
- 930.00
The heatmap indicates the level of crime in the area. The color of the heatmap indicates the crime severity and recency.
Metrics Year-on-Year
- Average area value
- 744,333.00 £Increased by 18.53 %
- Est sale value
- 531,960.00 £Increased by 33.64 %
- Average area rental value
- 1,770.00 £/moDecreased by 1.28 %
- Est letting value
- 930.00 £/moUnchanged by 0.00 %
- Est rental Yield
- 2.85 %Decreased by 16.91 %
- Crime Rate
- 1.00 %Unchanged by 0.00 %
Agent Activity
haart created the listing.
Nearby Schools
| Name | Type | Ofsted | Distance |
|---|---|---|---|
| St Peter'S Catholic Primary School | Voluntary Aided School | Outstanding | 0.30 KM |
| St Edward'S Church Of England Voluntary Aided Primary School | Voluntary Aided School | Good | 0.40 KM |
| Parklands Primary School | Community School | Good | 0.63 KM |
| Marshalls Park Academy | Academy Converter | Good | 0.67 KM |
| Rise Park Infant School | Academy Converter | Good | 1.02 KM |
Images
Nearby Streets
| Name | Average Price | Average Sqft | Distance |
|---|---|---|---|
| Park Drive | £ 748,333 | 0 | 0.00 KM |
| A118 | £ 0 | 0 | 0.00 KM |
| Burnham Road | £ 0 | 0 | 0.00 KM |
| The Mews | £ 275,000 | 0 | 0.00 KM |
| Ducking Stool Court | £ 240,000 | 0 | 0.00 KM |
Nearby Transport
| Name | NLC | TLC | Distance |
|---|---|---|---|
| Romford | 6886 | RMF | 1.48 KM |
| Gidea Park | 6877 | GDP | 3.06 KM |
| Emerson Park | 7473 | EMP | 5.02 KM |
| Chadwell Heath | 6874 | CTH | 5.92 KM |
| Harold Wood | 6879 | HRO | 6.03 KM |
Nearby Listings
| Address | Price | Type | Score | Distance |
|---|---|---|---|---|
| Mcintosh Road, Marshalls Park, Romford | £ 525,000 | BUY | 7 / 10 | 0.00 KM |
| Dorset Avenue, Romford, RM1 | £ 500,000 | BUY | Unknown | 0.06 KM |
| Dorset Avenue, Marshalls Park, Romford | £ 740,000 | BUY | 7 / 10 | 0.06 KM |
| Dorset Avenue, Romford, London, RM1 | £ 795,000 | BUY | 7 / 10 | 0.10 KM |
| Dorset Avenue, Romford, RM1 | £ 550,000 | BUY | 7 / 10 | 0.11 KM |
Nearby Properties
| Address | Price | Distance |
|---|---|---|
| 17a Mcintosh Road | £ 152,000 | 0.02 KM |
| 21b Mcintosh Road | £ 41,000 | 0.02 KM |
| 15 Mcintosh Road | £ 218,000 | 0.02 KM |
| 74 Dorset Avenue | £ 340,000 | 0.10 KM |
| 107 Dorset Avenue | £ 330,000 | 0.10 KM |