Wilman & Lodge says ..
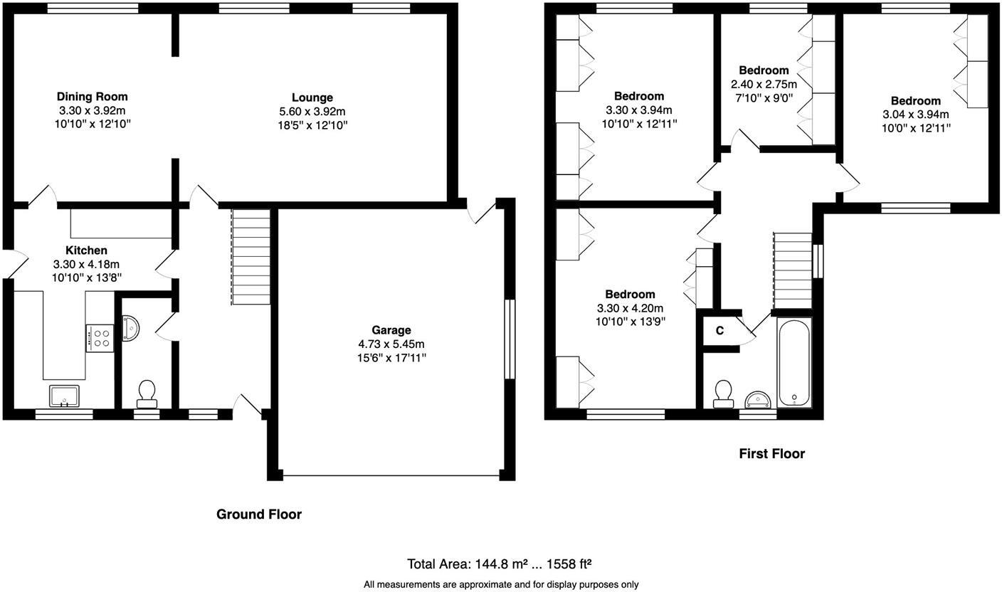
Tucked away in a PEACEFUL, ELEVATED CUL-DE-SAC, surrounded by an array of high-quality, individually designed detached homes, this SUPERB, CHAIN FREE, FOUR-BEDROOM DETACHED HOUSE enjoys a TRULY IDYLLIC SETTING. Nestled within LOVELY GARDENS, the property benefits from a CHARMING STREAM THAT MEAND...
Property Oracle says ..
Therefore, we give this property 6 / 10. *Disclaimer: This is our option and does constitute a recommendation or financial advice. Do your own research. *
- Price
- 7
- Condition
- 6
- Location
- 7
- Land
- 7
- Bedrooms
- 4
- Bathrooms
- 1
The heatmap indicates the level of crime in the area. The color of the heatmap indicates the crime severity and recency.
Metrics Year-on-Year
- Average area value
- 285,000.00 £Decreased by 42.52 %
- Average area rental value
- 2,000.00 £/moIncreased by 135.85 %
- Est rental Yield
- 8.42 %Increased by 310.73 %
- Crime Rate
- 15.00 %Unchanged by 0.00 %
from 495,806.00 £
from 848.00 £/mo
from 2.05 %
from 15.00 %
Agent Activity
Wilman & Lodge marked this listing as sold.
Wilman & Lodge created the listing.
Nearby Schools
| Name | Type | Ofsted | Distance |
|---|---|---|---|
| Kildwick Church Of England Voluntary Controlled Primary School | Voluntary Controlled School | Outstanding | 0.40 KM |
| South Craven School | Academy Converter | Outstanding | 1.39 KM |
| South Craven Children'S Centre | Children's Centre | 1.73 KM | |
| Sutton In Craven Church Of England Voluntary Controlled Primary School | Voluntary Controlled School | Good | 1.92 KM |
| Glusburn Community Primary School | Community School | Requires improvement | 2.00 KM |
Images
Nearby Streets
| Name | Average Price | Average Sqft | Distance |
|---|---|---|---|
| Mary Street | £ 0 | 0 | 0.00 KM |
| Hanover Street | £ 0 | 0 | 0.00 KM |
| Back Mary Street | £ 185,000 | 0 | 0.00 KM |
| Newlands Drive | £ 0 | 0 | 0.00 KM |
| Crag Lane | £ 750,000 | 0 | 0.00 KM |
Nearby Transport
| Name | NLC | TLC | Distance |
|---|---|---|---|
| Cononley | 8470 | CEY | 3.03 KM |
| Steeton And Silsden | 8469 | SON | 4.67 KM |
| Skipton | 2728 | SKI | 6.89 KM |
Nearby Listings
| Address | Price | Type | Score | Distance |
|---|---|---|---|---|
| The Crofts, Farnhill | £ 399,950 | BUY | 6 / 10 | 0.00 KM |
| The Crofts, Farnhill, BD20 | £ 500,000 | BUY | 7 / 10 | 0.05 KM |
| Starkey Lane, Farnhill, BD20 | £ 350,000 | BUY | 7 / 10 | 0.08 KM |
| Hillcrest, Starkey Lane, Farnhill BD20 9AN | £ 599,950 | BUY | 7 / 10 | 0.12 KM |
| Kildwick Hall Mews, Kildwick, Keighley, North Yorkshire, BD20 | £ 735,000 | BUY | Unknown | 0.15 KM |
Nearby Properties
| Address | Price | Distance |
|---|---|---|
| 4a The Crofts | £ 335,000 | 0.03 KM |
| 6 The Crofts | £ 315,000 | 0.03 KM |
| 1 The Crofts | £ 281,000 | 0.03 KM |
| 3 The Crofts | £ 245,000 | 0.03 KM |
| 66 Starkey Lane | £ 425,000 | 0.07 KM |