Stirling Road, Clapham, SW9
By Chestertons Estate Agents
£ 1,500,000
Reviews
3 out of 5 stars
Chestertons Estate Agents says ..
Chestertons has the pleasure of introducing to the market an newly renovated and beautifully presented Victorian terraced family home, situated on a prime residential street moments from Clapham North Station and the Green spaces of Clapham Common.
Property Oracle says ..
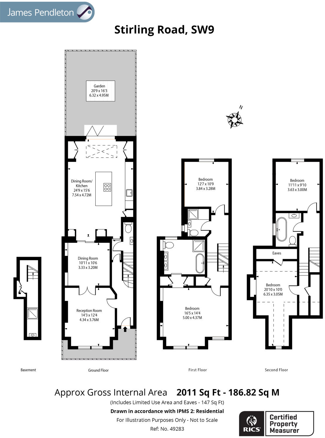
This four-bedroom, four-bathroom terraced house in Clapham, SW9 is presented in immaculate condition. The property boasts a stylish modern interior, a recently renovated or updated kitchen and bathrooms and features that are highly desirable to buyers. The inclusion of a well-maintained, landscaped garden is a significant added value, particularly given the premium placed on outdoor space in London properties. The location in Clapham is highly advantageous given its proximity to Clapham North Station and various schools, indicating that convenience and family-friendly attributes are key features of the property. The listing price aligns with other properties listed for sale on Stirling Road and appears to be within a reasonable range for the area given its size and amenities. A lack of precise square footage for comparative properties limits the ability to provide a more definitive assessment, but the visible quality and location suggest a competitive offering within the London market.
Therefore, we give this property 7 / 10. *Disclaimer: This is our option and does constitute a recommendation or financial advice. Do your own research. *
- Price
- 7
- Condition
- 9
- Location
- 8
- Land
- 6
- Bedrooms
- 4
- Bathrooms
- 4
- Sqft (est)
- 2,010.91
The heatmap indicates the level of crime in the area. The color of the heatmap indicates the crime severity and recency.
Metrics Year-on-Year
- Average area value
- 288,590.00 £Decreased by 37.85 %
- Est sale value
- 645,502.11 £Decreased by 32.70 %
- Average area rental value
- 2,219.00 £/moDecreased by 2.72 %
- Est letting value
- 4,021.82 £/moUnchanged by 0.00 %
- Est rental Yield
- 9.23 %Increased by 56.71 %
- Crime Rate
- 4.00 %Unchanged by 0.00 %
Agent Activity
Chestertons Estate Agents created the listing.
Nearby Schools
| Name | Type | Ofsted | Distance |
|---|---|---|---|
| St Andrew'S Church Of England Primary School | Voluntary Aided School | Good | 0.41 KM |
| Larkhall Primary Campus | Community School | Good | 0.52 KM |
| Lark Hall Primary School And Children'S Centre | Children's Centre | 0.54 KM | |
| Allen Edwards Primary School | Community School | Good | 0.57 KM |
| Lansdowne School | Community Special School | Good | 0.72 KM |
Images
Nearby Streets
| Name | Average Price | Average Sqft | Distance |
|---|---|---|---|
| Stane Grove | £ 0 | 0 | 0.00 KM |
| Landor Road | £ 625,000 | 0 | 0.00 KM |
| Clapham Road | £ 591,667 | 0 | 0.00 KM |
| Levehurst Way | £ 0 | 0 | 0.00 KM |
| Jeffrey's Road | £ 500,000 | 0 | 0.00 KM |
Nearby Transport
| Name | NLC | TLC | Distance |
|---|---|---|---|
| Clapham High Street | 5301 | CLP | 0.77 KM |
| Brixton | 5081 | BRX | 1.40 KM |
| Wandsworth Road | 5372 | WWR | 1.41 KM |
| Vauxhall | 5597 | VXH | 2.06 KM |
| Queenstown Road (Battersea) | 5596 | QRB | 2.42 KM |
Nearby Listings
| Address | Price | Type | Score | Distance |
|---|---|---|---|---|
| Stirling Road, Clapham, SW9 | £ 1,500,000 | BUY | 7 / 10 | 0.00 KM |
| Stirling Road, Stockwell | £ 1,450,000 | BUY | 8 / 10 | 0.03 KM |
| Rusper Court, Clapham North, London, SW9 | £ 375,000 | BUY | 6 / 10 | 0.04 KM |
| Mayflower Road, Clapham | £ 695,000 | BUY | Unknown | 0.04 KM |
| Stirling Road, SW9 | £ 499,950 | BUY | 6 / 10 | 0.05 KM |
Nearby Properties
| Address | Price | Distance |
|---|---|---|
| 37 Stirling Road | £ 1,150,000 | 0.01 KM |
| 35 Stirling Road | £ 635,000 | 0.01 KM |
| 7 Stirling Road | £ 415,000 | 0.01 KM |
| 13 Stirling Road | £ 840,000 | 0.01 KM |
| 25 Stirling Road | £ 1,106,000 | 0.01 KM |