Ferndale Crescent, Macclesfield
By Gascoigne Halman
£ 325,000
Reviews
3 out of 5 stars
Gascoigne Halman says ..
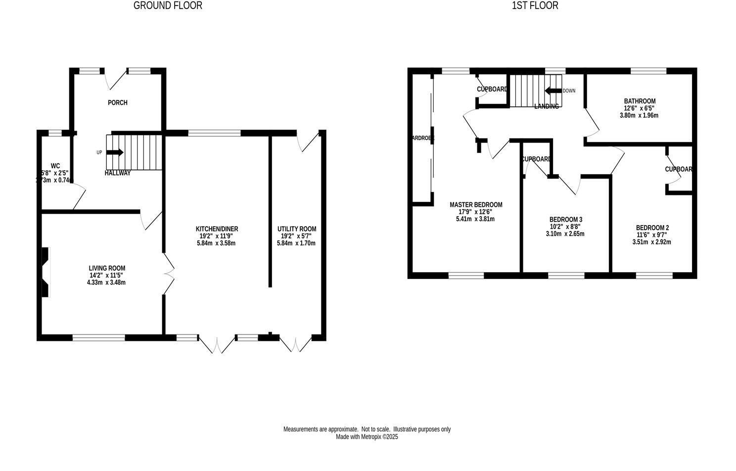
An absolutely stunning three double bedroom (former four bedroom and could be converted back) family home with an automated gated entrance and a great size landscaped south facing garden. Immaculate throughout, great size dining kitchen with a large utility room. Viewing recommended.
Property Oracle says ..
This four-bedroom terraced house in Macclesfield is listed at £325,000. The property has been recently modernised and is presented in excellent condition. It benefits from a good-sized garden and is conveniently located near schools and transport links. While the average price per square foot in the area is £311, this property is slightly above average in size (1,124.25 sqft vs. 832 sqft average), and the list price reflects this. Nearby comparable properties support this pricing, although some are slightly lower. The location is desirable due to proximity to schools and transport.
Therefore, we give this property 7 / 10. *Disclaimer: This is our option and does constitute a recommendation or financial advice. Do your own research. *
- Price
- 7
- Condition
- 9
- Location
- 8
- Land
- 7
- Bedrooms
- 4
- Bathrooms
- 1
- Sqft (est)
- 1,124.25
The heatmap indicates the level of crime in the area. The color of the heatmap indicates the crime severity and recency.
Metrics Year-on-Year
- Average area value
- 246,667.00 £Increased by 6.08 %
- Est sale value
- 323,784.00 £Increased by 10.77 %
- Average area rental value
- 1,000.00 £/moDecreased by 7.41 %
- Est letting value
- 1,124.25 £/moUnchanged by 0.00 %
- Est rental Yield
- 4.86 %Decreased by 12.75 %
- Crime Rate
- 11.00 %Unchanged by 0.00 %
Agent Activity
Gascoigne Halman created the listing.
Nearby Schools
| Name | Type | Ofsted | Distance |
|---|---|---|---|
| Broken Cross Primary Academy And Nursery | Academy Sponsor Led | Good | 0.26 KM |
| Broken Cross Children'S Centre | Children's Centre | 0.33 KM | |
| Eden School | Other Independent Special School | Good | 1.23 KM |
| St John The Evangelist Cofe Primary School Macclesfield | Voluntary Aided School | Good | 1.29 KM |
| St Alban'S Catholic Primary School, A Voluntary Academy | Academy Converter | 1.30 KM |
Images
Nearby Streets
| Name | Average Price | Average Sqft | Distance |
|---|---|---|---|
| Gilchrist Avenue | £ 0 | 0 | 0.00 KM |
| Weston Square | £ 220,000 | 0 | 0.00 KM |
| Princes Way | £ 260,000 | 0 | 0.00 KM |
| Newlands Road | £ 0 | 0 | 0.00 KM |
| Ivy Meade Road | £ 229,950 | 0 | 0.00 KM |
Nearby Transport
| Name | NLC | TLC | Distance |
|---|---|---|---|
| Macclesfield | 2871 | MAC | 4.37 KM |
| Prestbury | 2875 | PRB | 4.68 KM |
| Adlington (Cheshire) | 2939 | ADC | 7.87 KM |
Nearby Listings
| Address | Price | Type | Score | Distance |
|---|---|---|---|---|
| Ferndale Crescent, Macclesfield | £ 325,000 | BUY | 7 / 10 | 0.00 KM |
| Tennyson Close, Macclesfield, SK11 8UJ | £ 350,000 | BUY | Unknown | 0.03 KM |
| Gawsworth Road, Macclesfield | £ 320,000 | BUY | 6 / 10 | 0.08 KM |
| Gawsworth Road, Macclesfield | £ 425,000 | BUY | 6 / 10 | 0.13 KM |
| Earlsway, Macclesfield, SK11 8SX | £ 205,000 | BUY | 6 / 10 | 0.14 KM |
Nearby Properties
| Address | Price | Distance |
|---|---|---|
| 9 Ferndale Crescent | £ 128,500 | 0.07 KM |
| 3 Ferndale Crescent | £ 182,000 | 0.07 KM |
| 15 Ferndale Crescent | £ 199,000 | 0.07 KM |
| 5 Ferndale Crescent | £ 185,000 | 0.07 KM |
| 29 Ferndale Crescent | £ 176,000 | 0.07 KM |