Keatons says ..
A truly enchanting Victorian home, sensitively restored to an exquisite standard with exceptional attention to detail. Offering grand Victorian features including sash windows, Victorian fireplaces, cast-iron radiators, wooden flooring, alongside striking modern designs and bathed in natural ligh...
Property Oracle says ..
Therefore, we give this property 7 / 10. *Disclaimer: This is our option and does constitute a recommendation or financial advice. Do your own research. *
- Price
- 7
- Condition
- 8
- Location
- 8
- Land
- 7
- Bedrooms
- 3
- Bathrooms
- 1
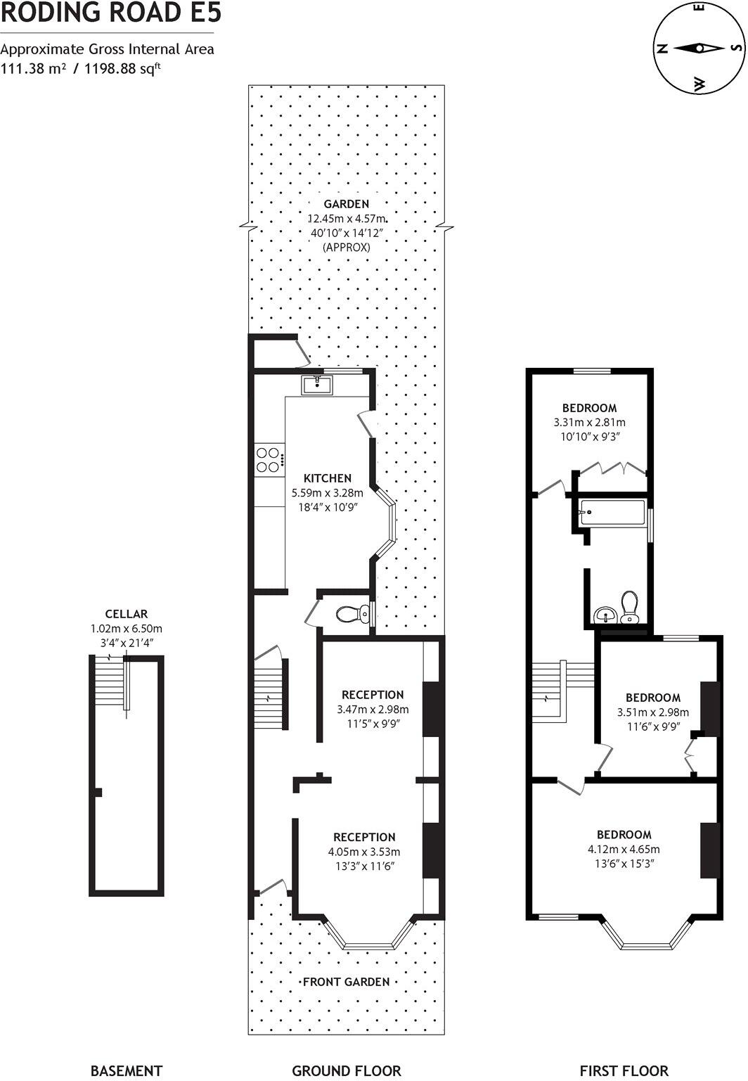
- Sqft (est)
- 1,565.07
The heatmap indicates the level of crime in the area. The color of the heatmap indicates the crime severity and recency.
Metrics Year-on-Year
- Average area value
- 786,667.00 £Decreased by 0.96 %
- Est sale value
- 1,180,062.78 £Decreased by 11.29 %
- Average area rental value
- 2,720.00 £/moDecreased by 8.48 %
- Est letting value
- 3,130.14 £/moDecreased by 33.33 %
- Est rental Yield
- 4.15 %Decreased by 7.57 %
- Crime Rate
- 11.00 %Unchanged by 0.00 %
from 794,286.00 £
from 1,330,309.50 £
from 2,972.00 £/mo
from 4,695.21 £/mo
from 4.49 %
from 11.00 %
Agent Activity
Keatons created the listing.
Nearby Schools
| Name | Type | Ofsted | Distance |
|---|---|---|---|
| Daubeney Children'S Centre | Children's Centre | 0.27 KM | |
| Daubeney Primary School | Community School | Requires improvement | 0.30 KM |
| Ickburgh School | Community Special School | Good | 0.32 KM |
| St. Dominic'S Catholic Primary School | Voluntary Aided School | Good | 0.53 KM |
| Kingsmead Primary School | Community School | Outstanding | 0.56 KM |
Images
Nearby Streets
| Name | Average Price | Average Sqft | Distance |
|---|---|---|---|
| Crozier Terrace | £ 0 | 0 | 0.00 KM |
| Chowdhury Walk | £ 625,000 | 0 | 0.00 KM |
| Thyme Walk | £ 0 | 0 | 0.00 KM |
| Fisher Close | £ 0 | 0 | 0.00 KM |
| Banister House | £ 415,000 | 0 | 0.00 KM |
Nearby Transport
| Name | NLC | TLC | Distance |
|---|---|---|---|
| Homerton | 6979 | HMN | 0.52 KM |
| Hackney Wick | 6978 | HKW | 1.73 KM |
| Lea Bridge | 6927 | LEB | 1.84 KM |
| Hackney Central | 6977 | HKC | 1.92 KM |
| London Fields | 6966 | LOF | 2.31 KM |
Nearby Listings
| Address | Price | Type | Score | Distance |
|---|---|---|---|---|
| Roding Road, Homerton, London, E5 | £ 1,150,000 | BUY | 7 / 10 | 0.00 KM |
| Roding Road, E5 0DN | £ 950,000 | BUY | Unknown | 0.06 KM |
| Roding Road, Homerton, London, E5 | £ 485,000 | BUY | 5 / 10 | 0.07 KM |
| Lyneham Walk, London, E5 | £ 550,000 | BUY | 5 / 10 | 0.09 KM |
| Lyneham Walk, London, E5 | £ 500,000 | BUY | 6 / 10 | 0.09 KM |
Nearby Properties
| Address | Price | Distance |
|---|---|---|
| 36 Roding Road | £ 1,135,000 | 0.01 KM |
| 64 Roding Road | £ 89,000 | 0.01 KM |
| 44 Roding Road | £ 1,025,000 | 0.01 KM |
| 20 Roding Road | £ 235,000 | 0.01 KM |
| 22 Roding Road | £ 1,010,000 | 0.01 KM |