Mitchell Street, Long Eaton
Good Move logo

Mitchell Street, Long Eaton

By Good Move

£ 140,000

Reviews

2 out of 5 stars

Good Move says ..

Goodmove are delighted to present this two bedroom semi detached house for a quick sale. With a range of excellent local amenities, Long Eaton Town Centre has to offer within walking distance, this property is ideally placed. The house is also in a great location for local Primary School...

Property Oracle says ..

This two-bedroom semi-detached house located on Mitchell Street in Long Eaton, Derbyshire, presents a mixed bag of opportunities and challenges for potential buyers. Its location in Long Eaton Central offers convenient access to local amenities, including schools and a railway station, making it appealing for families and commuters alike. The proximity to primary schools, specifically Brooklands Primary School and St Laurence Cofe Primary School, is a significant advantage.

However, the property’s condition is a major factor to consider. The images clearly show that the property requires extensive renovation. The dated interior finishes, damaged wallpaper, and overgrown garden all point to a significant investment being needed before the property is habitable. The dated kitchen and bathrooms will likely require complete overhauls.

The available land consists of a small rear garden that is currently overgrown and neglected. Whilst offering potential for improvement, it currently detracts from the property’s overall appeal.

The list price of £140,000 should be assessed in light of the necessary renovations. While seemingly reasonable compared to other properties in the area (based on limited information from nearby sales), prospective buyers must factor in substantial costs associated with the refurbishment. Buyers should obtain detailed surveys and cost estimates for renovations before making an offer.

Therefore, we give this property 5 / 10. *Disclaimer: This is our option and does constitute a recommendation or financial advice. Do your own research. *

Price
7
Condition
4
Location
7
Land
3
Bedrooms
2
Bathrooms
1
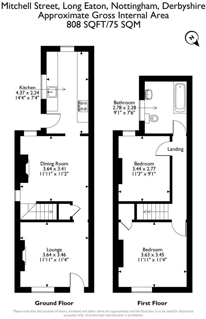
Sqft (est)
807.29

The heatmap indicates the level of crime in the area. The color of the heatmap indicates the crime severity and recency.

Metrics Year-on-Year

Average area value
415,495.00 £
Increased by 26.58 %
from 328,244.00 £
Est sale value
318,072.26 £
Increased by 3.14 %
from 308,384.78 £
Average area rental value
1,128.00 £/mo
Decreased by 9.62 %
from 1,248.00 £/mo
Est letting value
807.29 £/mo
Unchanged by 0.00 %
from 807.29 £/mo
Est rental Yield
3.26 %
Decreased by 28.51 %
from 4.56 %
Crime Rate
10.00 %
Unchanged by 0.00 %
from 10.00 %

Agent Activity

  • Good Move marked this listing as sold.

  • Good Move created the listing.

Nearby Schools

NameTypeOfstedDistance
Brooklands Primary SchoolAcademy Converter0.38 KM
St Laurence Cofe Primary SchoolAcademy ConverterRequires improvement0.42 KM
Long Eaton Children'S Centre (A)Children's Centre1.13 KM
Grange Primary SchoolCommunity SchoolGood1.36 KM
Stanton Vale SchoolAcademy Special Converter1.46 KM

Images

8630365-interior14-800.jpg 8630365-interior09-800.jpg 8630365-interior10-800.jpg 8630365-exterior05-800.jpg 8630365-interior01-800.jpg 8630365-interior04-800.jpg 8630365-interior06-800.jpg 8630365-interior13-800.jpg 8630365-exterior01-800.jpg

Nearby Streets

NameAverage PriceAverage SqftDistance
Saint Vincent Close £ 000.00 KM
Beaconsfield Street £ 000.00 KM
Lacemaker Court £ 000.00 KM
Acton Close £ 150,66700.00 KM
Nottingham Road £ 000.00 KM

Nearby Transport

NameNLCTLCDistance
Long Eaton1829LGE2.13 KM
East Midlands Parkway1901EMD3.48 KM
Attenborough1624ATB4.52 KM
Beeston1625BEE7.56 KM

Nearby Listings

AddressPriceTypeScoreDistance
Mitchell Street, Long Eaton £ 140,000BUY5 / 100.00 KM
Mitchell Street, Long Eaton £ 170,000BUY5 / 100.01 KM
Neale Street, Long Eaton £ 180,000BUYUnknown0.06 KM
Neale Street, Nottingham £ 230,000BUY7 / 100.06 KM
Oakleys Road, Long Eaton, Derbyshire, NG10 1FH £ 280,000BUY7 / 100.11 KM

Nearby Properties

AddressPriceDistance
25 Mitchell Street £ 64,9950.01 KM
14 Mitchell Street £ 135,0000.01 KM
2 Mitchell Street £ 85,0000.01 KM
15 Mitchell Street £ 90,0000.01 KM
17 Mitchell Street £ 124,0000.01 KM