BADGER CLOSE, HUMBERSTON, GRIMSBY
By Martin Maslin
£ 410,000
Reviews
2 out of 5 stars
Martin Maslin says ..
** RESERVED **Found in this desirable area of Humberston, a fabulous brand new house set within this select development of just FIVE properties known as Badger Close, lying just off Forest Way. Currently under construction by renowned local builders Adda Design to exacting standards. This is (cont.)
Property Oracle says ..
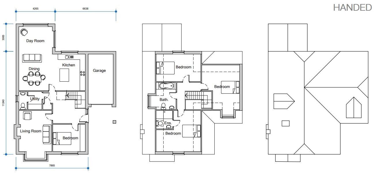
This property is a new-build, four-bedroom detached house located in Humberston, a sought-after area of Grimsby. The location is a significant advantage, with several well-regarded schools within easy reach. However, it is important to note that the property is currently under construction and therefore unfinished. The images show the structure is complete, but significant interior work, including plastering, flooring, kitchen fitting, and final decorating, remains to be done. The site plan indicates the property is part of a small development on Badger Close, just off Forest Way. The house design includes a dormer window adding to the living space and bi-fold doors suggesting a modern and spacious design. The lack of specific plot size information makes it difficult to gauge the amount of garden space available. The list price of £410,000 appears to align with other comparable properties in the area, although the absence of complete interior finishes needs to be factored into potential buyers’ calculations. Overall, while the location is strong, the unfinished condition means a considerable investment in completion is still required before occupancy is possible. Potential buyers should carefully review the construction timeline and associated costs before committing to purchase.
Therefore, we give this property 5 / 10. *Disclaimer: This is our option and does constitute a recommendation or financial advice. Do your own research. *
- Price
- 7
- Condition
- 4
- Location
- 7
- Land
- 2
- Bedrooms
- 4
- Bathrooms
- 2
- Sqft (est)
- 1,881.53
The heatmap indicates the level of crime in the area. The color of the heatmap indicates the crime severity and recency.
Metrics Year-on-Year
- Average area value
- 301,227.00 £Increased by 9.24 %
- Est sale value
- 521,183.81 £Increased by 23.66 %
- Average area rental value
- 1,023.00 £/moDecreased by 6.75 %
- Est letting value
- 0.00 £/mo
- Est rental Yield
- 4.08 %Decreased by 14.47 %
- Crime Rate
- 10.00 %Unchanged by 0.00 %
Agent Activity
Martin Maslin marked this listing as sold.
Martin Maslin created the listing.
Nearby Schools
| Name | Type | Ofsted | Distance |
|---|---|---|---|
| The Humberston Cofe Primary School | Voluntary Controlled School | Good | 0.90 KM |
| Humberston Cloverfields Academy | Academy Converter | Good | 1.79 KM |
| Humberston Park School | Academy Special Converter | Outstanding | 1.81 KM |
| Humberston Outreach | Children's Centre Linked Site | 1.82 KM | |
| Signhills Academy | Academy Converter | 1.97 KM |
Images
Nearby Streets
| Name | Average Price | Average Sqft | Distance |
|---|---|---|---|
| Andrew Road | £ 0 | 0 | 0.00 KM |
| Hilton Court | £ 0 | 0 | 0.00 KM |
| The Laurels | £ 0 | 0 | 0.00 KM |
| Wendover Lane | £ 0 | 0 | 0.00 KM |
| Carlyle Close | £ 0 | 0 | 0.00 KM |
Nearby Transport
| Name | NLC | TLC | Distance |
|---|---|---|---|
| Cleethorpes | 6274 | CLE | 3.65 KM |
| New Clee | 6289 | NCE | 7.04 KM |
| Grimsby Docks | 6276 | GMD | 8.36 KM |
| Grimsby Town | 6280 | GMB | 8.94 KM |
Nearby Listings
| Address | Price | Type | Score | Distance |
|---|---|---|---|---|
| BADGER CLOSE, HUMBERSTON, GRIMSBY | £ 410,000 | BUY | 5 / 10 | 0.00 KM |
| ), HUMBERSTON, GRIMSBY | £ 410,000 | BUY | 4 / 10 | 0.00 KM |
| FOREST WAY, HUMBERSTON, GRIMSBY | £ 385,000 | BUY | 6 / 10 | 0.00 KM |
| Forest Way, Humberston, Grimsby | £ 340,000 | BUY | 7 / 10 | 0.08 KM |
| Viscount Way, Humberston, DN36 | £ 295,000 | BUY | 7 / 10 | 0.12 KM |
Nearby Properties
| Address | Price | Distance |
|---|---|---|
| 45 Forest Way | £ 206,000 | 0.00 KM |
| 39 Forest Way | £ 66,000 | 0.00 KM |
| 21b Forest Way | £ 74,000 | 0.00 KM |
| 14 Forest Way | £ 225,000 | 0.00 KM |
| 40 Forest Way | £ 239,000 | 0.00 KM |