Normandy Road, Worthing, BN14 7EA
By Jacobs Steel
£ 385,000
Reviews
3 out of 5 stars
Jacobs Steel says ..
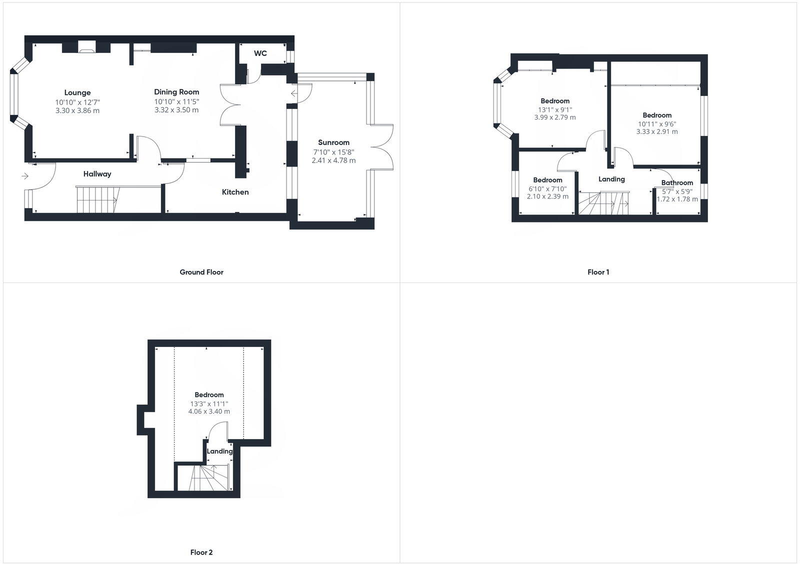
Jacobs Steel are thrilled to present for sale this charming, rear extended and loft converted mid-terraced family home, ideally located on a sought-after residential street in Broadwater, within easy reach of local shops, amenities, and the mainline train station. Set on a generous west-facing...
Property Oracle says ..
This is a terraced property in Gaisford, Worthing, featuring four bedrooms and one bathroom. The property benefits from a garden with a shed and greenhouse. While the location offers good access to schools and transportation, the interior is in need of renovation, which is reflected in the price.
Therefore, we give this property 6 / 10. *Disclaimer: This is our option and does constitute a recommendation or financial advice. Do your own research. *
- Price
- 7
- Condition
- 4
- Location
- 7
- Land
- 7
- Bedrooms
- 4
- Bathrooms
- 1
- Sqft (est)
- 846.15
The heatmap indicates the level of crime in the area. The color of the heatmap indicates the crime severity and recency.
Metrics Year-on-Year
- Average area value
- 375,000.00 £Decreased by 3.05 %
- Est sale value
- 364,690.65 £Increased by 2.13 %
- Average area rental value
- 1,088.00 £/moDecreased by 5.47 %
- Est letting value
- 846.15 £/moUnchanged by 0.00 %
- Est rental Yield
- 3.48 %Decreased by 2.52 %
- Crime Rate
- 3.00 %Unchanged by 0.00 %
Agent Activity
Jacobs Steel created the listing.
Nearby Schools
| Name | Type | Ofsted | Distance |
|---|---|---|---|
| Worthing High School | Academy Converter | Good | 0.36 KM |
| Bohunt School Worthing | Academy Sponsor Led | Good | 0.42 KM |
| Broadwater Cofe Primary School | Voluntary Aided School | Outstanding | 0.58 KM |
| Lancing College Preparatory School At Worthing | Other Independent School | 0.62 KM | |
| Heene Cofe Primary School | Voluntary Aided School | Requires improvement | 0.88 KM |
Images
Nearby Streets
| Name | Average Price | Average Sqft | Distance |
|---|---|---|---|
| Carnegie Close | £ 0 | 0 | 0.00 KM |
| Westbourne Avenue | £ 325,000 | 0 | 0.00 KM |
| Cross Street | £ 0 | 0 | 0.00 KM |
| Cross Street | £ 178,333 | 0 | 0.00 KM |
| St. Wilfred's Road | £ 519,950 | 0 | 0.00 KM |
Nearby Transport
| Name | NLC | TLC | Distance |
|---|---|---|---|
| Worthing | 5279 | WRH | 0.55 KM |
| West Worthing | 5278 | WWO | 1.79 KM |
| East Worthing | 5283 | EWR | 2.51 KM |
| Durrington-On-Sea | 5282 | DUR | 3.80 KM |
| Lancing | 5275 | LAC | 6.04 KM |
Nearby Listings
| Address | Price | Type | Score | Distance |
|---|---|---|---|---|
| Normandy Road, Worthing, BN14 7EA | £ 385,000 | BUY | 6 / 10 | 0.00 KM |
| Normandy Road, Worthing, BN14 | £ 450,000 | BUY | Unknown | 0.01 KM |
| Normandy Road, Worthing, BN14 7EA | £ 399,995 | BUY | Unknown | 0.06 KM |
| Queen Street, Worthing, BN14 | £ 435,000 | BUY | 7 / 10 | 0.10 KM |
| Queen Street, Worthing | £ 425,000 | BUY | 7 / 10 | 0.10 KM |
Nearby Properties
| Address | Price | Distance |
|---|---|---|
| 58 Normandy Road | £ 300,000 | 0.01 KM |
| 52 Normandy Road | £ 330,000 | 0.01 KM |
| 49 Normandy Road | £ 215,000 | 0.01 KM |
| 62 Normandy Road | £ 185,250 | 0.01 KM |
| 48 Normandy Road | £ 280,000 | 0.01 KM |