Carter & Willow says ..
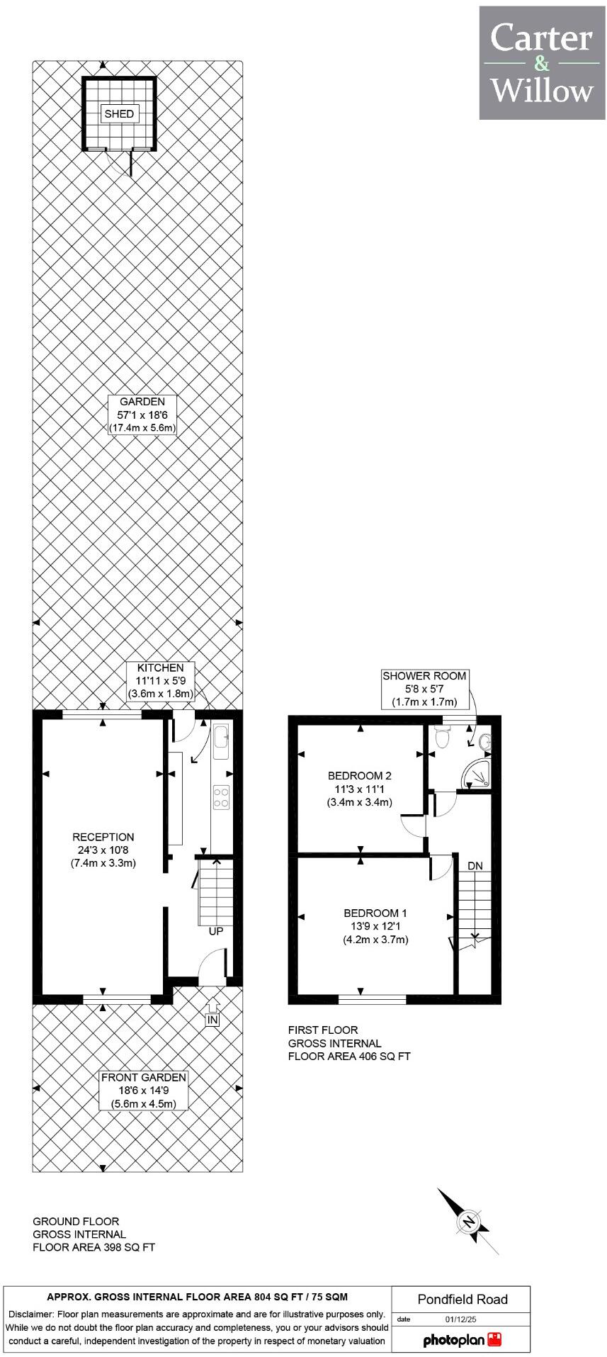
GUIDE PRICE £375,000 - £385,000. Carter and Willow offer for sale this well presented circa 804 sq ft 2 bedroom terraced house which offers an approx 57'1 x 18'6 private rear garden.
Property Oracle says ..
This terraced property on Pondfield Road, Dagenham, is listed with Carter & Willow. It features two bedrooms and one bathroom, with a generous square footage of 2,085 sqft. The house is situated in a location with access to local schools and amenities, although transportation links are not immediately adjacent. The property includes a well-maintained garden with a shed, adding to its appeal. While the house is in reasonable condition, it would benefit from modernisation to enhance its value. The asking price of £375,000 appears to be fair, considering the size and location of the property in relation to the local market.
Therefore, we give this property 6 / 10. *Disclaimer: This is our option and does constitute a recommendation or financial advice. Do your own research. *
- Price
- 7
- Condition
- 6
- Location
- 6
- Land
- 7
- Bedrooms
- 2
- Bathrooms
- 1
- Sqft (est)
- 2,085.00
The heatmap indicates the level of crime in the area. The color of the heatmap indicates the crime severity and recency.
Metrics Year-on-Year
- Average area value
- 357,100.00 £Increased by 23.76 %
- Est sale value
- 677,625.00 £Increased by 32.11 %
- Average area rental value
- 1,263.00 £/moIncreased by 26.30 %
- Est letting value
- 2,085.00 £/mo
- Est rental Yield
- 4.24 %Increased by 1.92 %
- Crime Rate
- 4.00 %Unchanged by 0.00 %
Agent Activity
Carter & Willow created the listing.
Nearby Schools
| Name | Type | Ofsted | Distance |
|---|---|---|---|
| Hunters Hall Primary School | Community School | Good | 0.32 KM |
| Richard Alibon Primary School With Arp For Cognitive And Learning Difficulties : Sen Base | Community School | Good | 0.83 KM |
| Village Infants' School | Community School | Good | 0.92 KM |
| William Ford Cofe Junior School | Voluntary Aided School | Outstanding | 0.92 KM |
| Eastbrook School | Community School | Requires improvement | 0.96 KM |
Images
Nearby Streets
| Name | Average Price | Average Sqft | Distance |
|---|---|---|---|
| St. Mark's Place | £ 0 | 0 | 0.00 KM |
| Reede Way | £ 0 | 0 | 0.00 KM |
| Saint Marks Place | £ 241,250 | 0 | 0.00 KM |
| Berry Close | £ 0 | 0 | 0.00 KM |
| Royal Parade | £ 0 | 0 | 0.00 KM |
Nearby Transport
| Name | NLC | TLC | Distance |
|---|---|---|---|
| Dagenham Dock | 7440 | DDK | 2.49 KM |
| Chadwell Heath | 6874 | CTH | 4.07 KM |
| Romford | 6886 | RMF | 4.34 KM |
| Rainham (Essex) | 7454 | RNM | 4.83 KM |
| Goodmayes | 6878 | GMY | 5.66 KM |
Nearby Listings
| Address | Price | Type | Score | Distance |
|---|---|---|---|---|
| Pondfield Road, Dagenham | £ 375,000 | BUY | 6 / 10 | 0.00 KM |
| Pondfield Road, Dagenham, RM10 | £ 365,000 | BUY | 6 / 10 | 0.03 KM |
| St Mark's Place, Dagenham | £ 250,000 | BUY | 5 / 10 | 0.17 KM |
| Reede Road, Dagenham | £ 410,000 | BUY | Unknown | 0.19 KM |
| St Mark's Place, Dagenham | £ 225,000 | BUY | 6 / 10 | 0.20 KM |
Nearby Properties
| Address | Price | Distance |
|---|---|---|
| 7 Wells Gardens | £ 140,000 | 0.07 KM |
| 6 Wells Gardens | £ 179,000 | 0.07 KM |
| 12 Wells Gardens | £ 191,250 | 0.07 KM |
| 8 Wells Gardens | £ 169,995 | 0.07 KM |
| 3 Wells Gardens | £ 325,000 | 0.08 KM |