Rectory Field Crescent, London, Greater London
By John Payne
£ 315,000
Reviews
3 out of 5 stars
John Payne says ..
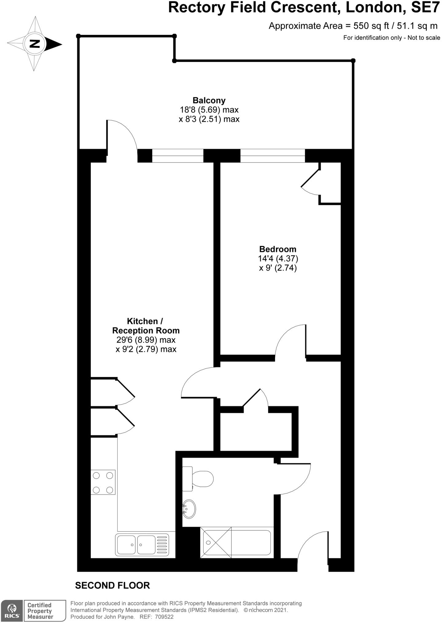
Beautifully presented one bedroom modern apartment, boasting spacious accommodation throughout, allocated parking and a large private balcony, being sold chain free! Internally the property briefly comprises of a large open plan kitchen/reception room, a good sized double bedroom and ...
Property Oracle says ..
The property is a well-presented one-bedroom apartment in a desirable location with good transport links and nearby schools. The list price appears below average for the area, potentially due to the smaller size of the property compared to the average. The modern condition and balcony are positive features. The lack of comparable property data makes a definitive price assessment difficult.
Therefore, we give this property 6 / 10. *Disclaimer: This is our option and does constitute a recommendation or financial advice. Do your own research. *
- Price
- 7
- Condition
- 8
- Location
- 9
- Land
- 3
- Bedrooms
- 1
- Bathrooms
- 1
- Sqft (est)
- 542.60
- Lot (est)
- 550.00
The heatmap indicates the level of crime in the area. The color of the heatmap indicates the crime severity and recency.
Metrics Year-on-Year
- Average area value
- 569,167.00 £Increased by 19.48 %
- Est sale value
- 330,443.40 £Increased by 8.17 %
- Average area rental value
- 1,814.00 £/moIncreased by 1.06 %
- Est letting value
- 542.60 £/moDecreased by 50.00 %
- Est rental Yield
- 3.82 %Decreased by 15.49 %
- Crime Rate
- 3.00 %Unchanged by 0.00 %
Agent Activity
John Payne created the listing.
Nearby Schools
| Name | Type | Ofsted | Distance |
|---|---|---|---|
| Cherry Orchard Primary School | Community School | Good | 0.12 KM |
| Charlton Manor Primary School | Community School | Good | 0.49 KM |
| Leigh Academy Blackheath | Free Schools | 0.52 KM | |
| Kidbrooke Park Primary School | Community School | Good | 0.62 KM |
| Our Lady Of Grace Catholic Primary School | Voluntary Aided School | Outstanding | 0.85 KM |
Images
Nearby Streets
| Name | Average Price | Average Sqft | Distance |
|---|---|---|---|
| Chichester Close | £ 0 | 0 | 0.00 KM |
| Old Dover Road | £ 0 | 0 | 0.00 KM |
| Elm Tree Court | £ 300,000 | 0 | 0.00 KM |
| Harold Gibbons Court | £ 0 | 0 | 0.00 KM |
| Reynolds Place | £ 950,000 | 0 | 0.00 KM |
Nearby Transport
| Name | NLC | TLC | Distance |
|---|---|---|---|
| Charlton | 5144 | CTN | 1.27 KM |
| Kidbrooke | 5108 | KDB | 1.61 KM |
| Westcombe Park | 5151 | WCB | 1.87 KM |
| Blackheath | 5095 | BKH | 2.87 KM |
| Woolwich Dockyard | 5153 | WWD | 2.97 KM |
Nearby Listings
| Address | Price | Type | Score | Distance |
|---|---|---|---|---|
| Rectory Field Crescent, London, Greater London | £ 315,000 | BUY | 6 / 10 | 0.00 KM |
| Marlborough Lane, London, SE7 | £ 750,000 | BUY | 7 / 10 | 0.09 KM |
| Rectory Field Crescent, LONDON | £ 365,000 | BUY | 6 / 10 | 0.10 KM |
| Shooters Hill Road, London, SE3 | £ 500,000 | BUY | Unknown | 0.12 KM |
| Rectory Field Crescent, Charlton, SE7 | £ 375,000 | BUY | Unknown | 0.12 KM |
Nearby Properties
| Address | Price | Distance |
|---|---|---|
| 71 Marlborough Lane | £ 225,000 | 0.06 KM |
| 83 Marlborough Lane | £ 530,000 | 0.06 KM |
| 112 Marlborough Lane | £ 425,000 | 0.09 KM |
| 102 Marlborough Lane | £ 620,000 | 0.09 KM |
| 81 Marlborough Lane | £ 555,000 | 0.09 KM |