Morgan & Davies says ..
Shared Ownership Scheme / Rhanberchnogaeth. A brand new 2 bedroomed, 2 bathroomed detached house with private rear garden and driveway. Centre of Crymych, Pembrokeshire
Property Oracle says ..
Therefore, we give this property 7 / 10. *Disclaimer: This is our option and does constitute a recommendation or financial advice. Do your own research. *
- Price
- 8
- Condition
- 9
- Location
- 7
- Land
- 7
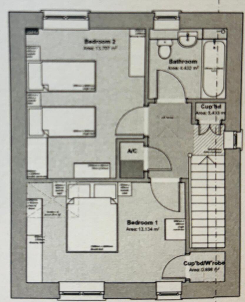
- Bedrooms
- 2
- Bathrooms
- 2
- Sqft (est)
- 350.95
The heatmap indicates the level of crime in the area. The color of the heatmap indicates the crime severity and recency.
Metrics Year-on-Year
- Average area value
- 278,905.00 £Increased by 2.67 %
- Est sale value
- 96,511.25 £Increased by 50.27 %
- Average area rental value
- 800.00 £/moDecreased by 34.53 %
- Est letting value
- 0.00 £/mo
- Est rental Yield
- 3.44 %Decreased by 36.30 %
- Crime Rate
- 66.00 %Unchanged by 0.00 %
from 271,663.00 £
from 64,223.85 £
from 1,222.00 £/mo
from 0.00 £/mo
from 5.40 %
from 66.00 %
Agent Activity
Morgan & Davies created the listing.
Nearby Schools
| Name | Type | Ofsted | Distance |
|---|---|---|---|
| Ysgol Gyfun Ddwyieithog Y Preseli | Welsh Establishment | 0.41 KM | |
| Ysgol Y Frenni | Welsh Establishment | 0.41 KM | |
| Ysgol Clydau | Welsh Establishment | 8.01 KM | |
| Ysgol Gynradd Eglwyswrw | Welsh Establishment | 8.61 KM | |
| Cilgerran V.C.P. School | Welsh Establishment | 9.69 KM |
Images
Nearby Streets
| Name | Average Price | Average Sqft | Distance |
|---|---|---|---|
| Maes y Frenni | £ 0 | 0 | 0.00 KM |
Nearby Listings
| Address | Price | Type | Score | Distance |
|---|---|---|---|---|
| Crymych, SA41 | £ 97,500 | BUY | 7 / 10 | 0.00 KM |
| Heol Fferm Fila, Crymych, SA41 | £ 97,500 | BUY | 7 / 10 | 0.06 KM |
| Heol Fferm Fila, Crymych, SA41 | £ 97,500 | BUY | 7 / 10 | 0.06 KM |
| Heol Fferm Fila, Crymych, SA41 | £ 70,000 | BUY | 7 / 10 | 0.06 KM |
| Maesyfrenni, Crymych | £ 159,950 | BUY | 5 / 10 | 0.35 KM |
Nearby Properties
| Address | Price | Distance |
|---|---|---|
| 54 Maes Yr Yrfa | £ 107,000 | 0.34 KM |
| 56 Maes Yr Yrfa | £ 249,950 | 0.35 KM |
| 24 Maesyfrenni | £ 82,000 | 0.45 KM |
| 12 Maesyfrenni | £ 110,000 | 0.45 KM |
| 23 Llain Drigarn | £ 48,000 | 0.59 KM |