Keys & Lee says ..
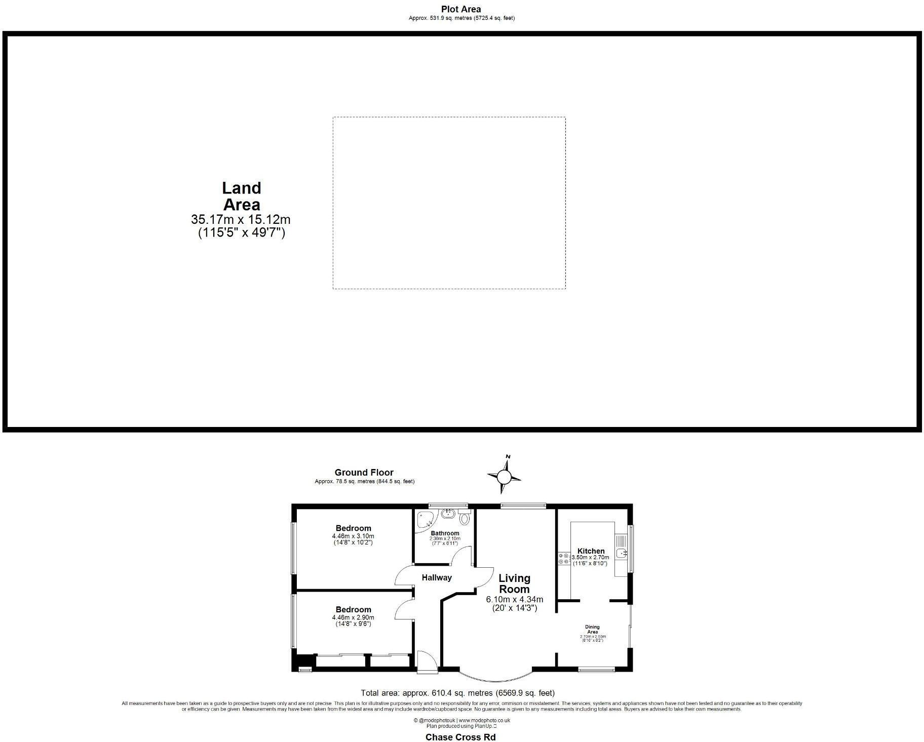
If you're looking for a project with real potential, this detached bungalow on a wide 35m x 15m plot (approx) could be exactly what you need. Whether you're thinking new builds or a full renovation, the location near Clockhouse School and Lawns Park makes this a smart move.
Property Oracle says ..
Therefore, we give this property 6 / 10. *Disclaimer: This is our option and does constitute a recommendation or financial advice. Do your own research. *
- Price
- 7
- Condition
- 4
- Location
- 7
- Land
- 7
- Bedrooms
- 2
- Bathrooms
- 1
- Sqft (est)
- 6,570.29
- Lot (est)
- 5,725.32
The heatmap indicates the level of crime in the area. The color of the heatmap indicates the crime severity and recency.
Metrics Year-on-Year
- Average area value
- 430,989.00 £Increased by 6.80 %
- Est sale value
- 3,239,152.97 £Increased by 74.20 %
- Average area rental value
- 1,439.00 £/moIncreased by 15.21 %
- Est letting value
- 6,570.29 £/mo
- Est rental Yield
- 4.01 %Increased by 8.09 %
- Crime Rate
- 7.00 %Unchanged by 0.00 %
from 403,536.00 £
from 1,859,392.07 £
from 1,249.00 £/mo
from 0.00 £/mo
from 3.71 %
from 7.00 %
Agent Activity
Keys & Lee created the listing.
Nearby Schools
| Name | Type | Ofsted | Distance |
|---|---|---|---|
| Rise Park Infant School | Academy Converter | Good | 0.84 KM |
| Rise Park Junior School | Academy Sponsor Led | Good | 0.84 KM |
| Collier Row Children'S Centre | Children's Centre | 0.90 KM | |
| Clockhouse Primary School | Community School | Good | 0.92 KM |
| Immanuel School | Other Independent School | 0.97 KM |
Images
Nearby Streets
| Name | Average Price | Average Sqft | Distance |
|---|---|---|---|
| The Drive | £ 350,000 | 0 | 0.00 KM |
| The Drive | £ 531,250 | 0 | 0.00 KM |
| Rawdin Close | £ 0 | 0 | 0.00 KM |
| Felstead Road | £ 0 | 0 | 0.00 KM |
| Vernon Road | £ 0 | 0 | 0.00 KM |
Nearby Transport
| Name | NLC | TLC | Distance |
|---|---|---|---|
| Romford | 6886 | RMF | 3.21 KM |
| Gidea Park | 6877 | GDP | 4.29 KM |
| Chadwell Heath | 6874 | CTH | 6.11 KM |
| Emerson Park | 7473 | EMP | 6.41 KM |
| Harold Wood | 6879 | HRO | 6.76 KM |
Nearby Listings
| Address | Price | Type | Score | Distance |
|---|---|---|---|---|
| Chase Cross Road, Romford | £ 475,000 | BUY | 6 / 10 | 0.00 KM |
| Romford, RM5 | £ 715,000 | BUY | 6 / 10 | 0.07 KM |
| Chase Cross Road, Romford, RM5 | £ 600,000 | BUY | 7 / 10 | 0.10 KM |
| Chase Cross Road, Romford, RM5 | £ 375,000 | BUY | 5 / 10 | 0.10 KM |
| Chase Cross Road, Collier Row, RM5 | £ 599,950 | BUY | 7 / 10 | 0.10 KM |
Nearby Properties
| Address | Price | Distance |
|---|---|---|
| 148 Chase Cross Road | £ 545,000 | 0.05 KM |
| 158 Chase Cross Road | £ 482,500 | 0.05 KM |
| 150 Chase Cross Road | £ 190,000 | 0.06 KM |
| 140 Chase Cross Road | £ 247,500 | 0.06 KM |
| 166 Chase Cross Road | £ 90,000 | 0.06 KM |