Fulham High Street, London, SW6
By Jefferies James London
£ 1,000,000
Reviews
3 out of 5 stars
Jefferies James London says ..
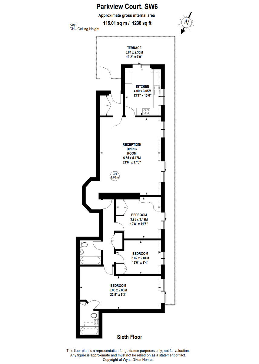
Fabulous 3 Bedroom Penthouse with Far-Reaching View Towards the River and Putney
Property Oracle says ..
This is a three-bedroom apartment located on Fulham High Street in London. The property offers 1,237.96 sqft of living space and includes two bathrooms. The apartment benefits from a balcony, providing outdoor space. While the location is excellent, with close proximity to transportation, schools, and shops, the condition of the property appears somewhat dated, particularly in the bathrooms and kitchen. The price seems a bit high relative to the average price per square foot in the area, considering the condition. Overall, the property has potential but may require some updating to justify the price.
Therefore, we give this property 6 / 10. *Disclaimer: This is our option and does constitute a recommendation or financial advice. Do your own research. *
- Price
- 6
- Condition
- 6
- Location
- 8
- Land
- 7
- Bedrooms
- 3
- Bathrooms
- 2
- Sqft (est)
- 1,237.96
The heatmap indicates the level of crime in the area. The color of the heatmap indicates the crime severity and recency.
Metrics Year-on-Year
- Average area value
- 2,275,000.00 £Increased by 44.37 %
- Est sale value
- 1,733,144.00 £Increased by 16.09 %
- Average area rental value
- 5,177.00 £/moIncreased by 36.63 %
- Est letting value
- 3,713.88 £/moIncreased by 50.00 %
- Est rental Yield
- 2.73 %Decreased by 5.54 %
- Crime Rate
- 6.00 %Unchanged by 0.00 %
Agent Activity
Jefferies James London created the listing.
Nearby Schools
| Name | Type | Ofsted | Distance |
|---|---|---|---|
| The Moat School | Other Independent Special School | 0.38 KM | |
| All Saints Cofe Primary School | Voluntary Aided School | Good | 0.38 KM |
| Parsons Green Prep School | Other Independent School | 0.44 KM | |
| Thomas'S Academy | Academy Converter | Good | 0.65 KM |
| Parayhouse School | Non-maintained Special School | Good | 0.65 KM |
Images
Nearby Streets
| Name | Average Price | Average Sqft | Distance |
|---|---|---|---|
| A219 | £ 0 | 0 | 0.00 KM |
| Fulham Palace Road | £ 0 | 0 | 0.00 KM |
| Putney Bridge Approach | £ 0 | 0 | 0.00 KM |
| Oxberry Avenue | £ 955,000 | 0 | 0.00 KM |
| The Courtyard | £ 0 | 0 | 0.00 KM |
Nearby Transport
| Name | NLC | TLC | Distance |
|---|---|---|---|
| Putney | 5603 | PUT | 1.20 KM |
| West Brompton | 8875 | WBP | 2.51 KM |
| Wandsworth Town | 5576 | WNT | 2.75 KM |
| Kensington (Olympia) | 3092 | KPA | 3.04 KM |
| Imperial Wharf | 9586 | IMW | 3.16 KM |
Nearby Listings
| Address | Price | Type | Score | Distance |
|---|---|---|---|---|
| Fulham High Street, London, SW6 | £ 1,000,000 | BUY | 6 / 10 | 0.00 KM |
| Parkview Court, Fulham, SW6 | £ 600,000 | BUY | Unknown | 0.03 KM |
| Fulham High Street, Fulham, London, SW6 | £ 600,000 | BUY | 5 / 10 | 0.03 KM |
| Parkview Court, 38 Fulham High Street, SW6 | £ 600,000 | BUY | 5 / 10 | 0.03 KM |
| Parkview Court, 38 Fulham High Street, Fulham, London, SW6 | £ 525,000 | BUY | Unknown | 0.03 KM |
Nearby Properties
| Address | Price | Distance |
|---|---|---|
| 17a Fulham High Street | £ 47,500 | 0.04 KM |
| 19a Fulham High Street | £ 820,000 | 0.04 KM |
| 15a Fulham High Street | £ 92,500 | 0.05 KM |
| 20 Burlington Road | £ 295,000 | 0.08 KM |
| 24 Burlington Road | £ 340,000 | 0.09 KM |