Sears Property says ..
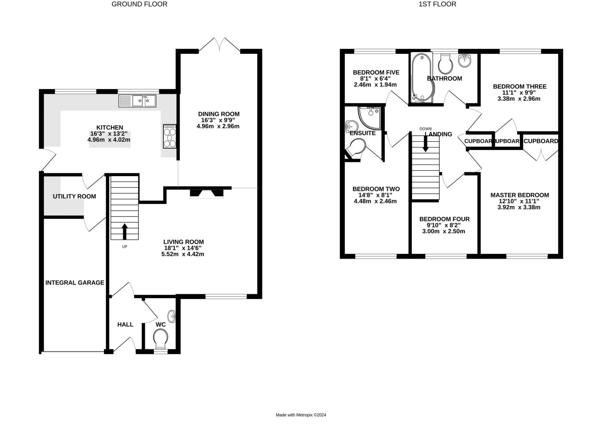
** DETACHED FAMILY HOME IN KINGS ACADEMY CATCHMENT ** Located in a highly sought after residential area is this well presented five bedroom detached family home which boasts a wealth of features and great local facilities.
Property Oracle says ..
Therefore, we give this property 7 / 10. *Disclaimer: This is our option and does constitute a recommendation or financial advice. Do your own research. *
- Price
- 8
- Condition
- 7
- Location
- 7
- Land
- 8
- Bedrooms
- 5
- Bathrooms
- 2
- Sqft (est)
- 1,136.13
The heatmap indicates the level of crime in the area. The color of the heatmap indicates the crime severity and recency.
Metrics Year-on-Year
- Average area value
- 561,863.00 £Decreased by 2.75 %
- Est sale value
- 765,751.62 £Increased by 15.21 %
- Average area rental value
- 3,222.00 £/moIncreased by 22.09 %
- Est letting value
- 3,408.39 £/moIncreased by 50.00 %
- Est rental Yield
- 6.88 %Increased by 25.55 %
- Crime Rate
- 1.00 %Unchanged by 0.00 %
from 577,775.00 £
from 664,636.05 £
from 2,639.00 £/mo
from 2,272.26 £/mo
from 5.48 %
from 1.00 %
Agent Activity
Sears Property created the listing.
Nearby Schools
| Name | Type | Ofsted | Distance |
|---|---|---|---|
| Newbold School | Other Independent School | Good | 0.73 KM |
| King'S Academy Binfield | Free Schools | 0.99 KM | |
| King'S Academy Oakwood | Free Schools | 1.31 KM | |
| Cressex Lodge School | Other Independent Special School | Good | 1.37 KM |
| Binfield Church Of England Primary School | Voluntary Aided School | Good | 1.69 KM |
Images
Nearby Streets
| Name | Average Price | Average Sqft | Distance |
|---|---|---|---|
| Kings Quarter Queens Quarter | £ 0 | 0 | 0.00 KM |
| Queens Quarter | £ 303,000 | 0 | 0.00 KM |
| Harrier Way cycle path (north) | £ 430,000 | 0 | 0.00 KM |
| Turnpike Road | £ 0 | 0 | 0.00 KM |
| Heythorp Park | £ 0 | 0 | 0.00 KM |
Nearby Transport
| Name | NLC | TLC | Distance |
|---|---|---|---|
| Bracknell | 5693 | BCE | 3.54 KM |
| Wokingham | 5696 | WKM | 6.57 KM |
| Martins Heron | 5692 | MAO | 6.62 KM |
| Crowthorne | 5628 | CRN | 6.86 KM |
| Sandhurst (Berks) | 5646 | SND | 8.14 KM |
Nearby Listings
| Address | Price | Type | Score | Distance |
|---|---|---|---|---|
| Blomfield Dale, Amen Corner | £ 575,000 | BUY | 7 / 10 | 0.00 KM |
| Blomfield Dale, Bracknell, Berkshire | £ 575,000 | BUY | 7 / 10 | 0.00 KM |
| Arkwright Drive, Bracknell, Berkshire | £ 525,000 | BUY | 7 / 10 | 0.05 KM |
| Jacob Close, Bracknell, Berkshire, RG42 | £ 600,000 | BUY | 7 / 10 | 0.11 KM |
| Arkwright Drive, Binfield, Bracknell | £ 800,000 | BUY | 6 / 10 | 0.14 KM |
Nearby Properties
| Address | Price | Distance |
|---|---|---|
| 7 Blomfield Dale | £ 226,000 | 0.01 KM |
| 13 Blomfield Dale | £ 305,000 | 0.01 KM |
| 18 Blomfield Dale | £ 325,000 | 0.01 KM |
| 21 Blomfield Dale | £ 387,500 | 0.01 KM |
| 16 Blomfield Dale | £ 272,500 | 0.01 KM |