Paramount says ..
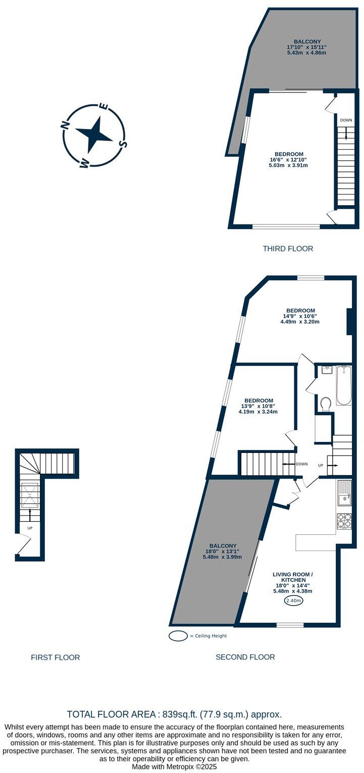
Live like royalty on Kingsgate Road, terraces and views that rule. Set within an elegant period conversion on Kingsgate Road, this three-bedroom apartment spans the top two floors. Flooded with natural light, the spacious reception room features an open-plan kitchen, with sleek fitting...
Property Oracle says ..
This is a 3-bedroom maisonette located on Kingsgate Road in Kilburn, London. The property is in a good location, close to transportation and schools. It features two terraces, which is a desirable feature in London. The property appears to be in generally good condition, although some areas could benefit from updating. The asking price of £650,000 seems reasonable given the location, size, and features of the property.
Therefore, we give this property 6 / 10. *Disclaimer: This is our option and does constitute a recommendation or financial advice. Do your own research. *
- Price
- 7
- Condition
- 7
- Location
- 7
- Land
- 6
- Bedrooms
- 3
- Bathrooms
- 1
- Sqft (est)
- 839.00
The heatmap indicates the level of crime in the area. The color of the heatmap indicates the crime severity and recency.
Metrics Year-on-Year
- Average area value
- 598,568.00 £Decreased by 21.57 %
- Est sale value
- 594,851.00 £Decreased by 22.77 %
- Average area rental value
- 2,229.00 £/moIncreased by 6.80 %
- Est letting value
- 1,678.00 £/moUnchanged by 0.00 %
- Est rental Yield
- 4.47 %Increased by 36.28 %
- Crime Rate
- 6.00 %Unchanged by 0.00 %
Agent Activity
Paramount created the listing.
Nearby Schools
| Name | Type | Ofsted | Distance |
|---|---|---|---|
| Kingsgate Primary School | Community School | Outstanding | 0.14 KM |
| Kilburn Grange School | Free Schools | Good | 0.30 KM |
| St Eugene De Mazenod Roman Catholic Primary School | Voluntary Aided School | Outstanding | 0.30 KM |
| Kilburn Grange Childrens Centre | Children's Centre | 0.34 KM | |
| St Mary'S Kilburn Church Of England Primary School | Voluntary Aided School | Good | 0.38 KM |
Images
Nearby Streets
| Name | Average Price | Average Sqft | Distance |
|---|---|---|---|
| Grangeway | £ 0 | 0 | 0.00 KM |
| Coral Mews | £ 0 | 0 | 0.00 KM |
| Aldershot Road | £ 0 | 0 | 0.00 KM |
| Kilburn High Road | £ 495,000 | 0 | 0.00 KM |
| West Hampstead Studios | £ 529,950 | 0 | 0.00 KM |
Nearby Transport
| Name | NLC | TLC | Distance |
|---|---|---|---|
| West Hampstead | 1421 | WHD | 0.71 KM |
| Kilburn High Road | 1415 | KBN | 0.73 KM |
| West Hampstead Thameslink | 1525 | WHP | 0.76 KM |
| Brondesbury | 1437 | BSY | 0.78 KM |
| Queens Park (London) | 1419 | QPW | 1.43 KM |
Nearby Listings
| Address | Price | Type | Score | Distance |
|---|---|---|---|---|
| Kingsgate Road, Kilburn, NW6 | £ 650,000 | BUY | 6 / 10 | 0.00 KM |
| Kingsgate Road, West Hampstead | £ 1,000,000 | BUY | 7 / 10 | 0.02 KM |
| Gascony Avenue, West Hampstead, NW6 | £ 450,000 | BUY | 5 / 10 | 0.06 KM |
| Gascony Avenue, West Hampstead | £ 600,000 | BUY | 7 / 10 | 0.06 KM |
| Messina Avenue, West Hampstead, London, NW6 | £ 375,000 | BUY | 5 / 10 | 0.09 KM |
Nearby Properties
| Address | Price | Distance |
|---|---|---|
| 78 Kingsgate Road | £ 455,000 | 0.03 KM |
| 81 Kingsgate Road | £ 105,000 | 0.05 KM |
| 49 Cotleigh Road | £ 700,000 | 0.08 KM |
| 37 Cotleigh Road | £ 350,000 | 0.08 KM |
| 53a Cotleigh Road | £ 290,000 | 0.09 KM |