Longsight Avenue, Clitheroe, BB7
By Stones Young Estate and Letting Agents
£ 375,000
Reviews
3 out of 5 stars
Stones Young Estate and Letting Agents says ..
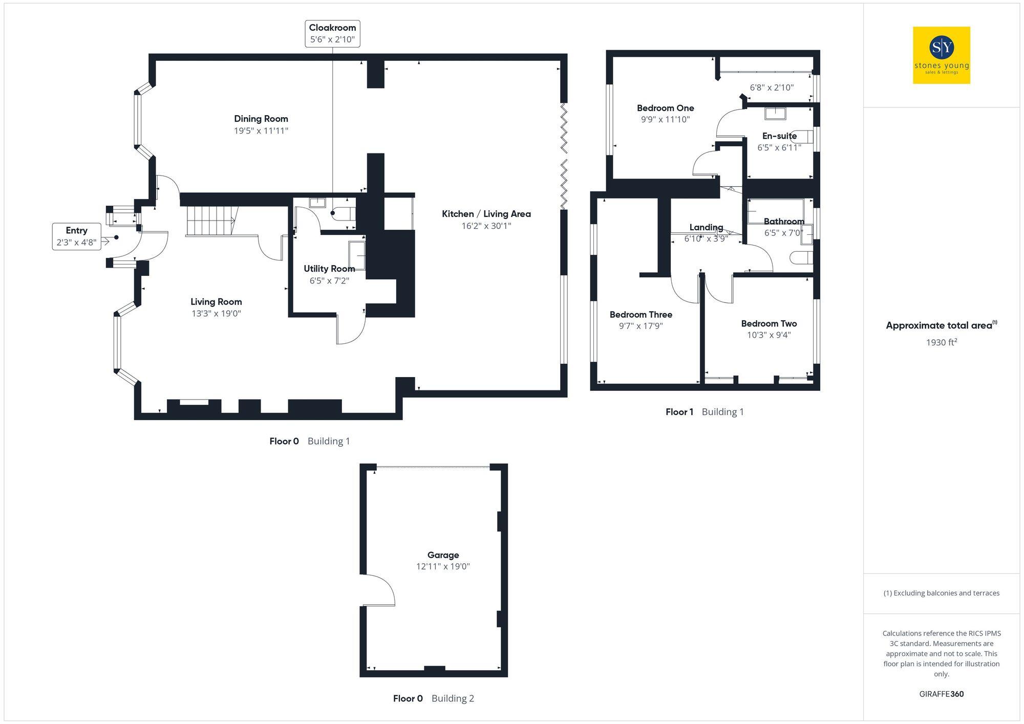
Uniquely extended family home with versatile, light-filled interior. Open plan kitchen living diner with bi-folds to patio garden. 3 double bedrooms, 2 dressing areas, en-suite, family bath. Double-storey side and full-width rear extensions. 2 receptions, utility, 2-pce cloaks, detached garage. F...
Property Oracle says ..
This terraced property is located on Longsight Avenue in Clitheroe, Lancashire. The location is within close proximity to Clitheroe Pendle Primary School which has an outstanding Ofsted rating, and Clitheroe Royal Grammar School. Clitheroe train station is less than 1km away. The property boasts 3 bedrooms and 3 bathrooms, with a generous 1,930 sq ft of living space. The interior photos suggest that the property has been modernised, particularly the kitchen and bathrooms. The property also benefits from a utility room. The rear of the property has a paved garden area. There is also a garage. The list price is £375,000. The average price for properties in the area is £265,162, and the average price per sq ft is £281. The subject property is listed at approximately £194 per sq ft. This suggests that the property is priced competitively, taking into account its size and features.
Therefore, we give this property 7 / 10. *Disclaimer: This is our option and does constitute a recommendation or financial advice. Do your own research. *
- Price
- 8
- Condition
- 9
- Location
- 8
- Land
- 6
- Bedrooms
- 3
- Bathrooms
- 3
- Sqft (est)
- 1,930.00
The heatmap indicates the level of crime in the area. The color of the heatmap indicates the crime severity and recency.
Metrics Year-on-Year
- Average area value
- 265,162.00 £Increased by 23.95 %
- Est sale value
- 542,330.00 £Increased by 31.92 %
- Average area rental value
- 906.00 £/moIncreased by 20.80 %
- Est letting value
- 0.00 £/mo
- Est rental Yield
- 4.10 %Decreased by 2.61 %
- Crime Rate
- 19.00 %Unchanged by 0.00 %
Agent Activity
Stones Young Estate and Letting Agents created the listing.
Nearby Schools
| Name | Type | Ofsted | Distance |
|---|---|---|---|
| Clitheroe Pendle Primary School | Community School | Outstanding | 0.08 KM |
| Clitheroe Royal Grammar School | Academy Converter | 0.30 KM | |
| Clitheroe Brookside Primary School | Community School | Requires improvement | 0.63 KM |
| Moorland School Limited | Other Independent School | 0.80 KM | |
| St Michael And St John'S Roman Catholic Primary School, Clitheroe | Voluntary Aided School | Requires improvement | 0.90 KM |
Images
Nearby Streets
| Name | Average Price | Average Sqft | Distance |
|---|---|---|---|
| Kendal Street | £ 0 | 0 | 0.00 KM |
| Park Avenue | £ 225,000 | 0 | 0.00 KM |
| Waddington Lane | £ 0 | 0 | 0.00 KM |
| Church Street | £ 219,950 | 0 | 0.00 KM |
| Maytree Close | £ 0 | 0 | 0.00 KM |
Nearby Transport
| Name | NLC | TLC | Distance |
|---|---|---|---|
| Clitheroe | 2574 | CLH | 0.93 KM |
| Whalley (Lancashire) | 2736 | WHE | 6.50 KM |
Nearby Listings
| Address | Price | Type | Score | Distance |
|---|---|---|---|---|
| Longsight Avenue, Clitheroe, BB7 | £ 375,000 | BUY | 7 / 10 | 0.00 KM |
| Longsight Avenue, Clitheroe, Lancashire, BB7 | £ 399,950 | BUY | 7 / 10 | 0.01 KM |
| Princess Avenue, Clitheroe, Lancashire, BB7 | £ 289,950 | BUY | 6 / 10 | 0.09 KM |
| Chatburn Road, Clitheroe, BB7 2AP | £ 180,000 | BUY | Unknown | 0.09 KM |
| Chatburn Road, Clitheroe, BB7 | £ 195,000 | BUY | 6 / 10 | 0.10 KM |
Nearby Properties
| Address | Price | Distance |
|---|---|---|
| 6 Longsight Avenue | £ 180,000 | 0.01 KM |
| 8 Longsight Avenue | £ 153,000 | 0.01 KM |
| 12 Longsight Avenue | £ 165,000 | 0.01 KM |
| 10 Longsight Avenue | £ 64,950 | 0.01 KM |
| 22 Longsight Avenue | £ 162,000 | 0.03 KM |