TH
Mornington Road, Bushwood Area, E11
By Theydons
£ 2,400
Theydons says ..
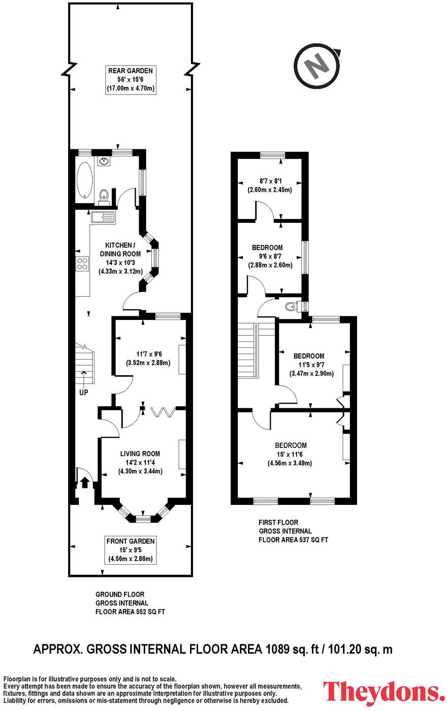
This spacious three bedroom terraced home is ideally situated within the highly sought after Bushwood Area moments from High Road Leytonstone, which offers an array of eateries, amenities and major supermarkets, such as Tesco superstore, Aldi and the highly anticipated M&S food hall opening on the H
- Bedrooms
- 3
- Bathrooms
- 1
The heatmap indicates the level of crime in the area. The color of the heatmap indicates the crime severity and recency.
Metrics Year-on-Year
- Average area value
- 775,000.00 £Increased by 28.05 %
- Average area rental value
- 1,926.00 £/moIncreased by 6.88 %
- Est rental Yield
- 2.98 %Decreased by 16.53 %
- Crime Rate
- 13.00 %Unchanged by 0.00 %
from 605,229.00 £
from 1,802.00 £/mo
from 3.57 %
from 13.00 %
Agent Activity
Theydons created the listing.
Nearby Schools
| Name | Type | Ofsted | Distance |
|---|---|---|---|
| Davies Lane Primary School | Academy Converter | 0.46 KM | |
| Davies Lane Children Centre | Children's Centre Linked Site | 0.46 KM | |
| George Tomlinson Primary School | Community School | Good | 0.58 KM |
| Acacia Nursery | Local Authority Nursery School | Good | 0.98 KM |
| Our Lady Of Lourdes Rc Primary School | Academy Converter | 0.98 KM |
Images
Nearby Streets
| Name | Average Price | Average Sqft | Distance |
|---|---|---|---|
| Carlton Road | £ 775,000 | 0 | 0.00 KM |
| Davies Lane | £ 0 | 0 | 0.00 KM |
| Cambridge Road | £ 357,740 | 0 | 0.00 KM |
| King's Road | £ 756,250 | 0 | 0.00 KM |
| Maple Road | £ 475,000 | 0 | 0.00 KM |
Nearby Transport
| Name | NLC | TLC | Distance |
|---|---|---|---|
| Leytonstone High Road | 7403 | LER | 0.78 KM |
| Wanstead Park | 7408 | WNP | 2.28 KM |
| Forest Gate | 6876 | FOG | 2.38 KM |
| Leyton Midland Road | 7402 | LEM | 2.42 KM |
| Maryland | 6970 | MYL | 2.60 KM |
Nearby Listings
| Address | Price | Type | Score | Distance |
|---|---|---|---|---|
| Mornington Road, Bushwood Area, E11 | £ 2,400 | RENT | Unknown | 0.00 KM |
| Grove Road, Leytonstone, London, E11 3AN | £ 2,000 | RENT | Unknown | 0.11 KM |
| Barclay Road, London, E11 | £ 3,400 | RENT | Unknown | 0.17 KM |
| High Road Leytonstone, Leytonstone, London, E11 | £ 1,700 | RENT | Unknown | 0.18 KM |
| High Road Leytonstone, London, E11 3AJ | £ 1,900 | RENT | Unknown | 0.18 KM |
Nearby Properties
| Address | Price | Distance |
|---|---|---|
| 72b Mornington Road | £ 426,500 | 0.00 KM |
| 72c Mornington Road | £ 180,000 | 0.00 KM |
| 73 Mornington Road | £ 83,000 | 0.00 KM |
| 58 Mornington Road | £ 781,000 | 0.00 KM |
| 121 Mornington Road | £ 334,495 | 0.00 KM |