MA
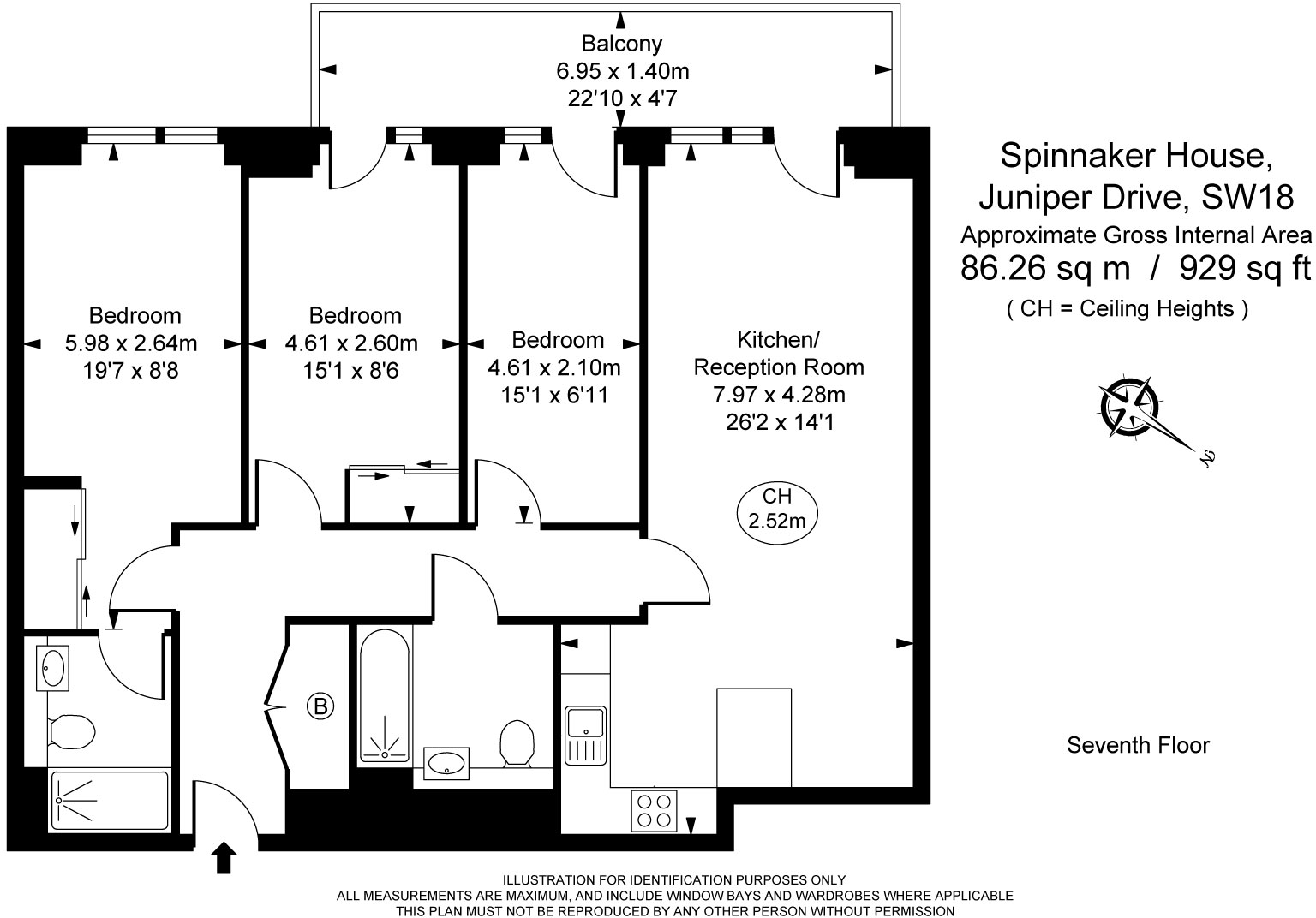
Spinnaker House, Battersea Reach
By Martin & Co
£ 850,000
Reviews
3 out of 5 stars
Martin & Co says ..
Impressive 929ft² lateral apartment with a balcony presenting river views, bright westerly aspect & fitted Siemens appliances.
Property Oracle says ..
Therefore, we give this property 6 / 10. *Disclaimer: This is our option and does constitute a recommendation or financial advice. Do your own research. *
- Price
- 7
- Condition
- 9
- Location
- 8
- Land
- 3
- Bedrooms
- 3
- Bathrooms
- 2
- Sqft (est)
- 875.06
The heatmap indicates the level of crime in the area. The color of the heatmap indicates the crime severity and recency.
Metrics Year-on-Year
- Average area value
- 977,174.00 £Increased by 2.62 %
- Est sale value
- 961,690.94 £Increased by 8.81 %
- Average area rental value
- 2,684.00 £/moIncreased by 1.51 %
- Est letting value
- 2,625.18 £/moIncreased by 50.00 %
- Est rental Yield
- 3.30 %Decreased by 0.90 %
- Crime Rate
- 5.00 %Unchanged by 0.00 %
from 952,207.00 £
from 883,810.60 £
from 2,644.00 £/mo
from 1,750.12 £/mo
from 3.33 %
from 5.00 %
Agent Activity
Martin & Co created the listing.
Nearby Schools
| Name | Type | Ofsted | Distance |
|---|---|---|---|
| St Faith'S Cofe Primary School | Voluntary Aided School | Good | 0.49 KM |
| Thomas'S Fulham | Other Independent School | 0.85 KM | |
| St Anne'S Cofe Primary School | Voluntary Aided School | Good | 0.85 KM |
| Anglo Portuguese School Of London | Free Schools | 0.95 KM | |
| Ray'S Playhouse Ltd. | Children's Centre Linked Site | 0.97 KM |
Images
Nearby Streets
| Name | Average Price | Average Sqft | Distance |
|---|---|---|---|
| Wandsworth Bridge | £ 0 | 0 | 0.00 KM |
| Marl Road | £ 0 | 0 | 0.00 KM |
| Jews Row | £ 487,500 | 0 | 0.00 KM |
| Odyssey Way | £ 0 | 0 | 0.00 KM |
| Smugglers Way | £ 0 | 0 | 0.00 KM |
Nearby Transport
| Name | NLC | TLC | Distance |
|---|---|---|---|
| Wandsworth Town | 5576 | WNT | 0.37 KM |
| Imperial Wharf | 9586 | IMW | 1.30 KM |
| Clapham Junction | 5595 | CLJ | 1.75 KM |
| Earlsfield | 5584 | EAD | 2.39 KM |
| West Brompton | 8875 | WBP | 2.80 KM |
Nearby Listings
| Address | Price | Type | Score | Distance |
|---|---|---|---|---|
| Spinnaker House, Battersea Reach | £ 395,000 | BUY | 7 / 10 | 0.00 KM |
| Spinnaker House, Battersea Reach | £ 1,200,000 | BUY | Unknown | 0.00 KM |
| Battersea Reach, Wandsworth SW18 | £ 1,500,000 | BUY | 8 / 10 | 0.00 KM |
| Spinnaker House, Battersea Reach | £ 850,000 | BUY | 6 / 10 | 0.00 KM |
| Spinnaker House, Battersea Reach | £ 1,100,000 | BUY | 6 / 10 | 0.00 KM |
Nearby Properties
| Address | Price | Distance |
|---|---|---|
| 24 Eltringham Street | £ 775,000 | 0.27 KM |
| 12 Eltringham Street | £ 481,250 | 0.27 KM |
| 26 Eltringham Street | £ 794,000 | 0.27 KM |
| 22 Eltringham Street | £ 250,000 | 0.27 KM |
| 32 Eltringham Street | £ 735,000 | 0.27 KM |