Lot 1: East Farm, Purving Row, Eastertown, Lympsham, BS24
By Carter Jonas Rural
£ 550,000
Reviews
3 out of 5 stars
Carter Jonas Rural says ..
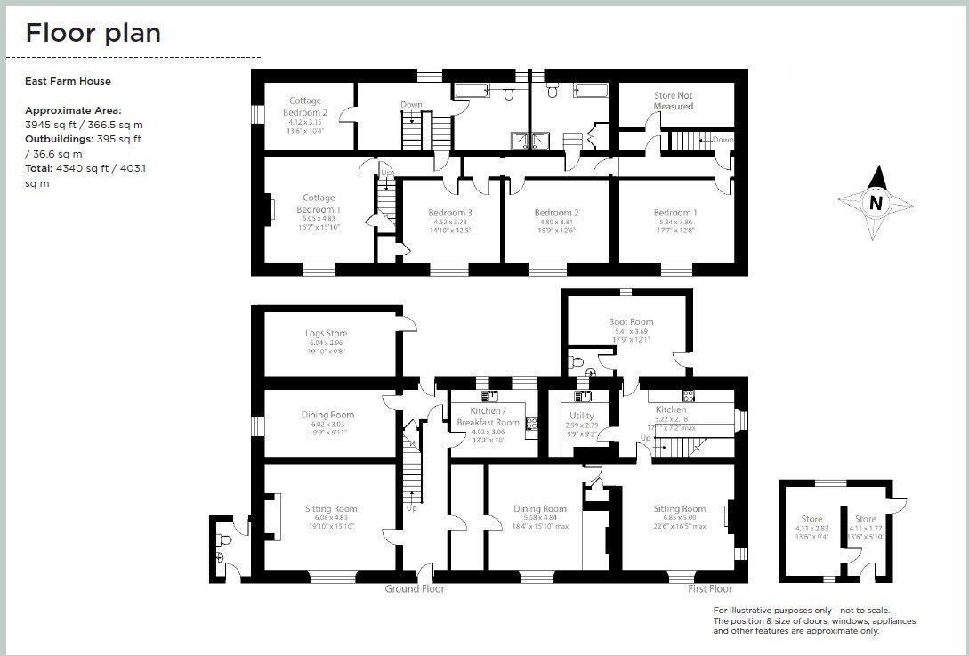
East Farm offers a detached Grade II Listed 3-bedroom farmhouse and adjoining 2-bedroom cottage for modernisation along with a small CL caravan site. Extending to 2.80 acres. Further lots available.
Property Oracle says ..
This is a substantial house in need of modernisation, set within a generous plot. The location offers a balance between rural tranquility and accessibility to local amenities. While some renovation is required, the property represents a good opportunity for buyers looking to create a bespoke home in a desirable location.
Therefore, we give this property 6 / 10. *Disclaimer: This is our option and does constitute a recommendation or financial advice. Do your own research. *
- Price
- 7
- Condition
- 5
- Location
- 7
- Land
- 8
- Bedrooms
- 3
- Bathrooms
- 0
- Sqft (est)
- 3,945.00
- Lot (est)
- 4,340.00
The heatmap indicates the level of crime in the area. The color of the heatmap indicates the crime severity and recency.
Metrics Year-on-Year
- Average area value
- 500,257.00 £Increased by 23.36 %
- Est sale value
- 1,195,335.00 £Decreased by 40.94 %
- Average area rental value
- 1,280.00 £/moIncreased by 46.62 %
- Est letting value
- 0.00 £/moDecreased by 100.00 %
- Est rental Yield
- 3.07 %Increased by 18.99 %
- Crime Rate
- 1.00 %Unchanged by 0.00 %
Agent Activity
Carter Jonas Rural created the listing.
Nearby Schools
| Name | Type | Ofsted | Distance |
|---|---|---|---|
| Lympsham Church Of England Academy | Academy Converter | Good | 1.44 KM |
| East Brent Church Of England First School | Academy Converter | Good | 2.48 KM |
| Brent Knoll Church Of England Primary School | Academy Converter | 4.18 KM | |
| Oldmixon Primary School | Academy Converter | 4.50 KM | |
| Hutton Church Of England Primary School | Academy Converter | 4.50 KM |
Images
Nearby Streets
| Name | Average Price | Average Sqft | Distance |
|---|---|---|---|
| Purving Row Lane | £ 0 | 0 | 0.00 KM |
| Row Lane | £ 0 | 0 | 0.00 KM |
| Stevens Lane | £ 350,000 | 0 | 0.00 KM |
| Sedgemoor Close | £ 0 | 0 | 0.00 KM |
| Weston Road | £ 847,500 | 0 | 0.00 KM |
Nearby Transport
| Name | NLC | TLC | Distance |
|---|---|---|---|
| Weston Milton | 3388 | WNM | 7.04 KM |
| Weston-Super-Mare | 3391 | WSM | 7.38 KM |
| Highbridge And Burnham | 3314 | HIG | 8.18 KM |
| Worle | 3390 | WOR | 8.84 KM |
Nearby Listings
| Address | Price | Type | Score | Distance |
|---|---|---|---|---|
| Lot 1: East Farm, Purving Row, Eastertown, Lympsham, BS24 | £ 550,000 | BUY | 6 / 10 | 0.00 KM |
| Lot 2: East Farm, Purving Row, Eastertown, Lympsham, BS24 | £ 225,000 | BUY | 5 / 10 | 0.06 KM |
| Lot 4: Land At East Farm, Purving Row, Eastertown, Lympsham, BS24 | £ 80,000 | BUY | 6 / 10 | 0.34 KM |
| Lot 3: Land At East Farm, Purving Row, Eastertown, Lympsham, BS24 | £ 165,000 | BUY | 5 / 10 | 0.37 KM |
| Lot 5: Land At East Farm, Purving Row, Eastertown, Lympsham, BS24 | £ 65,000 | BUY | 6 / 10 | 0.37 KM |
Nearby Properties
| Address | Price | Distance |
|---|---|---|
| The Homestead | £ 485,000 | 0.13 KM |
| Lynwood | £ 762,500 | 0.25 KM |
| The Corner House | £ 290,000 | 0.32 KM |
| Homefield | £ 446,500 | 0.36 KM |
| Peartree Cottage | £ 150,000 | 0.36 KM |