Dunbar Road, Birkdale, Sefton, PR8
By Flexi-Agent
£ 425,000
Reviews
3 out of 5 stars
Flexi-Agent says ..
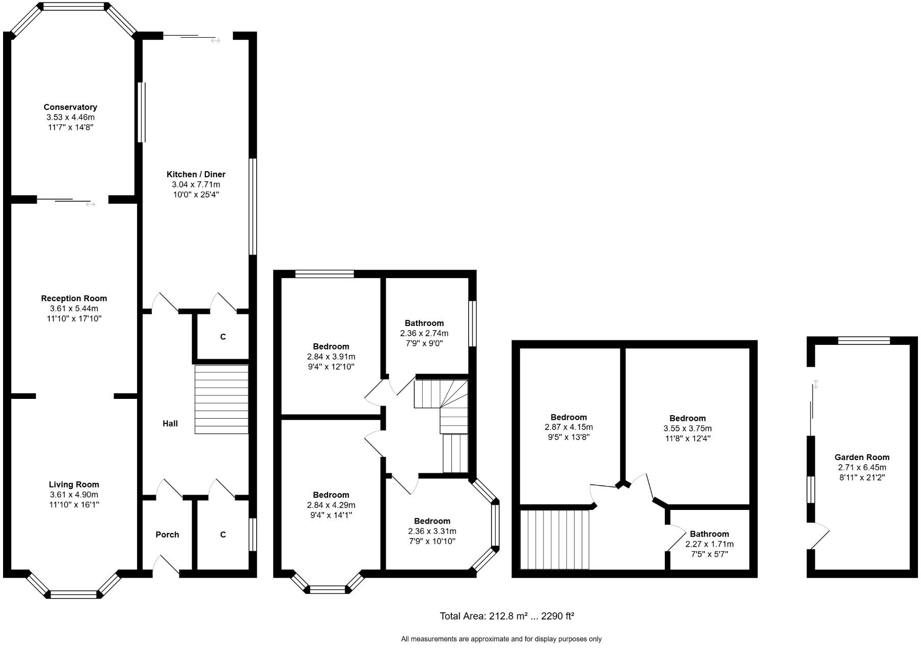
Sacious Five-Bedroom Family Home with Sun-Catching Garden in Hillside
Property Oracle says ..
This is a five-bedroom semi-detached house in Birkdale, Sefton. The property features two bathrooms, a garden, and a garage. While the kitchen and bathrooms have been modernised, some rooms would benefit from updating. The property is located close to local amenities, including Hillside train station and Birkdale High School.
Therefore, we give this property 6 / 10. *Disclaimer: This is our option and does constitute a recommendation or financial advice. Do your own research. *
- Price
- 7
- Condition
- 6
- Location
- 7
- Land
- 7
- Bedrooms
- 5
- Bathrooms
- 2
The heatmap indicates the level of crime in the area. The color of the heatmap indicates the crime severity and recency.
Metrics Year-on-Year
- Average area value
- 320,000.00 £Decreased by 1.71 %
- Average area rental value
- 8,975.00 £/moIncreased by 717.40 %
- Est rental Yield
- 33.66 %Increased by 731.11 %
- Crime Rate
- 3.00 %Unchanged by 0.00 %
Agent Activity
Flexi-Agent created the listing.
Nearby Schools
| Name | Type | Ofsted | Distance |
|---|---|---|---|
| Greenbank High School | Academy Converter | 0.60 KM | |
| Farnborough Road First Steps Children'S Centre | Children's Centre | 1.00 KM | |
| Birkdale High School | Academy Converter | Good | 1.14 KM |
| Farnborough Road Infant School | Community School | Good | 1.19 KM |
| Farnborough Road Junior School | Community School | Good | 1.19 KM |
Images
Nearby Streets
| Name | Average Price | Average Sqft | Distance |
|---|---|---|---|
| Harrod Drive | £ 650,000 | 0 | 0.00 KM |
| Greenbank Drive | £ 0 | 0 | 0.00 KM |
| Grosvenor Gardens | £ 625,000 | 0 | 0.00 KM |
| Broadlands | £ 0 | 0 | 0.00 KM |
| Belgrave Place | £ 629,999 | 0 | 0.00 KM |
Nearby Transport
| Name | NLC | TLC | Distance |
|---|---|---|---|
| Hillside | 2231 | HIL | 0.27 KM |
| Birkdale | 2352 | BDL | 1.58 KM |
| Ainsdale | 2350 | ANS | 3.17 KM |
| Southport | 2262 | SOP | 3.49 KM |
| Meols Cop | 2357 | MEC | 5.80 KM |
Nearby Listings
| Address | Price | Type | Score | Distance |
|---|---|---|---|---|
| Dunbar Road, Birkdale, Sefton, PR8 | £ 425,000 | BUY | 6 / 10 | 0.00 KM |
| Dunbar Road, Hillside, Southport, Merseyside, PR8 4RD | £ 425,000 | BUY | Unknown | 0.00 KM |
| Dunbar Road, Hillside, Southport, PR8 | £ 370,000 | BUY | 6 / 10 | 0.08 KM |
| Dunbar Road, Birkdale, Southport | £ 285,000 | BUY | 7 / 10 | 0.17 KM |
| Hillside Road, Birkdale, Southport, Merseyside, PR8 4QB | £ 435,000 | BUY | Unknown | 0.18 KM |
Nearby Properties
| Address | Price | Distance |
|---|---|---|
| 27 Dunbar Road | £ 285,000 | 0.08 KM |
| 18 Dunbar Road | £ 264,500 | 0.08 KM |
| 14 Dunbar Road | £ 230,000 | 0.08 KM |
| 23 Dunbar Road | £ 245,000 | 0.08 KM |
| 31 Dunbar Road | £ 202,500 | 0.08 KM |