MC
Richardson Street, Bradford, West Yorkshire, BD12
By McGowan Housing
£ 130,000
Reviews
3 out of 5 stars
McGowan Housing says ..
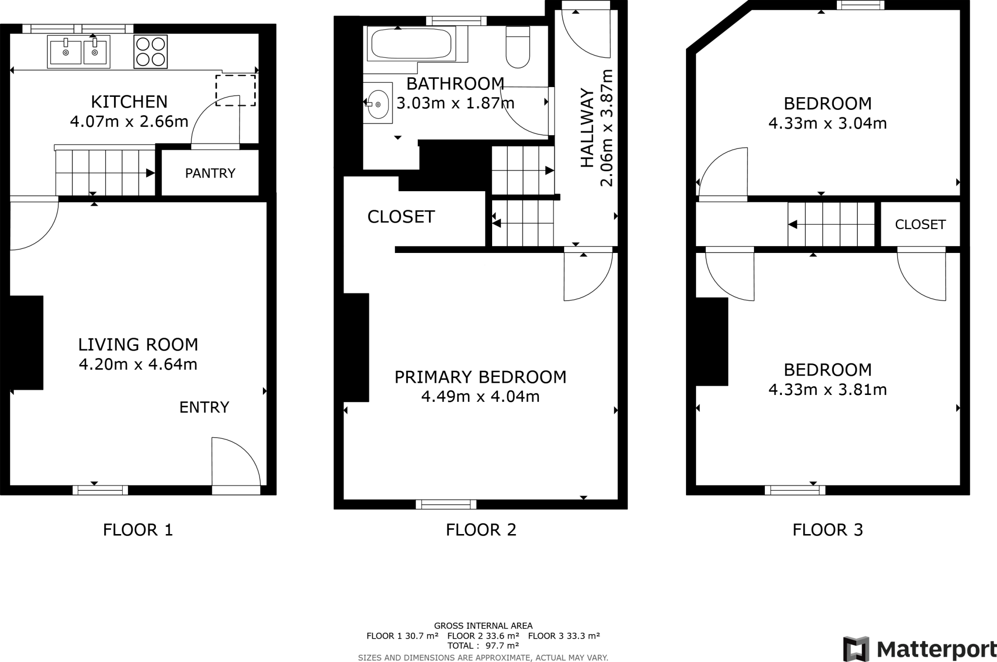
Buy-to-Let Opportunity | Spacious Lounge and Kitchen | Good Condition | Easy Access to Local Amenities
Property Oracle says ..
Therefore, we give this property 7 / 10. *Disclaimer: This is our option and does constitute a recommendation or financial advice. Do your own research. *
- Price
- 8
- Condition
- 7
- Location
- 6
- Land
- 7
- Bedrooms
- 3
- Bathrooms
- 1
The heatmap indicates the level of crime in the area. The color of the heatmap indicates the crime severity and recency.
Metrics Year-on-Year
- Average area value
- 205,023.00 £Decreased by 19.51 %
- Average area rental value
- 745.00 £/moDecreased by 12.76 %
- Est rental Yield
- 4.36 %Increased by 8.46 %
- Crime Rate
- 29.00 %Unchanged by 0.00 %
from 254,704.00 £
from 854.00 £/mo
from 4.02 %
from 29.00 %
Agent Activity
McGowan Housing created the listing.
Nearby Schools
| Name | Type | Ofsted | Distance |
|---|---|---|---|
| Woodlands Church Of England Primary Academy | Academy Converter | 0.30 KM | |
| Whitechapel Church Of England Primary School | Voluntary Controlled School | Good | 2.15 KM |
| Newhall Park Primary School | Community School | Good | 2.30 KM |
| Bierley Children'S Centre | Children's Centre | 2.32 KM | |
| Low Moor Cofe Primary School | Voluntary Controlled School | Outstanding | 2.45 KM |
Images
Nearby Streets
| Name | Average Price | Average Sqft | Distance |
|---|---|---|---|
| Hatchet Lane | £ 400,000 | 0 | 0.00 KM |
| North Street | £ 80,000 | 0 | 0.00 KM |
| St Andrew's Crescent | £ 119,000 | 0 | 0.00 KM |
| Coronation Street | £ 0 | 0 | 0.00 KM |
| Illingworth Road | £ 0 | 0 | 0.00 KM |
Nearby Transport
| Name | NLC | TLC | Distance |
|---|---|---|---|
| Low Moor | 8416 | LMR | 1.75 KM |
| Bradford Interchange | 8345 | BDI | 5.13 KM |
| Bradford Forster Square | 8346 | BDQ | 5.86 KM |
| Brighouse | 8514 | BGH | 7.06 KM |
| Deighton | 8441 | DHN | 8.81 KM |
Nearby Listings
| Address | Price | Type | Score | Distance |
|---|---|---|---|---|
| Richardson Street, Bradford, West Yorkshire, BD12 | £ 150,000 | BUY | 7 / 10 | 0.00 KM |
| Richardson Street, Bradford, West Yorkshire, BD12 | £ 130,000 | BUY | 7 / 10 | 0.00 KM |
| Cross Street, Oakenshaw, Bradford | £ 130,000 | BUY | 6 / 10 | 0.04 KM |
| Cross Street, Oakenshaw, Bradford, West Yorkshire, BD12 | £ 115,000 | BUY | 5 / 10 | 0.04 KM |
| Wyke Lane, Oakenshaw, Bradford | £ 210,000 | BUY | 7 / 10 | 0.09 KM |
Nearby Properties
| Address | Price | Distance |
|---|---|---|
| 8 Richardson Street | £ 85,000 | 0.00 KM |
| 4 Richardson Street | £ 98,000 | 0.00 KM |
| 1 Richardson Street | £ 150,000 | 0.00 KM |
| 20 Richardson Street | £ 58,500 | 0.00 KM |
| 3 Richardson Street | £ 59,420 | 0.00 KM |