4 Coedcae Road, Pontypridd, Mid Glamorgan, CF37 2NP
By Paul Fosh Auctions
£ 19,000
Reviews
2 out of 5 stars
Paul Fosh Auctions says ..
FOR SALE BY ONLINE AUCTION - Lot 1 - Residential Investment; ONLINE AUCTION from 7th OCTOBER - 9th OCTOBER 2025 A traditional mid terrace house situated in the popular village of Trehafod near Pontypridd. The property is sold with an established tenant who has expressed they are keen to...
Property Oracle says ..
This is a two-bedroom terraced house in Cymmer, Pontypridd. The property requires renovation but is listed at a very attractive price of £19,000. The house is located close to local amenities, schools, and transportation links. This could be an excellent investment opportunity for someone willing to undertake the necessary work.
Therefore, we give this property 5 / 10. *Disclaimer: This is our option and does constitute a recommendation or financial advice. Do your own research. *
- Price
- 9
- Condition
- 3
- Location
- 6
- Land
- 3
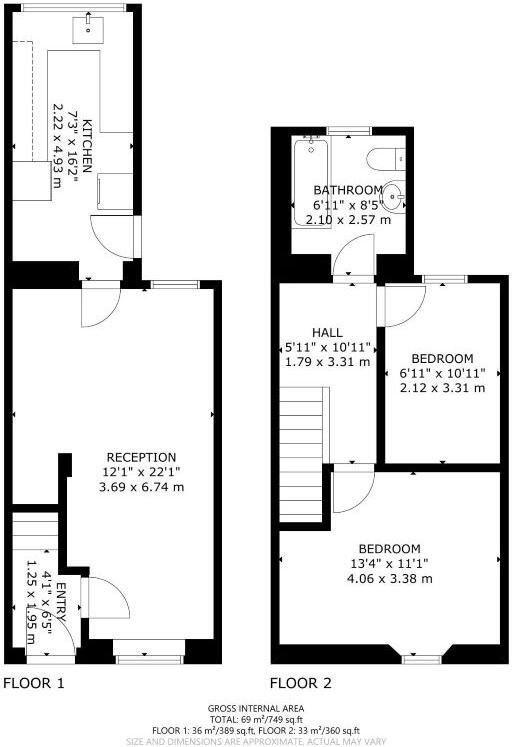
- Bedrooms
- 2
- Bathrooms
- 0
- Sqft (est)
- 108.39
The heatmap indicates the level of crime in the area. The color of the heatmap indicates the crime severity and recency.
Metrics Year-on-Year
- Average area value
- 242,000.00 £Decreased by 4.05 %
- Est sale value
- 25,471.65 £Increased by 10.85 %
- Average area rental value
- 437.00 £/moDecreased by 50.79 %
- Est letting value
- 0.00 £/mo
- Est rental Yield
- 2.17 %Decreased by 48.70 %
- Crime Rate
- 21.00 %Unchanged by 0.00 %
Agent Activity
Paul Fosh Auctions created the listing.
Nearby Schools
| Name | Type | Ofsted | Distance |
|---|---|---|---|
| Hafod Primary School | Welsh Establishment | 0.46 KM | |
| Ysgol G. G. Llwyncelyn | Welsh Establishment | 1.60 KM | |
| Ynyshir Primary School | Welsh Establishment | 2.83 KM | |
| Ysgol Gyfun Cymer Rhondda | Welsh Establishment | 3.10 KM | |
| Trehopcyn Primary School | Welsh Establishment | 3.12 KM |
Images
Nearby Streets
| Name | Average Price | Average Sqft | Distance |
|---|---|---|---|
| Bryn Eirw / Pleasant View | £ 126,665 | 0 | 0.00 KM |
| Pleasant View | £ 0 | 0 | 0.00 KM |
| Margaret Street | £ 0 | 0 | 0.00 KM |
| Morgannwg Street | £ 109,975 | 0 | 0.00 KM |
| Colliery Street | £ 0 | 0 | 0.00 KM |
Nearby Transport
| Name | NLC | TLC | Distance |
|---|---|---|---|
| Trehafod | 3888 | TRH | 0.54 KM |
| Porth | 3870 | POR | 2.37 KM |
| Pontypridd | 3904 | PPD | 5.06 KM |
| Dinas (Rhondda) | 3901 | DMG | 5.78 KM |
| Trefforest | 3887 | TRF | 7.03 KM |
Nearby Listings
| Address | Price | Type | Score | Distance |
|---|---|---|---|---|
| 4 Coedcae Road, Pontypridd, Mid Glamorgan, CF37 2NP | £ 19,000 | BUY | 5 / 10 | 0.00 KM |
| Coedcae Road, Trehafod, Rhondda Cynon Taff, CF37 | £ 79,995 | BUY | 5 / 10 | 0.04 KM |
| Coedcae Road, Trehafod, Pontypridd | £ 135,000 | BUY | 5 / 10 | 0.05 KM |
| Bryn Eirw, Trehafod, Pontypridd | £ 150,000 | BUY | 6 / 10 | 0.16 KM |
| Bryn Eirw, Trehafod, Pontypridd | £ 140,000 | BUY | Unknown | 0.16 KM |
Nearby Properties
| Address | Price | Distance |
|---|---|---|
| 13 Coedcae Road | £ 185,000 | 0.07 KM |
| 6 Coedcae Road | £ 76,950 | 0.07 KM |
| 9 Coedcae Road | £ 122,500 | 0.07 KM |
| 11 Coedcae Road | £ 66,000 | 0.07 KM |
| 3 Coedcae Road | £ 84,000 | 0.07 KM |