Salisbury Road, Radcliffe, Manchester
By Pearson Ferrier
£ 200,000
Reviews
3 out of 5 stars
Pearson Ferrier says ..
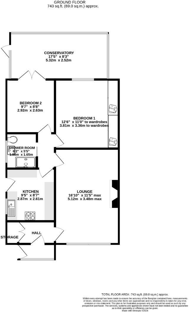
Introducing this charming two-bedroom semi-detached true bungalow, nestled in the desirable Moss Shaw estate. While it awaits some tender loving care, its prime location offers easy access to local amenities. Boasting PVC double glazing and a recently serviced gas central heating system....
Property Oracle says ..
This two-bedroom semi-detached bungalow located in Radcliffe, Manchester, presents a mixed bag. The property is situated in a convenient location, with primary schools and train stations within reasonable proximity. The garden is a notable feature, offering some outdoor space and privacy, and the garage provides additional storage.
However, the property shows its age and requires some modernisation. The interior decor and fixtures, particularly in the kitchen and bathroom, are dated and would likely need updating. Potential buyers should factor renovation costs into their budget. The overall condition of the property therefore requires serious consideration.
The listed price of £200,000 warrants further investigation to determine true value for money. While several similarly sized bungalows in the area are listed around a similar price range, there is little comparative data available, making a thorough assessment difficult. A comprehensive survey and valuation would be highly recommended before committing to a purchase. The need for refurbishment could influence the final negotiated price.
In summary, this property presents both opportunities and challenges. Its location and garden are its key strengths; however, its condition and the need for potential renovation require careful consideration. Further research into the local market and a property survey are advised to make an informed decision.
Therefore, we give this property 6 / 10. *Disclaimer: This is our option and does constitute a recommendation or financial advice. Do your own research. *
- Price
- 7
- Condition
- 5
- Location
- 7
- Land
- 6
- Bedrooms
- 2
- Bathrooms
- 1
- Sqft (est)
- 742.71
The heatmap indicates the level of crime in the area. The color of the heatmap indicates the crime severity and recency.
Metrics Year-on-Year
- Average area value
- 151,667.00 £Decreased by 37.08 %
- Est sale value
- 145,571.16 £Decreased by 19.34 %
- Average area rental value
- 1,063.00 £/moDecreased by 13.58 %
- Est letting value
- 742.71 £/moUnchanged by 0.00 %
- Est rental Yield
- 8.41 %Increased by 37.42 %
- Crime Rate
- 0.00 %
Agent Activity
Pearson Ferrier marked this listing as sold.
Pearson Ferrier created the listing.
Nearby Schools
| Name | Type | Ofsted | Distance |
|---|---|---|---|
| Wesley Methodist Primary School | Academy Converter | 0.28 KM | |
| St Andrew'S Church Of England Primary School, Radcliffe | Voluntary Aided School | Good | 0.36 KM |
| Radcliffe Primary School | Academy Sponsor Led | Requires improvement | 0.67 KM |
| Radcliffe Children'S Centre Hub | Children's Centre | 0.74 KM | |
| Cams Lane Primary School | Community School | Good | 1.16 KM |
Images
Nearby Streets
| Name | Average Price | Average Sqft | Distance |
|---|---|---|---|
| Snape Street | £ 0 | 0 | 0.00 KM |
| Five Quarters | £ 240,000 | 0 | 0.00 KM |
| Herbert Street | £ 0 | 0 | 0.00 KM |
| Broadhurst Street | £ 70,000 | 0 | 0.00 KM |
| Trencherbone | £ 55,667 | 0 | 0.00 KM |
Nearby Transport
| Name | NLC | TLC | Distance |
|---|---|---|---|
| Kearsley (Manchester) | 2605 | KSL | 4.79 KM |
| Farnworth | 2811 | FNW | 5.60 KM |
| Moorside | 2799 | MSD | 6.32 KM |
| Clifton (Manchester) | 2795 | CLI | 6.33 KM |
| Swinton (Manchester) | 2800 | SNN | 6.41 KM |
Nearby Listings
| Address | Price | Type | Score | Distance |
|---|---|---|---|---|
| Salisbury Road, Radcliffe, Manchester, M26 4QD | £ 255,000 | BUY | Unknown | 0.03 KM |
| Wardle Close, Radcliffe, Manchester, Greater Manchester, M26 | £ 160,000 | BUY | 7 / 10 | 0.11 KM |
| Moss Shaw Way, Radcliffe, Manchester | £ 240,000 | BUY | 6 / 10 | 0.12 KM |
| Richmond Walk, Radcliffe, M26 | £ 150,000 | BUY | 6 / 10 | 0.12 KM |
| Richmond Walk, Radcliffe, Manchester, Greater Manchester, M26 | £ 140,000 | BUY | 6 / 10 | 0.13 KM |
Nearby Properties
| Address | Price | Distance |
|---|---|---|
| 12 Wardle Close | £ 160,000 | 0.09 KM |
| 3 Wardle Close | £ 130,000 | 0.09 KM |
| 14 Wardle Close | £ 48,000 | 0.09 KM |
| 13 Wardle Close | £ 143,500 | 0.09 KM |
| 5 Salisbury Road | £ 132,000 | 0.12 KM |