Winkworth says ..
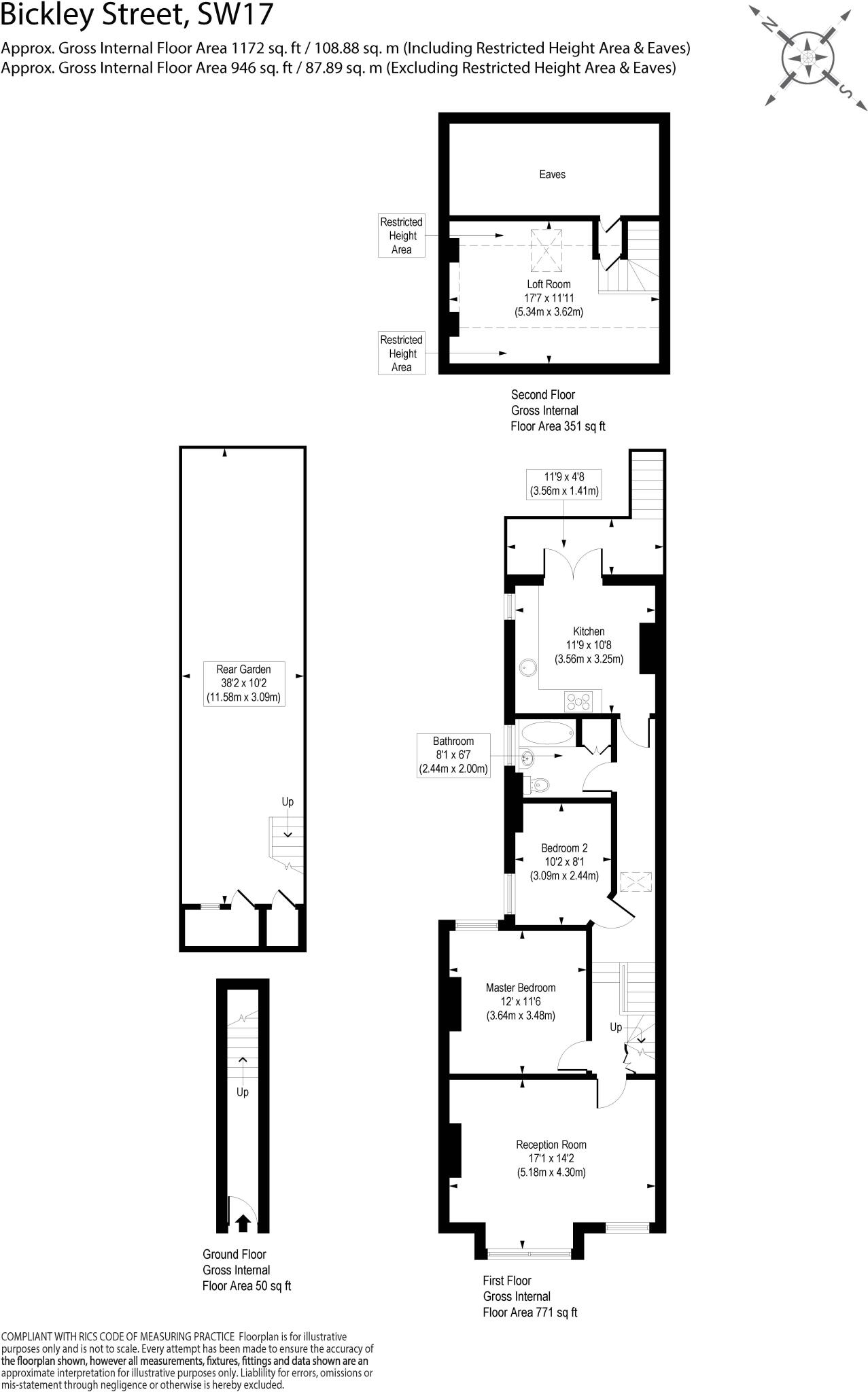
This two-bedroom maisonette features a bright reception room with original wood flooring, double-glazed windows, and an exposed brick feature fireplace. The kitchen is well-appointed with a range of wall and base units, granite worktops, integrated appliances, a butler sink, and modern fixtures a...
Property Oracle says ..
This two-bedroom maisonette on Bickley Street, Tooting, presents a great opportunity for buyers looking for a property with potential. The location is ideal, with close proximity to local amenities, good schools, and green spaces like Tooting Bec Common. While the property is in reasonable condition, it would benefit from some modernisation, particularly in the kitchen and bathroom. The garden, though currently overgrown, offers a good-sized outdoor space. The inclusion of a balcony is a definite plus. Priced at £550,000, the property aligns with the average price for similar properties in the area, offering good value for its size and location. Overall, this maisonette is a promising investment for those willing to undertake some renovation work to unlock its full potential. The property is listed with Winkworth.
Therefore, we give this property 6 / 10. *Disclaimer: This is our option and does constitute a recommendation or financial advice. Do your own research. *
- Price
- 7
- Condition
- 6
- Location
- 7
- Land
- 7
- Bedrooms
- 2
- Bathrooms
- 1
- Sqft (est)
- 1,230.58
The heatmap indicates the level of crime in the area. The color of the heatmap indicates the crime severity and recency.
Metrics Year-on-Year
- Average area value
- 685,278.00 £Increased by 17.39 %
- Est sale value
- 686,663.64 £Decreased by 18.30 %
- Average area rental value
- 2,413.00 £/moDecreased by 6.91 %
- Est letting value
- 1,230.58 £/moDecreased by 66.67 %
- Est rental Yield
- 4.23 %Decreased by 20.64 %
- Crime Rate
- 25.00 %Unchanged by 0.00 %
Agent Activity
Winkworth created the listing.
Nearby Schools
| Name | Type | Ofsted | Distance |
|---|---|---|---|
| Sellincourt Primary School | Community School | Good | 0.27 KM |
| St Boniface Rc Primary School | Voluntary Aided School | Outstanding | 0.28 KM |
| Francis Barber Pupil Referral Unit | Pupil Referral Unit | Good | 0.53 KM |
| Gatton (Va) Primary School | Voluntary Aided School | Outstanding | 0.54 KM |
| Tooting Primary School | Free Schools | Outstanding | 0.58 KM |
Images
Nearby Streets
| Name | Average Price | Average Sqft | Distance |
|---|---|---|---|
| Laurel Close | £ 0 | 0 | 0.00 KM |
| St. Cyprians Street | £ 650,000 | 0 | 0.00 KM |
| Upper Tooting Road | £ 410,000 | 0 | 0.00 KM |
| Watson Close | £ 375,000 | 0 | 0.00 KM |
| Douglas Court | £ 0 | 0 | 0.00 KM |
Nearby Transport
| Name | NLC | TLC | Distance |
|---|---|---|---|
| Tooting | 5389 | TOO | 0.93 KM |
| Wandsworth Common | 5395 | WSW | 2.33 KM |
| Haydons Road | 5289 | HYR | 2.38 KM |
| Mitcham Eastfields | 5069 | MTC | 2.44 KM |
| Balham | 5399 | BAL | 2.56 KM |
Nearby Listings
| Address | Price | Type | Score | Distance |
|---|---|---|---|---|
| Bickley Street, London, SW17 | £ 550,000 | BUY | 6 / 10 | 0.00 KM |
| Bickley Street, Tooting | £ 550,000 | BUY | 7 / 10 | 0.01 KM |
| Bickley Street, Tooting | £ 500,000 | BUY | 6 / 10 | 0.01 KM |
| Bickley Street, Tooting | £ 550,000 | BUY | 7 / 10 | 0.02 KM |
| Bickley Street, London, SW17 | £ 400,000 | BUY | Unknown | 0.02 KM |
Nearby Properties
| Address | Price | Distance |
|---|---|---|
| 75 Bickley Street | £ 275,000 | 0.01 KM |
| 101 Bickley Street | £ 265,000 | 0.01 KM |
| 7 Bickley Street | £ 538,000 | 0.01 KM |
| 47 Bickley Street | £ 540,000 | 0.01 KM |
| 11 Bickley Street | £ 596,100 | 0.01 KM |