Whittingham Lane, Broughton, Preston, Lancashire
By Armitstead Barnett
£ 615,000
Reviews
3 out of 5 stars
Armitstead Barnett says ..
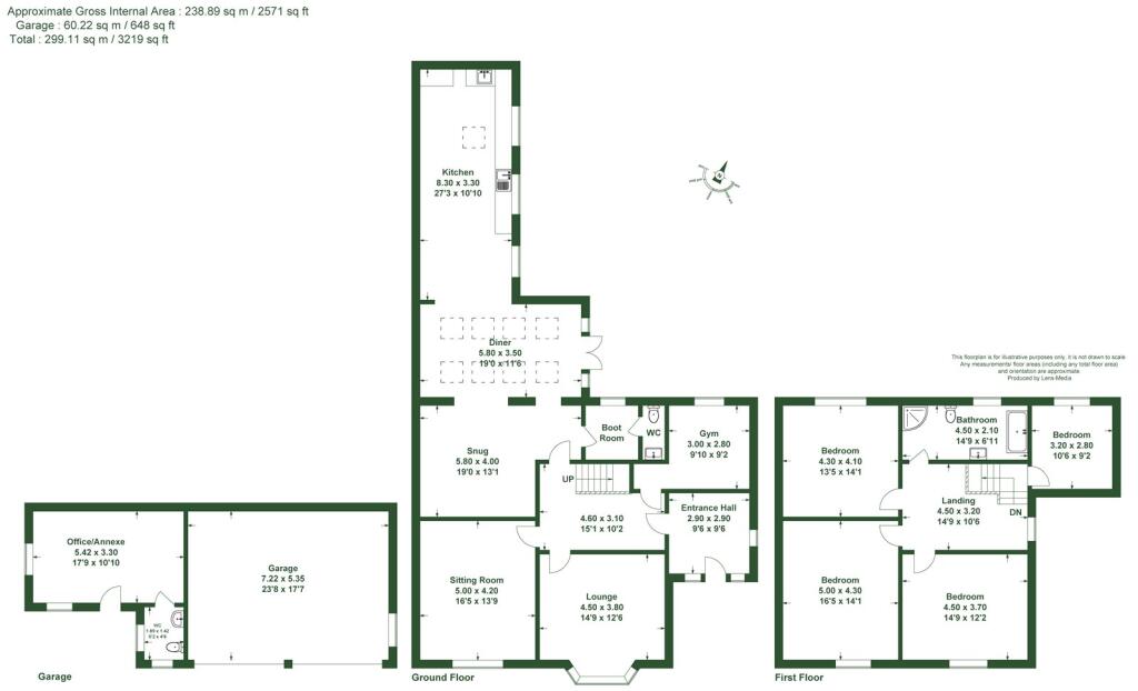
This handsome four-bedroom semi-detached Edwardian residence, dating back to 1911, combines period character with superb modern living. Set on a generous plot of approximately one-third of an acre, the property has been thoughtfully extended and upgraded to create a wonderful family home with ver...
Property Oracle says ..
This is a four-bedroom semi-detached property located on Whittingham Lane, Broughton, Preston. The house has two bathrooms and a well-maintained garden. Nearby schools have ‘Outstanding’ Ofsted ratings. The property appears to be in good condition, with modern interiors and a well-equipped kitchen. The listing price of £615,000 seems reasonable given the location and condition of the property.
Therefore, we give this property 7 / 10. *Disclaimer: This is our option and does constitute a recommendation or financial advice. Do your own research. *
- Price
- 6
- Condition
- 8
- Location
- 8
- Land
- 7
- Bedrooms
- 4
- Bathrooms
- 2
The heatmap indicates the level of crime in the area. The color of the heatmap indicates the crime severity and recency.
Metrics Year-on-Year
- Average area value
- 322,630.00 £Decreased by 7.75 %
- Average area rental value
- 1,067.00 £/moDecreased by 13.67 %
- Est rental Yield
- 3.97 %Decreased by 6.37 %
- Crime Rate
- 0.00 %
Agent Activity
Armitstead Barnett created the listing.
Nearby Schools
| Name | Type | Ofsted | Distance |
|---|---|---|---|
| Broughton-In-Amounderness Church Of England Primary School | Voluntary Aided School | Outstanding | 0.97 KM |
| Broughton High School | Community School | Outstanding | 1.43 KM |
| Our Lady And St Edward'S Catholic Primary School, Preston | Voluntary Aided School | Good | 1.74 KM |
| Fulwood, St Peter'S Church Of England Primary School And Nursery | Voluntary Aided School | Outstanding | 2.27 KM |
| Lancashire Education Medical Services | Miscellaneous | 2.72 KM |
Images
Nearby Streets
| Name | Average Price | Average Sqft | Distance |
|---|---|---|---|
| Parkside Drive | £ 320,000 | 0 | 0.00 KM |
| James Towers Way | £ 0 | 0 | 0.00 KM |
| Ascot Rise | £ 0 | 0 | 0.00 KM |
| Bamford Road | £ 350,000 | 0 | 0.00 KM |
| Cardwell Crescent | £ 450,000 | 0 | 0.00 KM |
Nearby Transport
| Name | NLC | TLC | Distance |
|---|---|---|---|
| Preston (Lancs) | 2753 | PRE | 6.28 KM |
Nearby Listings
| Address | Price | Type | Score | Distance |
|---|---|---|---|---|
| Whittingham Lane, Broughton, Preston, Lancashire | £ 615,000 | BUY | 7 / 10 | 0.00 KM |
| Whittingham Lane, Preston | £ 550,000 | BUY | 6 / 10 | 0.03 KM |
| Whittingham Lane, Broughton, PR3 | £ 575,000 | BUY | 6 / 10 | 0.33 KM |
| Plot 13 The Foxglove, Whittingham Lane, Broughton, Lancashire, PR3 | £ 366,950 | BUY | Unknown | 0.40 KM |
| Plot 17 The Acacia, Whittingham Lane, Broughton, Lancashire, PR3 5DA | £ 282,950 | BUY | 7 / 10 | 0.59 KM |
Nearby Properties
| Address | Price | Distance |
|---|---|---|
| 75 Whittingham Lane | £ 410,000 | 0.30 KM |
| 87 Whittingham Lane | £ 280,000 | 0.30 KM |
| 67 Whittingham Lane | £ 555,000 | 0.30 KM |
| 65 Whittingham Lane | £ 475,000 | 0.30 KM |
| 79 Whittingham Lane | £ 445,000 | 0.30 KM |