Sycamore Street, Blaby, Leicester, LE8
By Jowett & Stone Estate Agents
£ 235,000
Reviews
3 out of 5 stars
Jowett & Stone Estate Agents says ..
Superb character end cottage offering well presented accommodation throughout and located within walking distance to Blaby town centre and opposite Bouskell Park, an ideal professional or first time buyer, early viewing is highly recommended to appreciate this lovely home.
Property Oracle says ..
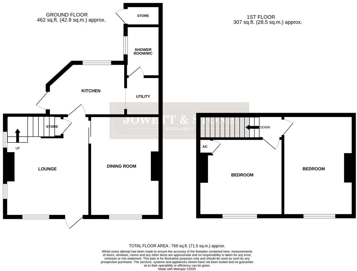
This property is a 2 bedroom, 1 bathroom end of terrace house located in Blaby, Leicester. The property benefits from a modern kitchen and bathroom, and has been recently decorated. There is also a small, enclosed rear garden. The property is located close to local amenities and schools, and is within easy reach of Leicester city centre. While the property itself is in good condition, the average price per square foot in the area is higher than the price of this property. This may be due to the smaller size of the property compared to the average in the area. The property is listed at £235,000.
Therefore, we give this property 6 / 10. *Disclaimer: This is our option and does constitute a recommendation or financial advice. Do your own research. *
- Price
- 6
- Condition
- 8
- Location
- 7
- Land
- 4
- Bedrooms
- 2
- Bathrooms
- 1
- Sqft (est)
- 769.00
- Lot (est)
- 769.00
The heatmap indicates the level of crime in the area. The color of the heatmap indicates the crime severity and recency.
Metrics Year-on-Year
- Average area value
- 292,600.00 £Decreased by 8.13 %
- Est sale value
- 215,320.00 £Decreased by 2.78 %
- Average area rental value
- 1,188.00 £/moIncreased by 19.88 %
- Est letting value
- 769.00 £/mo
- Est rental Yield
- 4.87 %Increased by 30.56 %
- Crime Rate
- 12.00 %Unchanged by 0.00 %
Agent Activity
Jowett & Stone Estate Agents marked this listing as sold.
Jowett & Stone Estate Agents created the listing.
Nearby Schools
| Name | Type | Ofsted | Distance |
|---|---|---|---|
| Blaby Thistly Meadow Primary School | Community School | Good | 0.48 KM |
| Blaby Stokes Church Of England Primary School | Academy Sponsor Led | 0.85 KM | |
| Foxfields Academy | Free Schools Special | 1.03 KM | |
| Glen Hills Primary School | Academy Converter | Good | 1.63 KM |
| St Peter'S Church Of England Primary School Whetstone | Academy Converter | 1.72 KM |
Images
Nearby Streets
| Name | Average Price | Average Sqft | Distance |
|---|---|---|---|
| Villers Court | £ 0 | 0 | 0.00 KM |
| Hazlemere Close | £ 650,000 | 0 | 0.00 KM |
| The Close | £ 0 | 0 | 0.00 KM |
| Walnut Way | £ 0 | 0 | 0.00 KM |
| Hospital Lane | £ 0 | 0 | 0.00 KM |
Nearby Transport
| Name | NLC | TLC | Distance |
|---|---|---|---|
| South Wigston | 1949 | SWS | 3.22 KM |
| Narborough | 1881 | NBR | 4.59 KM |
| Leicester | 1947 | LEI | 7.59 KM |
Nearby Listings
| Address | Price | Type | Score | Distance |
|---|---|---|---|---|
| Sycamore Street, Blaby, Leicester, LE8 | £ 235,000 | BUY | 6 / 10 | 0.00 KM |
| Sycamore Street, Blaby, Leicester, Leicestershire, LE8 | £ 229,000 | BUY | 6 / 10 | 0.00 KM |
| Freer Close, Blaby, Leicester | £ 350,000 | BUY | 7 / 10 | 0.08 KM |
| Sycamore Street, Blaby, Leicester | £ 220,000 | BUY | 6 / 10 | 0.09 KM |
| Sycamore Street, Blaby, Leicester | £ 230,000 | BUY | 6 / 10 | 0.09 KM |
Nearby Properties
| Address | Price | Distance |
|---|---|---|
| 77 Sycamore Street | £ 187,000 | 0.09 KM |
| 71 Sycamore Street | £ 185,000 | 0.09 KM |
| 27 Sycamore Street | £ 205,000 | 0.09 KM |
| 41d Sycamore Street | £ 225,000 | 0.10 KM |
| 41c Sycamore Street | £ 225,000 | 0.10 KM |