Winkworth says ..
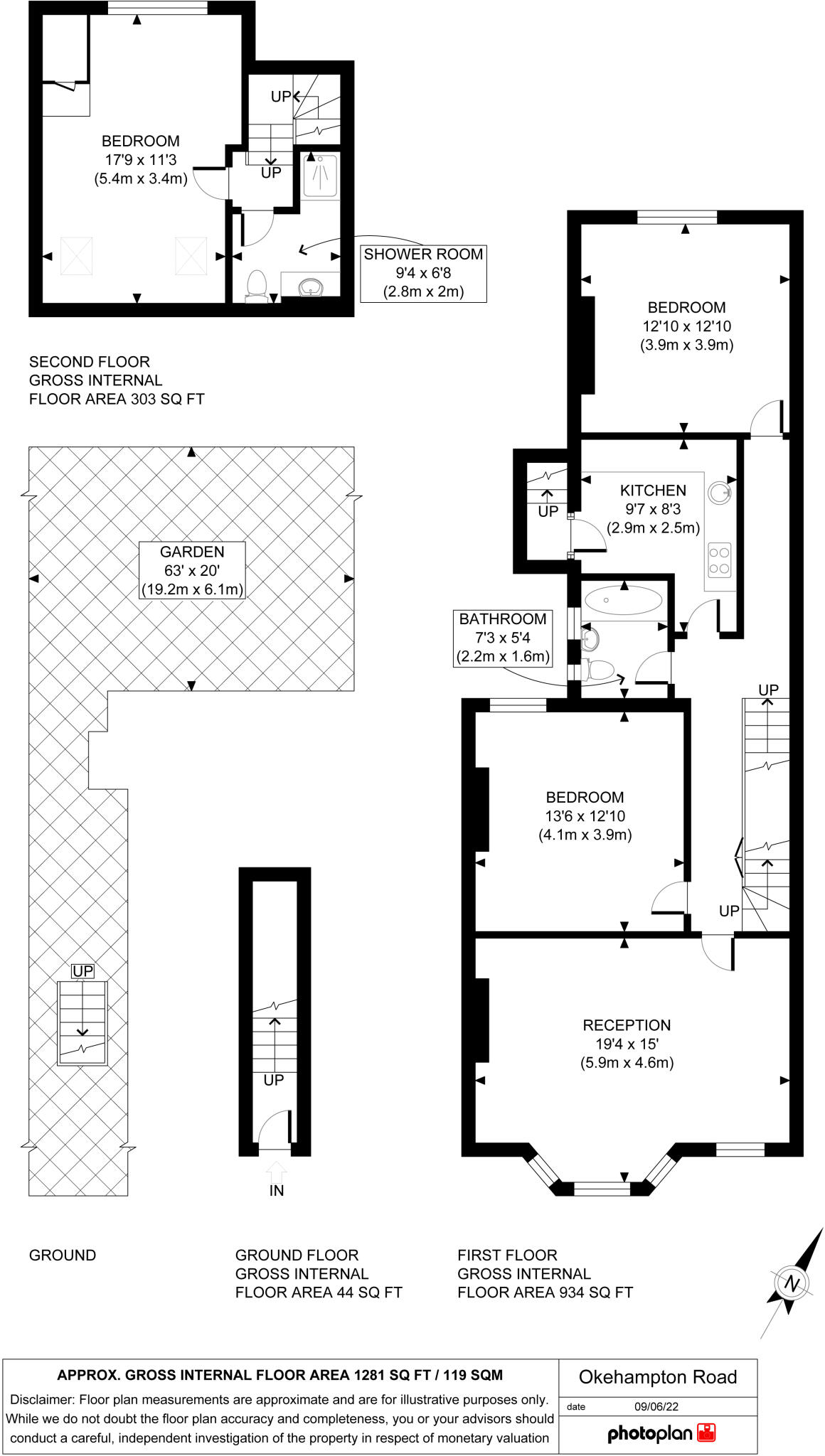
A superb 1281 sq. ft. duplex apartment in this sought after location close to Queens Park and Kensal Rise.
Property Oracle says ..
This three-bedroom, two-bathroom property in Queens Park, London, offers a blend of desirable features and potential areas for improvement. Its location in the NW10 postcode, with its proximity to green spaces like Queens Park and good transport links to Kensal Rise and Kensal Green stations, is a key advantage. The presence of a sizeable garden adds considerable appeal, particularly in a densely populated urban setting. The property appears well-maintained, although the current interior design is highly individualistic and may require updating to suit a wider range of potential buyers. The list price aligns with average prices in the immediate vicinity, but a precise evaluation of value for money hinges on the availability of more detailed comparable property data. Potential buyers should consider the costs associated with any desired renovations or redecoration. While the home has good potential, the current styling could hinder the appeal to a wide range of buyers. The property is a suitable option for families or individuals seeking a home in a well-connected area with outdoor space, provided they’re willing to potentially renovate aspects of the interior.
Therefore, we give this property 6 / 10. *Disclaimer: This is our option and does constitute a recommendation or financial advice. Do your own research. *
- Price
- 7
- Condition
- 6
- Location
- 7
- Land
- 7
- Bedrooms
- 3
- Bathrooms
- 2
- Sqft (est)
- 1,280.91
The heatmap indicates the level of crime in the area. The color of the heatmap indicates the crime severity and recency.
Metrics Year-on-Year
- Average area value
- 993,526.00 £Increased by 17.63 %
- Est sale value
- 1,324,460.94 £Increased by 65.18 %
- Average area rental value
- 2,483.00 £/moDecreased by 8.81 %
- Est letting value
- 2,561.82 £/moUnchanged by 0.00 %
- Est rental Yield
- 3.00 %Decreased by 22.48 %
- Crime Rate
- 2.00 %Unchanged by 0.00 %
Agent Activity
Winkworth created the listing.
Nearby Schools
| Name | Type | Ofsted | Distance |
|---|---|---|---|
| Manor School | Academy Special Converter | Outstanding | 0.19 KM |
| Three Trees Children'S Centre | Children's Centre | 0.30 KM | |
| The Avenue | Free Schools Special | 0.32 KM | |
| Queens Park Community School | Academy Converter | Good | 0.32 KM |
| Ark Franklin Primary Academy | Academy Sponsor Led | Good | 0.67 KM |
Images
Nearby Streets
| Name | Average Price | Average Sqft | Distance |
|---|---|---|---|
| Brondesbury Park | £ 2,583,333 | 0 | 0.00 KM |
| Brunel Mews | £ 747,500 | 0 | 0.00 KM |
| Brondesbury Park | £ 0 | 0 | 0.00 KM |
| Staverton Road | £ 0 | 0 | 0.00 KM |
| Allington Road | £ 550,000 | 0 | 0.00 KM |
Nearby Transport
| Name | NLC | TLC | Distance |
|---|---|---|---|
| Kensal Rise | 1448 | KNR | 0.41 KM |
| Kensal Green | 1447 | KNL | 1.01 KM |
| Brondesbury Park | 1438 | BSP | 1.15 KM |
| Queens Park (London) | 1419 | QPW | 1.75 KM |
| Brondesbury | 1437 | BSY | 2.13 KM |
Nearby Listings
| Address | Price | Type | Score | Distance |
|---|---|---|---|---|
| Okehampton Road, Kensal Rise NW10 | £ 725,000 | BUY | 6 / 10 | 0.06 KM |
| Okehampton Road, London, NW10 | £ 1,500,000 | BUY | Unknown | 0.07 KM |
| Okehampton Road, Kensal Rise, London, NW10 | £ 1,650,000 | BUY | 7 / 10 | 0.07 KM |
| Okehampton, London, NW10 | £ 1,575,000 | BUY | 7 / 10 | 0.07 KM |
| Dundonald Road, London, NW10 | £ 2,800,000 | BUY | 7 / 10 | 0.11 KM |
Nearby Properties
| Address | Price | Distance |
|---|---|---|
| 39b Okehampton Road | £ 690,000 | 0.04 KM |
| 39a Okehampton Road | £ 290,000 | 0.04 KM |
| 23a Okehampton Road | £ 476,500 | 0.04 KM |
| 31 Okehampton Road | £ 1,950,000 | 0.04 KM |
| 17 Okehampton Road | £ 1,970,000 | 0.04 KM |