J
Leighton Drive, St Helens, WA9
By J B B Leach
£ 250,000
Reviews
3 out of 5 stars
J B B Leach says ..
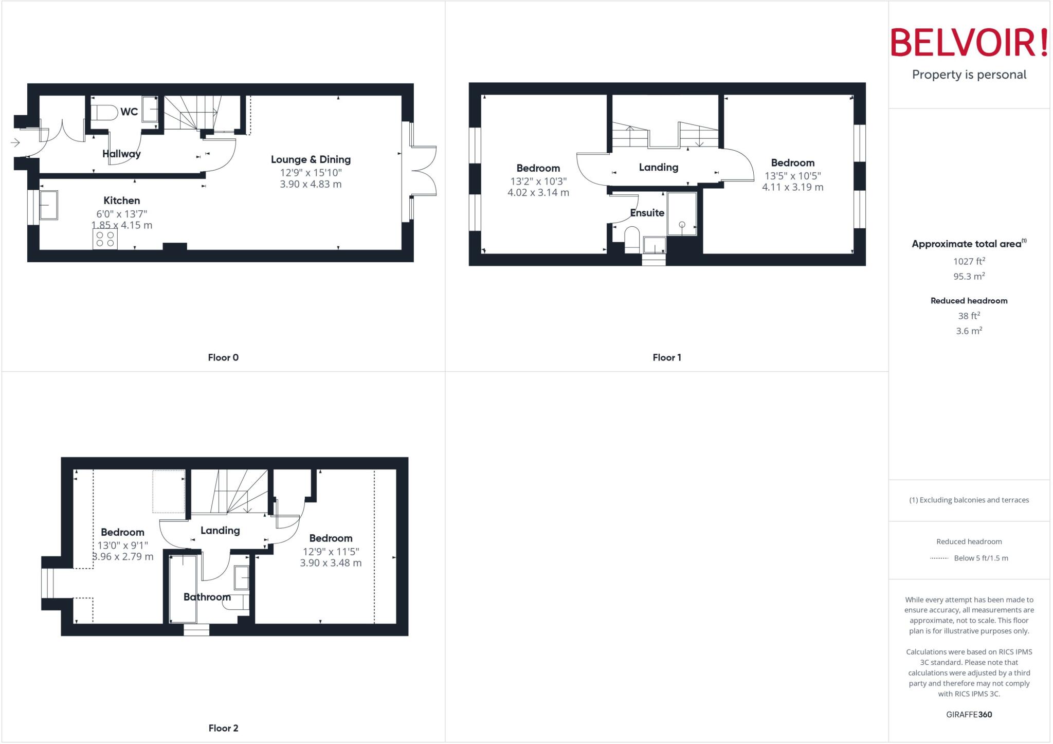
This beautifully presented home has undergone a progamme of works in under to modernise and update, making it an excellent choice for first time buyers or a growing family as you are able to move straight in and add your own touches as you go. With a floorplan set over three floors, there is a...
Property Oracle says ..
Therefore, we give this property 7 / 10. *Disclaimer: This is our option and does constitute a recommendation or financial advice. Do your own research. *
- Price
- 7
- Condition
- 8
- Location
- 7
- Land
- 7
- Bedrooms
- 4
- Bathrooms
- 2
- Sqft (est)
- 1,027.00
The heatmap indicates the level of crime in the area. The color of the heatmap indicates the crime severity and recency.
Metrics Year-on-Year
- Average area value
- 291,263.00 £Decreased by 1.08 %
- Est sale value
- 358,423.00 £Increased by 25.99 %
- Average area rental value
- 980.00 £/moDecreased by 0.31 %
- Est letting value
- 1,027.00 £/mo
- Est rental Yield
- 4.04 %Increased by 0.75 %
- Crime Rate
- 17.00 %Unchanged by 0.00 %
from 294,431.00 £
from 284,479.00 £
from 983.00 £/mo
from 0.00 £/mo
from 4.01 %
from 17.00 %
Agent Activity
J B B Leach created the listing.
Nearby Schools
| Name | Type | Ofsted | Distance |
|---|---|---|---|
| Sherdley Primary School | Community School | Good | 0.70 KM |
| Eaves Primary School | Community School | Good | 0.75 KM |
| St Anne'S Catholic Primary School | Voluntary Aided School | Requires improvement | 0.77 KM |
| Robins Lane Community Primary School | Community School | Good | 0.83 KM |
| Willow Tree Primary School | Community School | Good | 1.27 KM |
Images
Nearby Streets
| Name | Average Price | Average Sqft | Distance |
|---|---|---|---|
| Kelbrook Close | £ 0 | 0 | 0.00 KM |
| Crouch Street | £ 210,000 | 0 | 0.00 KM |
| Meadowcroft | £ 190,000 | 0 | 0.00 KM |
| Thames Road | £ 105,000 | 0 | 0.00 KM |
| Kensington Avenue | £ 170,000 | 0 | 0.00 KM |
Nearby Transport
| Name | NLC | TLC | Distance |
|---|---|---|---|
| Lea Green | 2339 | LEG | 1.25 KM |
| St Helens Junction | 2340 | SHJ | 1.66 KM |
| St Helens Central | 2341 | SNH | 2.84 KM |
| Thatto Heath | 2264 | THH | 4.91 KM |
| Rainhill | 2296 | RNH | 5.91 KM |
Nearby Listings
| Address | Price | Type | Score | Distance |
|---|---|---|---|---|
| Leighton Drive, St Helens, WA9 | £ 250,000 | BUY | 7 / 10 | 0.00 KM |
| Penhurst Way, St. Helens, Merseyside, WA9 | £ 200,000 | BUY | Unknown | 0.07 KM |
| Ormside Grove, St. Helens, Merseyside, WA9 | £ 160,000 | BUY | 6 / 10 | 0.10 KM |
| Penhurst Way, St. Helens, WA9 | £ 210,000 | BUY | 7 / 10 | 0.11 KM |
| Ambergate Close, St. Helens, Merseyside, WA9 | £ 215,000 | BUY | 7 / 10 | 0.17 KM |
Nearby Properties
| Address | Price | Distance |
|---|---|---|
| 6 Leighton Drive | £ 180,000 | 0.00 KM |
| 28 Leighton Drive | £ 132,000 | 0.00 KM |
| 12 Leighton Drive | £ 180,000 | 0.00 KM |
| 2 Leighton Drive | £ 155,000 | 0.00 KM |
| 41 Leighton Drive | £ 175,000 | 0.00 KM |