The Hawthorns, Flitwick, MK45
By Country Properties
£ 215,000
Reviews
3 out of 5 stars
Country Properties says ..
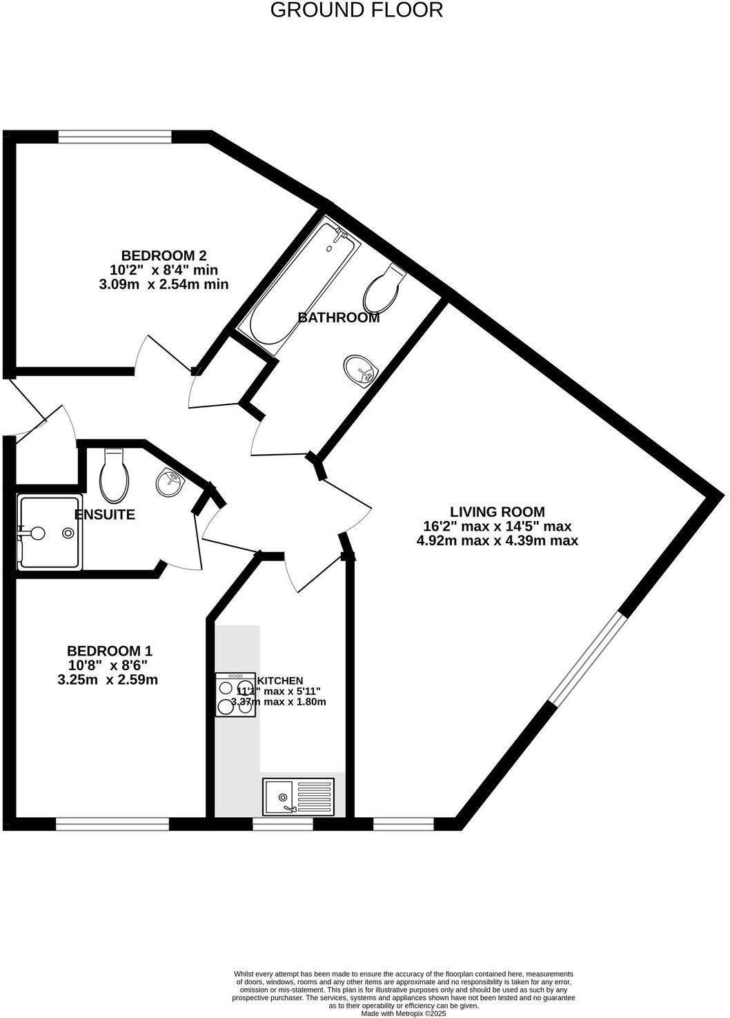
With the benefit of no upper chain, this ground floor apartment would make a great first step on the property ladder, or opportunity for those wishing to downsize. Conveniently set just off the High Street, handy for the town centre amenities and mainline rail station, the apartmen...
Property Oracle says ..
The property is located in Flitwick, Bedfordshire, which benefits from being close to a mainline train station providing links to London and other major cities. The nearby schools are rated as good by Ofsted, and there are various amenities within walking distance. The property itself appears to be in good condition based on the provided images, although the lack of square footage information makes a definitive assessment difficult. The price seems reasonable in comparison to other similar properties in the area, although more information is needed to accurately assess value for money.
Therefore, we give this property 6 / 10. *Disclaimer: This is our option and does constitute a recommendation or financial advice. Do your own research. *
- Price
- 7
- Condition
- 8
- Location
- 9
- Land
- 3
- Bedrooms
- 2
- Bathrooms
- 2
The heatmap indicates the level of crime in the area. The color of the heatmap indicates the crime severity and recency.
Metrics Year-on-Year
- Average area value
- 380,000.00 £Decreased by 10.60 %
- Average area rental value
- 1,200.00 £/moDecreased by 3.15 %
- Est rental Yield
- 3.79 %Increased by 8.29 %
- Crime Rate
- 14.00 %Unchanged by 0.00 %
Agent Activity
Country Properties created the listing.
Nearby Schools
| Name | Type | Ofsted | Distance |
|---|---|---|---|
| Flitwick Children'S Centre | Children's Centre | 0.30 KM | |
| Templefield Lower School | Community School | Good | 0.57 KM |
| Woodland Middle School Academy | Academy Converter | Good | 0.67 KM |
| Flitwick Lower School | Community School | Good | 0.69 KM |
| Kingsmoor Lower School | Community School | Good | 0.90 KM |
Images
Nearby Streets
| Name | Average Price | Average Sqft | Distance |
|---|---|---|---|
| Beaumont Court | £ 0 | 0 | 0.00 KM |
| York Close | £ 0 | 0 | 0.00 KM |
| St Marks Close | £ 0 | 0 | 0.00 KM |
| Windermere Close | £ 0 | 0 | 0.00 KM |
| Roman Way | £ 165,000 | 0 | 0.00 KM |
Nearby Transport
| Name | NLC | TLC | Distance |
|---|---|---|---|
| Flitwick | 1532 | FLT | 0.33 KM |
| Harlington (Bedfordshire) | 1533 | HLN | 4.95 KM |
| Millbrook (Bedfordshire) | 1537 | MLB | 6.65 KM |
| Stewartby | 1386 | SWR | 7.48 KM |
| Lidlington | 1579 | LID | 7.98 KM |
Nearby Listings
| Address | Price | Type | Score | Distance |
|---|---|---|---|---|
| The Hawthorns, Flitwick | £ 229,995 | BUY | 6 / 10 | 0.02 KM |
| The Hawthorns, Flitwick, Beds, MK45 1FL | £ 215,000 | BUY | 6 / 10 | 0.05 KM |
| The Hawthorns, Flitwick, Bedfordshire, MK45 | £ 215,000 | BUY | 6 / 10 | 0.05 KM |
| The Hawthorns, Flitwick, MK45 | £ 210,000 | BUY | 6 / 10 | 0.06 KM |
| The Hawthorns, Flitwick | £ 180,000 | BUY | 5 / 10 | 0.08 KM |
Nearby Properties
| Address | Price | Distance |
|---|---|---|
| 63 The Hawthorns | £ 188,385 | 0.03 KM |
| 82 The Hawthorns | £ 175,000 | 0.03 KM |
| 59 The Hawthorns | £ 193,000 | 0.03 KM |
| 106 The Hawthorns | £ 210,250 | 0.03 KM |
| 58 The Hawthorns | £ 215,000 | 0.03 KM |