Chestnut Drive, Cheslyn Hay, Walsall, WS6
By Goodchilds
£ 325,000
Reviews
3 out of 5 stars
Goodchilds says ..
*** RARE OPPORTUNITY | VERY LARGE CORNER PLOT | PEACEFUL AND HIGHLY REGARDED LOCATION | THREE BEDROOM DETACHED | NO UPWARD CHAIN | HUGE POTENTIAL ***
Property Oracle says ..
This three-bedroom detached house in Cheslyn Hay, Walsall, presents a mixed bag. Its location is a positive, offering access to local schools such as Glenthorne Community Primary School (rated ‘Good’ by Ofsted) within a reasonable distance. The proximity to green spaces, as evidenced by the images, is another desirable aspect, appealing to families seeking a quieter suburban lifestyle. Local transport links are present, although those needing frequent train travel might find the distance to the nearest station somewhat inconvenient.
However, the property’s condition is the most significant drawback. The provided photos show a property that has been poorly maintained. The interior appears dated, featuring outdated decor and fixtures. The kitchen and bathrooms would require a complete overhaul. This will represent a considerable financial investment for any prospective buyer. The property requires cosmetic updates and some repairs, as indicated by minor visible damage, particularly in some ceilings.
The land is a definite highlight. The property offers a garden considerably larger than the average for similar properties in the area and the visual representation suggests that the space is relatively private. Overall, this house offers significant potential but necessitates significant renovation and updating, which must be factored into the purchase decision. The list price should therefore be considered in light of these renovation costs.
Therefore, we give this property 6 / 10. *Disclaimer: This is our option and does constitute a recommendation or financial advice. Do your own research. *
- Price
- 7
- Condition
- 4
- Location
- 7
- Land
- 6
- Bedrooms
- 3
- Bathrooms
- 1
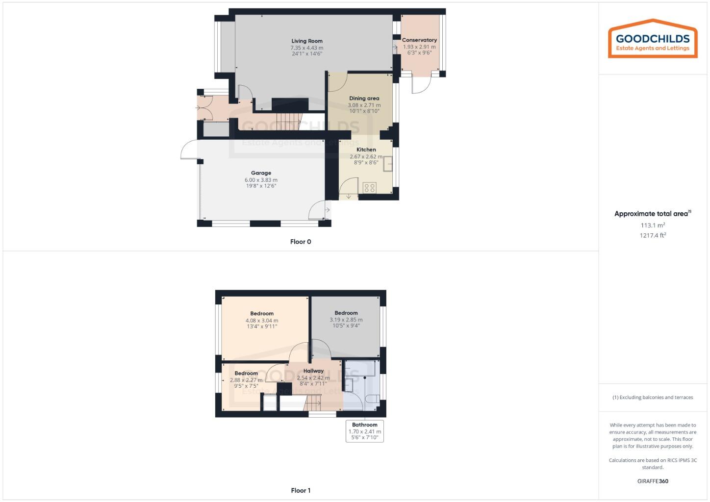
- Sqft (est)
- 1,217.40
The heatmap indicates the level of crime in the area. The color of the heatmap indicates the crime severity and recency.
Metrics Year-on-Year
- Average area value
- 362,500.00 £Increased by 35.86 %
- Est sale value
- 286,089.00 £Increased by 1.73 %
- Average area rental value
- 817.00 £/moDecreased by 17.81 %
- Est letting value
- 0.00 £/mo
- Est rental Yield
- 2.70 %Decreased by 39.60 %
- Crime Rate
- 2.00 %Unchanged by 0.00 %
Agent Activity
Goodchilds marked this listing as sold.
Goodchilds created the listing.
Nearby Schools
| Name | Type | Ofsted | Distance |
|---|---|---|---|
| Glenthorne Community Primary School | Community School | Good | 0.62 KM |
| Cheslyn Hay Primary School | Community School | Good | 1.11 KM |
| Cheslyn Hay Academy | Academy Converter | 1.16 KM | |
| Moat Hall Primary School | Community School | Requires improvement | 1.51 KM |
| Bridgtown Primary School | Community School | Good | 1.57 KM |
Images
Nearby Streets
| Name | Average Price | Average Sqft | Distance |
|---|---|---|---|
| High Street | £ 0 | 0 | 0.00 KM |
| Queen Street | £ 250,000 | 0 | 0.00 KM |
| Campian's Avenue | £ 185,000 | 0 | 0.00 KM |
| Charles Close | £ 495,000 | 0 | 0.00 KM |
| Brook Road | £ 225,000 | 0 | 0.00 KM |
Nearby Transport
| Name | NLC | TLC | Distance |
|---|---|---|---|
| Landywood | 1017 | LAW | 1.55 KM |
| Cannock | 1016 | CAO | 2.76 KM |
| Bloxwich North | 1018 | BWN | 4.57 KM |
| Bloxwich | 1141 | BLX | 5.58 KM |
| Hednesford | 1148 | HNF | 6.20 KM |
Nearby Listings
| Address | Price | Type | Score | Distance |
|---|---|---|---|---|
| Chestnut Drive, Cheslyn Hay, Walsall | £ 285,000 | BUY | Unknown | 0.03 KM |
| Rosemary Road, Cheslyn Hay, Walsall | £ 270,000 | BUY | 7 / 10 | 0.07 KM |
| Rosemary Road, Cheslyn Hay, Cannock, Staffordshire, WS6 | £ 260,000 | BUY | 6 / 10 | 0.09 KM |
| Rosemary Avenue, Cheslyn Hay | £ 275,000 | BUY | Unknown | 0.19 KM |
| Grassmere Court, Cheslyn Hay | £ 310,000 | BUY | 6 / 10 | 0.23 KM |
Nearby Properties
| Address | Price | Distance |
|---|---|---|
| 2 Rosemary Road | £ 290,000 | 0.08 KM |
| 14 Rosemary Road | £ 160,000 | 0.08 KM |
| 20 Rosemary Road | £ 113,500 | 0.08 KM |
| 15 Rosemary Road | £ 229,000 | 0.08 KM |
| 47 Rosemary Road | £ 170,000 | 0.09 KM |