Frindsbury Hill, Strood, Rochester, Kent. ME2
By Moxy Property Consultants
£ 475,000
Reviews
3 out of 5 stars
Moxy Property Consultants says ..
A three bedroom detached home with large garden, garage and off road parking to the front and rear. Updated kitchen and bathroom, conservatory & great location near shops, schools & transport.
Property Oracle says ..
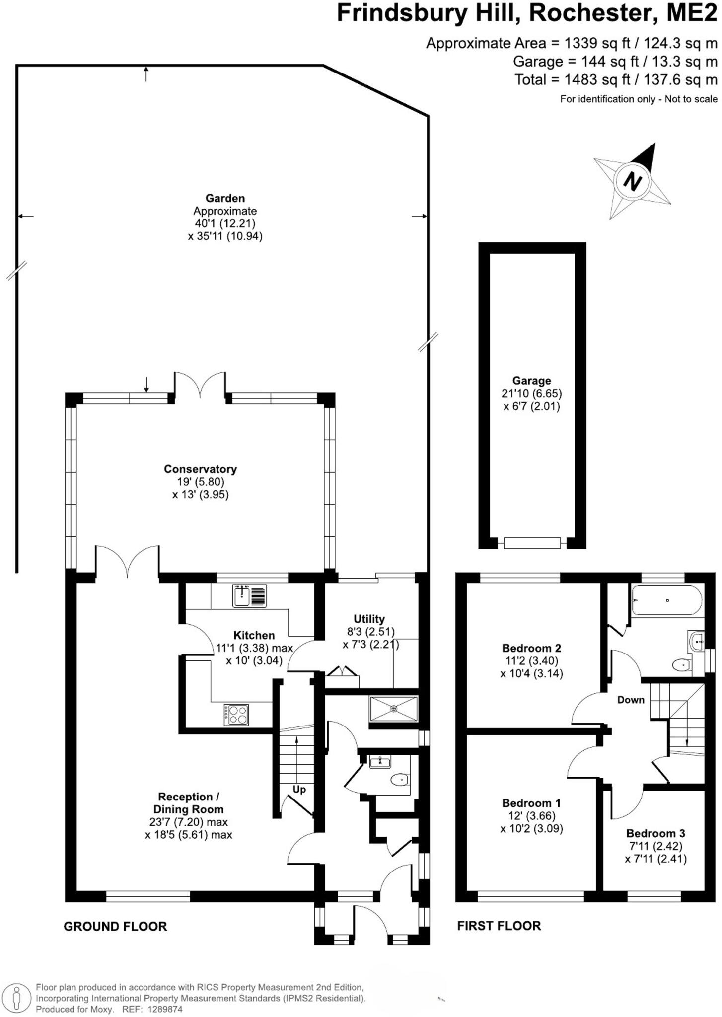
The property is a 3-bedroom, 2-bathroom detached house located in Frindsbury Hill, Strood, Rochester, Kent. It has a list price of £475,000 and a size of 1,483 square feet. The plot size is not specified. The area has an average house price of £428,831 and an average price per square foot of £451. The property appears to be in good condition. Images show a recently modernised kitchen and bathrooms. The property benefits from a conservatory and a garden. There is also a detached garage. The location is close to several primary schools, with at least two rated ‘Good’ by Ofsted. Train stations are also within reasonable proximity. Given the property’s size (1,483 sqft), condition, and location, the list price of £475,000 seems slightly above the average price per square foot for the area (£451). However, the higher price may be justified by the property’s modern features, the inclusion of a garage and garden, and its location in Frindsbury Hill. Nearby comparable properties on Frindsbury Hill are priced similarly, supporting the listing price. More information on the plot size would allow for a more precise evaluation.
Therefore, we give this property 7 / 10. *Disclaimer: This is our option and does constitute a recommendation or financial advice. Do your own research. *
- Price
- 7
- Condition
- 9
- Location
- 8
- Land
- 7
- Bedrooms
- 3
- Bathrooms
- 2
- Sqft (est)
- 1,483.00
The heatmap indicates the level of crime in the area. The color of the heatmap indicates the crime severity and recency.
Metrics Year-on-Year
- Average area value
- 397,500.00 £Decreased by 6.87 %
- Est sale value
- 519,050.00 £Decreased by 5.91 %
- Average area rental value
- 1,383.00 £/moDecreased by 19.36 %
- Est letting value
- 1,483.00 £/moUnchanged by 0.00 %
- Est rental Yield
- 4.18 %Decreased by 13.28 %
- Crime Rate
- 7.00 %Unchanged by 0.00 %
Agent Activity
Moxy Property Consultants created the listing.
Nearby Schools
| Name | Type | Ofsted | Distance |
|---|---|---|---|
| Hilltop Primary Academy | Academy Converter | 0.51 KM | |
| English Martyrs' Catholic Primary School | Voluntary Aided School | Good | 0.72 KM |
| Wainscott Primary School | Academy Sponsor Led | 0.75 KM | |
| Temple Mill Primary School | Academy Sponsor Led | Good | 1.15 KM |
| The Children'S Centre At Temple Mill | Children's Centre | 1.15 KM |
Images
Nearby Streets
| Name | Average Price | Average Sqft | Distance |
|---|---|---|---|
| RS238 | £ 0 | 0 | 0.00 KM |
| RRX60 | £ 280,000 | 0 | 0.00 KM |
| RS124 | £ 380,000 | 0 | 0.00 KM |
| Watermill Close | £ 0 | 0 | 0.00 KM |
| Shalom | £ 0 | 0 | 0.00 KM |
Nearby Transport
| Name | NLC | TLC | Distance |
|---|---|---|---|
| Strood (Kent) | 5191 | SOO | 1.08 KM |
| Rochester | 5203 | RTR | 2.20 KM |
| Chatham | 5199 | CTM | 3.22 KM |
| Higham | 5202 | HGM | 4.96 KM |
| Gillingham (Kent) | 5169 | GLM | 5.31 KM |
Nearby Listings
| Address | Price | Type | Score | Distance |
|---|---|---|---|---|
| Frindsbury Hill, Strood, Rochester, Kent. ME2 | £ 475,000 | BUY | 7 / 10 | 0.00 KM |
| Frindsbury Hill, Rochester, ME2 4JS | £ 375,000 | BUY | 7 / 10 | 0.01 KM |
| Frindsbury Hill,Rochester,ME2 4JS | £ 350,000 | BUY | 7 / 10 | 0.01 KM |
| Frindsbury Hill, Rochester, ME2 | £ 525,000 | BUY | 7 / 10 | 0.02 KM |
| Frindsbury Hill, Frindsbury Rochester | £ 500,000 | BUY | Unknown | 0.07 KM |
Nearby Properties
| Address | Price | Distance |
|---|---|---|
| 235 Frindsbury Hill | £ 460,000 | 0.00 KM |
| 223 Frindsbury Hill | £ 155,000 | 0.00 KM |
| 241 Frindsbury Hill | £ 160,000 | 0.00 KM |
| 225a Frindsbury Hill | £ 330,000 | 0.00 KM |
| 239 Frindsbury Hill | £ 125,000 | 0.00 KM |